
Drumleaning, Aikton, Wigton, Cumbria

- PROPERTY TYPE
Detached
- BEDROOMS
5
- BATHROOMS
2
- SIZE
Ask agent
- TENUREDescribes how you own a property. There are different types of tenure - freehold, leasehold, and commonhold.Read more about tenure in our glossary page.
Freehold
Key features
- Impressive Country House
- Superb Period Outbuilding
- Flexible Accommodation
- Southerly Views
- Sweeping Gardens
- Extensive Outbuildings
Description
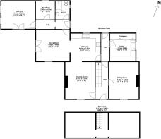
Accommodation in Brief
Entrance Hall | Sitting Room | Drawing Room | Kitchen | Utility | Dining Room | Ground Floor Bedroom | Shower Room | Play Room | Four First Floor Bedrooms | Dressing Room | Family Bathroom | Basement
Brick-Built Outbuilding with Garaging & Storage | Parking | Gardens | Extensive Range of Agricultural Outbuildings | Land of Approx. 17.34 Acres
The Property
Drumleaning is a substantial and attractive five bedroom country house situated in a fabulous rural location within easy reach of both the Solway Coast Area of Outstanding Natural Beauty and the Lake District National Park. The property benefits from a hugely impressive detached period outbuilding that offers a wealth of possibilities to interested parties.
An extensive range of agricultural outbuildings with concrete hardstanding provide yet more options, which could include commercial opportunities subject to the relevant planning. There is three-phase electric power to the outbuildings, ensuring that the buildings can be utilised for a wide range of purposes, and there is also a back-up generator.
To the south of the house lies a paddock of around 2.5 acres, ideal for equestrian use. In addition, a further 12.2 acres of excellent agricultural land is situated to the east.
The house is a fine example of a Cumbrian country house with lovely period features and generous proportions throughout. The pillared portico leads to the welcoming entrance hall with access to two impressive reception rooms, each with a feature fireplace and wonderful open views. The drawing room flows through to the country style kitchen and onwards to the dining room with French doors opening to the gardens. A spacious utility room provides great practicality. To the rear of the property is a ground floor bedroom, again with French doors to the gardens. A play room sits adjacent to this bedroom along with a well-appointed shower room. This area could be configured as a private annexe for guests or a dependent relative.
There are four bedrooms to the first floor with varying outlooks. All are good double bedrooms and one has an adjoining dressing room that can also be accessed from the landing. The bedrooms are served by the elegant family bathroom with suite comprising freestanding roll top bath, separate walk-in shower, WC and a wash hand basin set on a vanity unit. The property further benefits from a large basement that is divided in to two spacious rooms.
Externally
Drumleaning is approached via a wide tarmacadam driveway with a sweeping turning circle in front of the house. A huge detached period barn sits to one side. This beautiful building currently provides triple garaging and storage on the ground floor with additional storage on the upper floor. There is potential to create a gymnasium, cinema room, private annexe or a host of other options, subject to the necessary planning consents.
The expansive gardens are mainly laid to lawn and there is a patio area accessed directly from the dining room and ground floor bedroom.
To the rear of the house there are a range of useful agricultural buildings offering further opportunities, including potential commercial ventures, subject to the relevant planning.
To the south of the property is a well-fenced paddock extending to around 2.5 acres. The paddock stretches down to a stream at the southern boundary.
Local Information
Drumleaning is a hamlet in Cumbria surrounded by wonderful open countryside yet easily accessible and within reach of local and regional centres. The nearby market town of Wigton is within easy travelling distance for everyday amenities and the property is within commuting distance of many busy centres. Carlisle provides comprehensive cultural, recreational and shopping facilities, with a wide range of shops, supermarkets, chemists, medical and dental surgeries, sports centre and many restaurants and pubs.
There is a choice of popular primary schools in the area and for secondary schooling there are highly regarded schools in Wigton and Cockermouth. For the commuter there is easy access to Carlisle and onwards to the M6 for links to the north and south. There is a rail station at Wigton which offers services on the Cumbrian Coast Line while the rail station at Carlisle provides regular services to major UK cities north and south and also services east to Newcastle.
Approximate Mileages
Wigton 3.0 miles | Carlisle City Centre 10.3 miles | Carlisle Lake District Airport 15.4 miles | Penrith 23.9 miles | Keswick 24.1 miles
Services
Mains electricity (single-phase to house, three phase to agricultural buildings). Mains water. Private drainage to septic tank. Oil-fired central heating. Underfloor heating in dining room and ground floor annexe area. Fibre broadband available.
Wayleaves, Easements & Rights of Way
The property is being sold subject to all existing wayleaves, easements and rights of way, whether or not specified within the sales particulars.
Agents Note to Purchasers
We strive to ensure all property details are accurate, however, they are not to be relied upon as statements of representation or fact and do not constitute or form part of an offer or any contract. All measurements and floor plans have been prepared as a guide only. All services, systems and appliances listed in the details have not been tested by us and no guarantee is given to their operating ability or efficiency. Please be advised that some information may be awaiting vendor approval.
Submitting an Offer
Please note that all offers will require financial verification including mortgage agreement in principle, proof of deposit funds, proof of available cash and full chain details including selling agents and solicitors down the chain. To comply with Money Laundering Regulations, we require proof of identification from all buyers before acceptance letters are sent and solicitors can be instructed.
Disclaimer
The information displayed about this property comprises a property advertisement. Finest Properties strives to ensure all details are accurate; however, they do not constitute property particulars and should not be relied upon as statements of fact or representation. All information is provided and maintained by Finest Properties.
EPC Rating: E
- COUNCIL TAXA payment made to your local authority in order to pay for local services like schools, libraries, and refuse collection. The amount you pay depends on the value of the property.Read more about council Tax in our glossary page.
- Band: E
- PARKINGDetails of how and where vehicles can be parked, and any associated costs.Read more about parking in our glossary page.
- Yes
- GARDENA property has access to an outdoor space, which could be private or shared.
- Private garden
- ACCESSIBILITYHow a property has been adapted to meet the needs of vulnerable or disabled individuals.Read more about accessibility in our glossary page.
- Ask agent
Energy performance certificate - ask agent
Drumleaning, Aikton, Wigton, Cumbria
Add an important place to see how long it'd take to get there from our property listings.
__mins driving to your place
Get an instant, personalised result:
- Show sellers you’re serious
- Secure viewings faster with agents
- No impact on your credit score
Your mortgage
Notes
Staying secure when looking for property
Ensure you're up to date with our latest advice on how to avoid fraud or scams when looking for property online.
Visit our security centre to find out moreDisclaimer - Property reference 3a90d68d-c922-4f22-96b7-987c12d8cab0. The information displayed about this property comprises a property advertisement. Rightmove.co.uk makes no warranty as to the accuracy or completeness of the advertisement or any linked or associated information, and Rightmove has no control over the content. This property advertisement does not constitute property particulars. The information is provided and maintained by Finest, Cumbria & The Lakes. Please contact the selling agent or developer directly to obtain any information which may be available under the terms of The Energy Performance of Buildings (Certificates and Inspections) (England and Wales) Regulations 2007 or the Home Report if in relation to a residential property in Scotland.
*This is the average speed from the provider with the fastest broadband package available at this postcode. The average speed displayed is based on the download speeds of at least 50% of customers at peak time (8pm to 10pm). Fibre/cable services at the postcode are subject to availability and may differ between properties within a postcode. Speeds can be affected by a range of technical and environmental factors. The speed at the property may be lower than that listed above. You can check the estimated speed and confirm availability to a property prior to purchasing on the broadband provider's website. Providers may increase charges. The information is provided and maintained by Decision Technologies Limited. **This is indicative only and based on a 2-person household with multiple devices and simultaneous usage. Broadband performance is affected by multiple factors including number of occupants and devices, simultaneous usage, router range etc. For more information speak to your broadband provider.
Map data ©OpenStreetMap contributors.







