
4 bedroom detached house for sale
Clarke Close, Cottenham

- PROPERTY TYPE
Detached
- BEDROOMS
4
- BATHROOMS
2
- SIZE
1,066 sq ft
99 sq m
- TENUREDescribes how you own a property. There are different types of tenure - freehold, leasehold, and commonhold.Read more about tenure in our glossary page.
Freehold
Key features
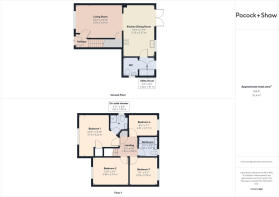
- Entrance hall
- Sitting room
- Kitchen dining room
- Utility room
- Cloaks wc
- Four bedrooms
- Family bathroom and en-suite shower room
- Larger than average rear garden
- Single garage
Description
Glazed entrance door to:
Entrance hall
Stairs rising to the first floor, radiator.
Living Room
4.75 m x 3.31 m (15'7" x 10'10")
Accessed from the entrance hall, window to the front, built in understairs cupboard, opening to:
Kitchen Dining Room
5.27 m x 3.13 m (17'3" x 10'3")
With French doors to the rear garden and window to the rear. Well fitted range of units set under a quartz worksurface and matching upstand. Inset one and a quarter bowl stainless steel sink unit. Range of base units with integrated dishwasher and fridge freezer. Matching wall mounted cupboards. Gas hob and matching electric oven, door to:
Utility Room
1.91 m x 1.60 m (6'3" x 5'3")
Back door to rear garden. Space and plumbing for washing machine and tumble dryer. Door to:
Cloaks WC
1.44 m x 1.90 m (4'9" x 6'3")
Close coupled wc and pedestal wash basin, part ceramic tiled splashback.
First floor landing
Access to loft space.
Bedroom one
4.22 m x 3.13 m (13'10" x 10'3")
Window to the front, radiator, single fitted wardrobe. Door to:
En-suite shower room
1.99 m x 1.82 m (6'6" x 6'0")
Fitted suite with pedestal wash basin, close coupled wc and Corner shower cubicle. Heated towel rail/radiator.
Bedroom two
3.66 m x 2.79 m (12'0" x 9'2")
Window to the front, radiator.
Bedroom three
2.93 m x 2.79 m (9'7" x 9'2")
Window to the rear, radiator.
Bedroom four
2.91 m x 2.17 m (9'7" x 7'1")
Window to the rear, radiator.
Family bathroom
2.07 m x 1.90 m (6'9" x 6'3")
Fitted white suite with pedestal wash basin, close coupled wc and bath with shower over. Part ceramic tiled splashback, heated towel rail radiator. Window to the rear.
Front garden
To the front of the property there is a small open plan lawned area. Driveway leading to :
Single integral garage
5.82 m x 4.67 m (19'1" x 15'4")
Single up and over door, power and light connected.
Rear garden
Gated pedestrian side access to a larger than average garden, with lawn, and large paved patio area. Raised rear flower and shrub border.
Services
All mains services are connected
Tenure
Freehold
Viewing
By prior appointment with Pocock and Shaw
Brochures
Brochure of 49 Clarke Close- COUNCIL TAXA payment made to your local authority in order to pay for local services like schools, libraries, and refuse collection. The amount you pay depends on the value of the property.Read more about council Tax in our glossary page.
- Band: E
- PARKINGDetails of how and where vehicles can be parked, and any associated costs.Read more about parking in our glossary page.
- Yes
- GARDENA property has access to an outdoor space, which could be private or shared.
- Yes
- ACCESSIBILITYHow a property has been adapted to meet the needs of vulnerable or disabled individuals.Read more about accessibility in our glossary page.
- Ask agent
Clarke Close, Cottenham
Add an important place to see how long it'd take to get there from our property listings.
__mins driving to your place
Get an instant, personalised result:
- Show sellers you’re serious
- Secure viewings faster with agents
- No impact on your credit score
Your mortgage
Notes
Staying secure when looking for property
Ensure you're up to date with our latest advice on how to avoid fraud or scams when looking for property online.
Visit our security centre to find out moreDisclaimer - Property reference PCZ-33288615. The information displayed about this property comprises a property advertisement. Rightmove.co.uk makes no warranty as to the accuracy or completeness of the advertisement or any linked or associated information, and Rightmove has no control over the content. This property advertisement does not constitute property particulars. The information is provided and maintained by Pocock & Shaw, Cambridge. Please contact the selling agent or developer directly to obtain any information which may be available under the terms of The Energy Performance of Buildings (Certificates and Inspections) (England and Wales) Regulations 2007 or the Home Report if in relation to a residential property in Scotland.
*This is the average speed from the provider with the fastest broadband package available at this postcode. The average speed displayed is based on the download speeds of at least 50% of customers at peak time (8pm to 10pm). Fibre/cable services at the postcode are subject to availability and may differ between properties within a postcode. Speeds can be affected by a range of technical and environmental factors. The speed at the property may be lower than that listed above. You can check the estimated speed and confirm availability to a property prior to purchasing on the broadband provider's website. Providers may increase charges. The information is provided and maintained by Decision Technologies Limited. **This is indicative only and based on a 2-person household with multiple devices and simultaneous usage. Broadband performance is affected by multiple factors including number of occupants and devices, simultaneous usage, router range etc. For more information speak to your broadband provider.
Map data ©OpenStreetMap contributors.









