Plot for sale
Ashes Lane, Hadlow, TN11
- PROPERTY TYPE
Plot
- BEDROOMS
2
- BATHROOMS
1
- SIZE
776 sq ft
72 sq m
Key features
- Plot of 0.25 acres with consent for a 2 bedroom single storey dwelling
- Beautiful setting overlooking open farmland
- Beautiful design with wood cladding and generous windows
- Private garden and driveway parking
- Situated just outside the village of Hadlow
- Tonbridge and its mainline station just a short drive away
- Friendly pub three-minute walk away
- Public golf course at top of the lane
- Stunning dog walks directly behind the property
Description
Consent has been granted to create a unique, single storey home, situated in a beautiful semi-rural countryside position, overlooking farmland fields and just outside the popular village of Hadlow. The sympathetically designed home embraces open plan living, with a large open plan kitchen / dining / living space and extensive glazing, taking advantage of the beautiful rural, tree-filled setting. The plot itself is very secluded, extending to 0.27 of an acre, and is situated down a quiet lane, close to a variety of villages and the larger market town of Tonbridge with its mainline station.
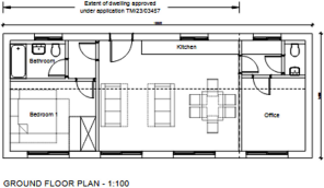
The detailed plans are for a 2 bedroom, 1 bathroom home, totalling just under 800 sq. ft. In the centre is the heart of this home: a large open plan space with room for cooking, dining, and relaxing. To one side of this space is a double bedroom with adjacent bathroom, whilst a TV snug / home office / bedroom sits to the other side. All of the main living accommodation features generous glazed windows and sliding doors which access the private garden. The consent includes for natural timber-clad walls and roof in either Siberian Larch or Western Red Cedar.
To the front of the house is a gravel driveway providing private off-road parking, whilst a further shared driveway provides a convenient turning area.
IMPORTANT INFORMATION
Planning consent granted has been granted under reference: TM/23/03457, with an amendment for a second bedroom granted under TM/00262/PA. The floorplans contained within the second planning permission are those shown here. Original consent was granted on 23rd December 2024 and the second consent granted on 23rd May 2025, and building must commence by 23rd December 2027.
All planning conditions are detailed on the Decision Notice dated 23rd May 2025, for which a copy is available on request.
Location
The plot is located just a short drive from the surrounding villages of Hadlow, Golden Green and Plaxtol, the former of which offers everything you might need on a daily basis including a farm shop, bakery, chemist and post office. The market town of Tonbridge is 3.5 miles from the property and has six supermarkets, other high street retailers and a multitude of public houses and restaurants. The mainline station at Tonbridge has a fast and frequent service into central London with daily parking facilities. The bustling town of Sevenoaks is 8 miles distant and offers excellent commercial and leisure facilities with well-regarded restaurants and shopping opportunities, and the impressive, award-winning Bluewater Shopping Centre is 22 miles distant. There are excellent schooling options in the area, within both the state and independent sectors. The plot is central catchment for sought-after West Kent Grammar schools including The Judd, TGS, TWGSB and Weald.
Garden
private garden
Parking - Driveway
Ashes Lane, Hadlow, TN11
NEAREST STATIONS
Distances are straight line measurements from the centre of the postcode- Tonbridge Station3.1 miles
- Beltring Station3.6 miles
- Yalding Station3.8 miles


Notes
Disclaimer - Property reference c65ce5b2-502c-4963-9d88-382f62965c74. The information displayed about this property comprises a property advertisement. Rightmove.co.uk makes no warranty as to the accuracy or completeness of the advertisement or any linked or associated information, and Rightmove has no control over the content. This property advertisement does not constitute property particulars. The information is provided and maintained by Maddisons Residential Ltd, Tunbridge Wells. Please contact the selling agent or developer directly to obtain any information which may be available under the terms of The Energy Performance of Buildings (Certificates and Inspections) (England and Wales) Regulations 2007 or the Home Report if in relation to a residential property in Scotland.
Map data ©OpenStreetMap contributors.





