Seahorses, 73 Draycott Road,Chiseldon, Swindon, SN4 0LT

- PROPERTY TYPE
Detached
- SIZE
Ask agent
- TENUREDescribes how you own a property. There are different types of tenure - freehold, leasehold, and commonhold.Read more about tenure in our glossary page.
Freehold
Key features
- Vacant care home
- Lapsed CQC registration for 20
- Detached property with modern extension
- Suitable for a variety of care categories
- Potential redevelopment opportunity (STPP)
- Affluent Wiltshire village
- Christie & Co Ref: 3470753
Description
This former Dementia care home was registered with CQC for 20 clients, located in an affluent village in Wiltshire.
This detached property is situated in a desirable residential road, with far reaching views across the neighbouring countryside.
The original property was built in the 1950s, and a modern five-bed extension was completed in 2009. Total capacity was for 20 clients in 18 bedrooms, 15 of which have en suite facilities.
Further accommodation comprises a three-bed self-contained flat on the top floor. This was previously used as the owners' accommodation, and now houses the manager?s offices and training room. This could easily revert to staff/owners' accommodation or potentially could increase the number of registered bedrooms, subject to planning.
This former care home is in Chiseldon, just off Junction 15 of the M4 on the A346 between Swindon and the historic market town Marlborough.
The care home is located on the edge of the village with scenic views across the Downs. This affluent village also has a good selection of local shops, pubs and two hotels.
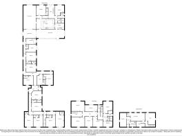
Ground Floor - Reception, hallway and good day space areas including a dining room, sitting room, conservatory, kitchen laundry, 12 bedrooms, bathroom and WC.
First Floor - The remaining six bedrooms, bathroom and WC.
Second Floor - Staff bedroom, two offices, kitchen, bathroom and staff/training room.
The property also has a shaft lift to the first floor. The top floor can be accessed via an internal staircase with an additional external wrought iron fire escape to the side elevation.
Approach is via a driveway leading to the front elevation with parking for several vehicles to the front.
To the rear is an attractive garden accessed via the conservatory. The extension, built in 2009, leads through the rear gardens.
Seahorses care home ceased trading in July 2024 and now offered on a closed basis with vacant possession. The CQC registration has lapsed.
The property represents an outstanding opportunity to re-establish a quality care home with exciting development potential. It would also suit specialist care providers.
Alternatively, we believe the property and site may lend itself to redevelopment for alternative uses, subject to the necessary consents. The current owner was exploring converting the site to 5 apartments and we do have plans on file for interested parties.
We are instructed to invite offers based on £750,000 for the freehold interest. Our client?s preference is to sell the property on an unconditional basis.
Brochures
Sales DetailsMortgage Calculator- COUNCIL TAXA payment made to your local authority in order to pay for local services like schools, libraries, and refuse collection. The amount you pay depends on the value of the property.Read more about council Tax in our glossary page.
- Ask agent
- PARKINGDetails of how and where vehicles can be parked, and any associated costs.Read more about parking in our glossary page.
- Yes
- GARDENA property has access to an outdoor space, which could be private or shared.
- Yes
- ACCESSIBILITYHow a property has been adapted to meet the needs of vulnerable or disabled individuals.Read more about accessibility in our glossary page.
- Ask agent
Seahorses, 73 Draycott Road,Chiseldon, Swindon, SN4 0LT
Add an important place to see how long it'd take to get there from our property listings.
__mins driving to your place
Get an instant, personalised result:
- Show sellers you’re serious
- Secure viewings faster with agents
- No impact on your credit score
Your mortgage
Notes
Staying secure when looking for property
Ensure you're up to date with our latest advice on how to avoid fraud or scams when looking for property online.
Visit our security centre to find out moreDisclaimer - Property reference 3470753resi. The information displayed about this property comprises a property advertisement. Rightmove.co.uk makes no warranty as to the accuracy or completeness of the advertisement or any linked or associated information, and Rightmove has no control over the content. This property advertisement does not constitute property particulars. The information is provided and maintained by Christie & Co, Care. Please contact the selling agent or developer directly to obtain any information which may be available under the terms of The Energy Performance of Buildings (Certificates and Inspections) (England and Wales) Regulations 2007 or the Home Report if in relation to a residential property in Scotland.
*This is the average speed from the provider with the fastest broadband package available at this postcode. The average speed displayed is based on the download speeds of at least 50% of customers at peak time (8pm to 10pm). Fibre/cable services at the postcode are subject to availability and may differ between properties within a postcode. Speeds can be affected by a range of technical and environmental factors. The speed at the property may be lower than that listed above. You can check the estimated speed and confirm availability to a property prior to purchasing on the broadband provider's website. Providers may increase charges. The information is provided and maintained by Decision Technologies Limited. **This is indicative only and based on a 2-person household with multiple devices and simultaneous usage. Broadband performance is affected by multiple factors including number of occupants and devices, simultaneous usage, router range etc. For more information speak to your broadband provider.
Map data ©OpenStreetMap contributors.





