
Birmingham Road,Marlbrook,Bromsgrove,Worcestershire,B61 0HL
- PROPERTY TYPE
 Plot
- BEDROOMS
 7
- BATHROOMS
 5
- SIZE
 4,460 sq ft
414 sq m
Key features
- Building plot for two dwellings
 - Lapsed planning granted 15/10/2015
 - Previous planning for two storey house & bungalow
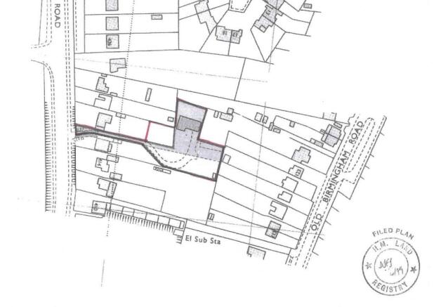
 - Approximately 0.45 acre site
 - Freehold tenure
 - Mains services available
 - Subject to planning permission deal offered
 - Set well back from main road
 - Popular location between M42 & M5 motorways
 
Description
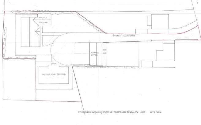
'BUILDING PLOT FOR TWO RESIDENTIAL DWELLINGS, SUBJECT TO REINSTATEMENT OF PLANNING PERMISSION'
This plot had planning permission granted on 15/10/2015 for a detached two storey house, a detached bungalow and a pair of garages. The planning permission has now lapsed and will need reinstating, however, the owner is prepared to agree a sale subject to planning permission.
The plot amounts to approximately 0.45 acre and is situated in a desirable residential area between the M5 & M42 motorways on the outskirts of Birmingham, convenient for commuting to Birmingham and the facilities of Bromsgrove. We are informed that all mains services are available, but may be subject to connection charges.
Planning permission was granted for a detached two storey house with internal accommodation of approximately 2,870sqft, a detached bungalow with internal accommodation of approximately 1,590sqft and a pair of garages.
- Approximately 2,870sqft
 - Reception hall
 - Toilet
 - Cloakroom
 - Through living room
 - Study
 - Open plan kitchen & family room
 - Utility room
 - Landing with store
 - 4 double bedrooms
 - 2 en suites
 - Family bathroom
 - Garage
 
- Approximately 1,590sqft
 - Reception hall
 - Lounge
 - Living room
 - Kitchen & Dining room
 - Utility room
 - 3 bedrooms
 - 1 en suite
 - Family bathroom
 - Garage
 
Brochures
Brochure 1Birmingham Road,Marlbrook,Bromsgrove,Worcestershire,B61 0HL
NEAREST STATIONS
Distances are straight line measurements from the centre of the postcode- Barnt Green Station2.2 miles
 - Bromsgrove Station2.7 miles
 - Alvechurch Station3.5 miles
 
Notes
Disclaimer - Property reference S1360693. The information displayed about this property comprises a property advertisement. Rightmove.co.uk makes no warranty as to the accuracy or completeness of the advertisement or any linked or associated information, and Rightmove has no control over the content. This property advertisement does not constitute property particulars. The information is provided and maintained by Allan Morris, BROMSGROVE. Please contact the selling agent or developer directly to obtain any information which may be available under the terms of The Energy Performance of Buildings (Certificates and Inspections) (England and Wales) Regulations 2007 or the Home Report if in relation to a residential property in Scotland.
Map data ©OpenStreetMap contributors.









