3 bedroom flat for sale
Forrester Way, London, E15

- PROPERTY TYPE
Flat
- BEDROOMS
3
- BATHROOMS
2
- SIZE
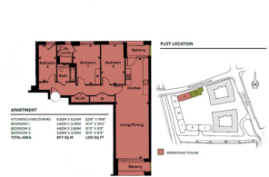
1,051 sq ft
98 sq m
- TENUREDescribes how you own a property. There are different types of tenure - freehold, leasehold, and commonhold.Read more about tenure in our glossary page.
Ask agent
Key features
- Three spacious bedrooms - Ideal for families or sharers, with ample natural light.
- Two modern bathrooms - Includes one en-suite for the master bedroom.
- Excellent transport links - Close to Stratford Underground, Overground & DLR stations.
- Contemporary interior design - Neutral tones and modern finishes throughout.
- Proximity to amenities - Near Westfield Stratford, Queen Elizabeth Olympic Park, and local schools.
- Fully integrated kitchen - With built-in appliances and generous storage.
Description
Situated on a high floor, the apartment features a bright and airy open-plan living and dining area with floor-to-ceiling windows that flood the space with natural light. A private balcony extends from the lounge, providing a lovely spot to enjoy morning coffee or unwind in the evenings with far-reaching city views.
The contemporary kitchen is fully fitted with integrated appliances and generous storage, ideal for those who love to cook and entertain. The master bedroom benefits from a sleek en-suite bathroom, while the two additional bedrooms are well-sized, making them suitable for children, guests, or home office use.
The second bathroom is stylishly designed and finished to a high standard, offering both a bath and shower for added flexibility.
Additional benefits include secure entry, lift access, and a well-maintained communal environment. Residents also benefit from being moments away from Westfield Stratford City, Queen Elizabeth Olympic Park, and excellent transport links including Stratford Underground, Overground, DLR, and Elizabeth Line services.
This property is ideal for families, professionals, or investors seeking a turn-key opportunity in one of East London's most dynamic areas.
- COUNCIL TAXA payment made to your local authority in order to pay for local services like schools, libraries, and refuse collection. The amount you pay depends on the value of the property.Read more about council Tax in our glossary page.
- Ask agent
- PARKINGDetails of how and where vehicles can be parked, and any associated costs.Read more about parking in our glossary page.
- Ask agent
- GARDENA property has access to an outdoor space, which could be private or shared.
- Communal garden
- ACCESSIBILITYHow a property has been adapted to meet the needs of vulnerable or disabled individuals.Read more about accessibility in our glossary page.
- Ask agent
Energy performance certificate - ask agent
Forrester Way, London, E15
Add an important place to see how long it'd take to get there from our property listings.
__mins driving to your place
Get an instant, personalised result:
- Show sellers you’re serious
- Secure viewings faster with agents
- No impact on your credit score
Your mortgage
Notes
Staying secure when looking for property
Ensure you're up to date with our latest advice on how to avoid fraud or scams when looking for property online.
Visit our security centre to find out moreDisclaimer - Property reference Watermanhouse404. The information displayed about this property comprises a property advertisement. Rightmove.co.uk makes no warranty as to the accuracy or completeness of the advertisement or any linked or associated information, and Rightmove has no control over the content. This property advertisement does not constitute property particulars. The information is provided and maintained by Celestial Globe, Westminster. Please contact the selling agent or developer directly to obtain any information which may be available under the terms of The Energy Performance of Buildings (Certificates and Inspections) (England and Wales) Regulations 2007 or the Home Report if in relation to a residential property in Scotland.
*This is the average speed from the provider with the fastest broadband package available at this postcode. The average speed displayed is based on the download speeds of at least 50% of customers at peak time (8pm to 10pm). Fibre/cable services at the postcode are subject to availability and may differ between properties within a postcode. Speeds can be affected by a range of technical and environmental factors. The speed at the property may be lower than that listed above. You can check the estimated speed and confirm availability to a property prior to purchasing on the broadband provider's website. Providers may increase charges. The information is provided and maintained by Decision Technologies Limited. **This is indicative only and based on a 2-person household with multiple devices and simultaneous usage. Broadband performance is affected by multiple factors including number of occupants and devices, simultaneous usage, router range etc. For more information speak to your broadband provider.
Map data ©OpenStreetMap contributors.




