Office to lease
20 St. Andrews Crescent, Cardiff CF10 3DD
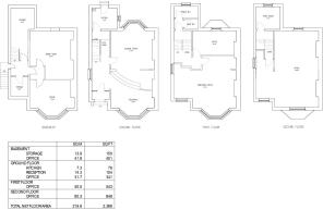
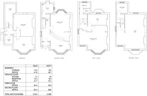
- SIZE AVAILABLE
2,366 sq ft
220 sq m
- SECTOR
Office to lease
- USE CLASSUse class orders: Class E
E
Lease details
- Lease available date:
- Ask agent
- Lease type:
- Long term
- Furnish type:
- Unfurnished
Key features
- 10 parking spaces
- Large storage area
- Lots of natural light
- Close to retail and leisure
- Close to train and bus stations
Description
Easy access from main road networks, Junction 32 of the M4 motorway is just 15 minutes North and the A48 bypass is 1 mile North. As well as established on-site parking there is ample on-street parking, including EV charging points in the vicinity. A NCP car park is situated approximately 150 metres away. There are a number of bus stops on Dumfries Place which is 150 metres South, and Cardiff Queen Street Rail Station is within 500 metres.
20 St Andrews Crescent comprises a three storey period property providing good quality modern self contained office building incorporating toilet and kitchen facilities, double glazed windows and gas fired central heating.
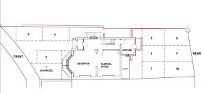
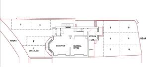
Up to 4 spaces at the front and 6 back to back spaces at the rear, please see attached car parking plan.
What3Words page.chimp.circle
Energy Performance Certificates
EPCBrochures
20 St. Andrews Crescent, Cardiff CF10 3DD
NEAREST STATIONS
Distances are straight line measurements from the centre of the postcode- Cardiff Queen Street Station0.3 miles
- Cathays Station0.4 miles
- Cardiff Central Station0.7 miles
Notes
Disclaimer - Property reference FM25090. The information displayed about this property comprises a property advertisement. Rightmove.co.uk makes no warranty as to the accuracy or completeness of the advertisement or any linked or associated information, and Rightmove has no control over the content. This property advertisement does not constitute property particulars. The information is provided and maintained by Fletcher Morgan Consultants Limited, Cardiff. Please contact the selling agent or developer directly to obtain any information which may be available under the terms of The Energy Performance of Buildings (Certificates and Inspections) (England and Wales) Regulations 2007 or the Home Report if in relation to a residential property in Scotland.
Map data ©OpenStreetMap contributors.




