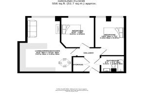
2 bedroom apartment for sale
Park Road, Timperley, Altrincham

- PROPERTY TYPE
Apartment
- BEDROOMS
2
- BATHROOMS
1
- SIZE
Ask agent
Key features
- TOP FLOOR APARTMENT WITH PLEASANT ASPECT TO REAR
- NO ONWARD CHAIN
- OPPOSITE METROLINK
- DEVELOPMENT NEXT TO SHOPS, AMENITIES AND CANAL TOWPATH WALKS
- IMMACULATE PRESENTATION
- CONTEMPORARY FINISH THROUGHOUT
- LIFT ACCESS TO ALL FLOORS
- ALLOCATED PARKING
Description
Immaculate and contemporary top-floor apartment offering two well-proportioned bedrooms, lift access, and presented in turnkey condition. Ideally located opposite the Metrolink and next to local shops and amenities, with scenic canal towpath walks nearby. Features include an open-plan living/kitchen/dining area with integrated appliances, a beautiful modern bathroom, and an allocated parking space
DESCRIPTION
This wonderful and contemporary top-floor apartment combines modern design with everyday convenience. Immaculately presented throughout, this two double bedroom home is the perfect turnkey opportunity for first-time buyers, downsizers, or savvy investors.
Step inside to discover a bright and spacious open-plan living area that flows seamlessly into a sleek, modern kitchen complete with integrated appliances and a designated dining space; ideal for entertaining or relaxing in style. Large windows invite in plenty of natural light, creating a warm and inviting atmosphere.
The two beautifully presented bedrooms offer peaceful retreats, while the beautifully appointed bathroom features high-quality fixtures and a stylish finish. The apartment also features a separate utility cupboard with bespoke shelving for additional storage. Every detail of this home has been thoughtfully considered for comfort and modern living.
Located on the top floor with lift access to all levels, this apartment also benefits from an allocated parking space and a small communal garden area. Perfectly positioned opposite a convenient Metrolink station and just steps from local shops and everyday amenities, you'll also enjoy the added charm of nearby canal towpath walks; ideal for weekend strolls or an evening unwind.
Don't miss the chance to make this exceptional apartment your own; modern living at its most effortless.
Brochures
FINAL.pdf- COUNCIL TAXA payment made to your local authority in order to pay for local services like schools, libraries, and refuse collection. The amount you pay depends on the value of the property.Read more about council Tax in our glossary page.
- Band: C
- PARKINGDetails of how and where vehicles can be parked, and any associated costs.Read more about parking in our glossary page.
- Yes
- GARDENA property has access to an outdoor space, which could be private or shared.
- Ask agent
- ACCESSIBILITYHow a property has been adapted to meet the needs of vulnerable or disabled individuals.Read more about accessibility in our glossary page.
- Ask agent
Park Road, Timperley, Altrincham
Add an important place to see how long it'd take to get there from our property listings.
__mins driving to your place
Get an instant, personalised result:
- Show sellers you’re serious
- Secure viewings faster with agents
- No impact on your credit score
Your mortgage
Notes
Staying secure when looking for property
Ensure you're up to date with our latest advice on how to avoid fraud or scams when looking for property online.
Visit our security centre to find out moreDisclaimer - Property reference 1014546. The information displayed about this property comprises a property advertisement. Rightmove.co.uk makes no warranty as to the accuracy or completeness of the advertisement or any linked or associated information, and Rightmove has no control over the content. This property advertisement does not constitute property particulars. The information is provided and maintained by Gascoigne Halman, Altrincham. Please contact the selling agent or developer directly to obtain any information which may be available under the terms of The Energy Performance of Buildings (Certificates and Inspections) (England and Wales) Regulations 2007 or the Home Report if in relation to a residential property in Scotland.
*This is the average speed from the provider with the fastest broadband package available at this postcode. The average speed displayed is based on the download speeds of at least 50% of customers at peak time (8pm to 10pm). Fibre/cable services at the postcode are subject to availability and may differ between properties within a postcode. Speeds can be affected by a range of technical and environmental factors. The speed at the property may be lower than that listed above. You can check the estimated speed and confirm availability to a property prior to purchasing on the broadband provider's website. Providers may increase charges. The information is provided and maintained by Decision Technologies Limited. **This is indicative only and based on a 2-person household with multiple devices and simultaneous usage. Broadband performance is affected by multiple factors including number of occupants and devices, simultaneous usage, router range etc. For more information speak to your broadband provider.
Map data ©OpenStreetMap contributors.




