
Skelf Street, Church Fenton, LS24

- PROPERTY TYPE
Semi-Detached
- BEDROOMS
3
- BATHROOMS
2
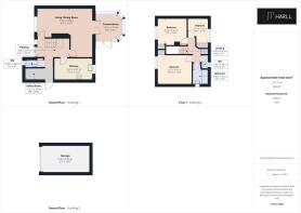
- SIZE
1,001 sq ft
93 sq m
- TENUREDescribes how you own a property. There are different types of tenure - freehold, leasehold, and commonhold.Read more about tenure in our glossary page.
Freehold
Key features
- Three Bedroomed Semi Detached House
- North Facing Rear Garden
- 93 Sq. M / 1001 Sq. Ft.
- Estate Charge: £89.31 paid quarterly
- Allocated Parking Space. Separate Garage.
- Boiler installed 2018. Last serviced: June 2025
- Broadband: FTTP. Mobile 4G
- Brick Built Construction
- EPC Rating 'C' (69)
- Council Tax Band 'C'
Description
Welcome to a charming three bedroomed semi-detached house located on the old RAF base, which offers home owners generous proportioned homes with large gardens in an inclusive estate.
Step inside this brick-built abode and be greeted by a crisply decorated interior that exudes warmth and comfort. The versatile layout offers ample room to grow and accommodate various living needs. Elbow room comes with elbow room, as the airy living room seamlessly flows into the dining area, perfect for hosting gatherings or simply cosying down with loved ones.
The heart of the home, the kitchen, is a culinary haven equipped with modern conveniences to inspire your inner chef. With a sleek design, quartz worktops and an abundance of storage, meal preparations are a delight. Whether whipping up a quick breakfast or a gourmet dinner, this space is sure to impress. The kitchen also has attractive Karndean flooring.
The three well-appointed bedrooms offer peaceful sanctuaries to retreat to after a long day. Each room is thoughtfully designed to provide comfort and tranquillity, ensuring a good night's rest. The master bedroom boasts a bright ambience and ample space to unwind and rejuvenate.
Outside, to the front is a low maintenance, open plan forecourt and allocated parking space. The garage is situated as the bottom of the road. To the rear is a generous sized rear garden with paved patio area, perfect for easting al-fresco.
Envision yourself in this delightful home, where every corner tells a story and every room invites you to make it your own. Don't miss this opportunity to own a piece of tranquillity and comfort. Arrange a viewing today and let the magic unfold.
Important Information:
- Busk Lane Resident's Company have appointed Lambert Smith Hampton to receive the quarterly service charge of £89.31
- The conservatory was installed by a previous owner
- The roads and paths on the estate are unadopted.
EPC Rating: C
Brochures
Property Brochure- COUNCIL TAXA payment made to your local authority in order to pay for local services like schools, libraries, and refuse collection. The amount you pay depends on the value of the property.Read more about council Tax in our glossary page.
- Band: C
- PARKINGDetails of how and where vehicles can be parked, and any associated costs.Read more about parking in our glossary page.
- Yes
- GARDENA property has access to an outdoor space, which could be private or shared.
- Yes
- ACCESSIBILITYHow a property has been adapted to meet the needs of vulnerable or disabled individuals.Read more about accessibility in our glossary page.
- Ask agent
Skelf Street, Church Fenton, LS24
Add an important place to see how long it'd take to get there from our property listings.
__mins driving to your place
Get an instant, personalised result:
- Show sellers you’re serious
- Secure viewings faster with agents
- No impact on your credit score
Your mortgage
Notes
Staying secure when looking for property
Ensure you're up to date with our latest advice on how to avoid fraud or scams when looking for property online.
Visit our security centre to find out moreDisclaimer - Property reference 05009232-678a-45cb-9e8d-f953b52b570f. The information displayed about this property comprises a property advertisement. Rightmove.co.uk makes no warranty as to the accuracy or completeness of the advertisement or any linked or associated information, and Rightmove has no control over the content. This property advertisement does not constitute property particulars. The information is provided and maintained by JP Harll, Selby. Please contact the selling agent or developer directly to obtain any information which may be available under the terms of The Energy Performance of Buildings (Certificates and Inspections) (England and Wales) Regulations 2007 or the Home Report if in relation to a residential property in Scotland.
*This is the average speed from the provider with the fastest broadband package available at this postcode. The average speed displayed is based on the download speeds of at least 50% of customers at peak time (8pm to 10pm). Fibre/cable services at the postcode are subject to availability and may differ between properties within a postcode. Speeds can be affected by a range of technical and environmental factors. The speed at the property may be lower than that listed above. You can check the estimated speed and confirm availability to a property prior to purchasing on the broadband provider's website. Providers may increase charges. The information is provided and maintained by Decision Technologies Limited. **This is indicative only and based on a 2-person household with multiple devices and simultaneous usage. Broadband performance is affected by multiple factors including number of occupants and devices, simultaneous usage, router range etc. For more information speak to your broadband provider.
Map data ©OpenStreetMap contributors.






