
Church Road, Worcester Park, Surrey, KT4

- PROPERTY TYPE
Detached
- BEDROOMS
4
- BATHROOMS
2
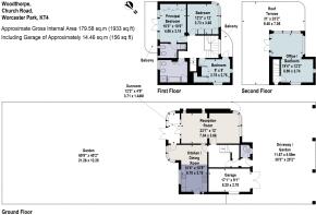
- SIZE
1,933 sq ft
180 sq m
- TENUREDescribes how you own a property. There are different types of tenure - freehold, leasehold, and commonhold.Read more about tenure in our glossary page.
Freehold
Key features
- Detached family house
- Driveway/off street parking
- Garage
- Double reception room
- Sun room
- Generous principal bedroom with a balcony
- Three further bedrooms
- Large roof terrace
- Worcester Park station 0.6 mile
- EPC Rating = E
Description
Description
This charming 1920s Art Deco detached family home is well located in the popular Worcester Park area.
The house is set back from the road behind a generous driveway/off street parking and opens to a central hallway with a guest cloakroom. The property also benefits from a garage to the front.
A double reception room with large Art Deco windows allows a tremendous amount of natural light that opens at the rear to a sunroom. Alongside is a fitted kitchen/dining room with a useful side door. Each floor features different solid wood floors with a mahogany floor across the reception space. At the rear of the house, there is a large private garden, accessible via the sun room and through the side gate;extending to 60ft.
Upstairs on the first floor, are three bedrooms, each benefitting from fitted wardrobes. The impressive principal bedroom features an en suite bathroom and a private balcony. On the top floor is an additional bedroom, that could be used as a home office, and has access to a large roof terrace with wonderful far reaching views.
Location
Church Road is approx. 0.2 miles to the High Street with a variety of shops and restaurants. Worcester Park train station is 0.6 miles and Malden Manor station is 0.4 miles. Trains to London Waterloo run four times per hour and take approx. 25 minutes. There are also regular bus routes towards Kingston, Wimbledon and Sutton.
Local green spaces include Mayflower Park approx. 1.7 miles away and Nonsuch Park around 3.5 miles away. There are several highly regarded local schools in the area, including Richard Challoner, Malden Parochial C of E Primary School and Cheam Common Infant’s Academy. Bus routes connect to Tiffin Boys School and The Tiffin Girls School.
Source of distances: Google Pedometer
Source of times
All measurements are approximate.
Square Footage: 1,933 sq ft
Additional Info
Gas central heating
Private driveway
Off street parking
Garage
Worcester Park station 0.6 mile
Brochures
Web DetailsParticulars- COUNCIL TAXA payment made to your local authority in order to pay for local services like schools, libraries, and refuse collection. The amount you pay depends on the value of the property.Read more about council Tax in our glossary page.
- Band: F
- PARKINGDetails of how and where vehicles can be parked, and any associated costs.Read more about parking in our glossary page.
- Garage,Driveway,Off street
- GARDENA property has access to an outdoor space, which could be private or shared.
- Yes
- ACCESSIBILITYHow a property has been adapted to meet the needs of vulnerable or disabled individuals.Read more about accessibility in our glossary page.
- Ask agent
Church Road, Worcester Park, Surrey, KT4
Add an important place to see how long it'd take to get there from our property listings.
__mins driving to your place
Get an instant, personalised result:
- Show sellers you’re serious
- Secure viewings faster with agents
- No impact on your credit score
Your mortgage
Notes
Staying secure when looking for property
Ensure you're up to date with our latest advice on how to avoid fraud or scams when looking for property online.
Visit our security centre to find out moreDisclaimer - Property reference TDS250074. The information displayed about this property comprises a property advertisement. Rightmove.co.uk makes no warranty as to the accuracy or completeness of the advertisement or any linked or associated information, and Rightmove has no control over the content. This property advertisement does not constitute property particulars. The information is provided and maintained by Savills, Wimbledon. Please contact the selling agent or developer directly to obtain any information which may be available under the terms of The Energy Performance of Buildings (Certificates and Inspections) (England and Wales) Regulations 2007 or the Home Report if in relation to a residential property in Scotland.
*This is the average speed from the provider with the fastest broadband package available at this postcode. The average speed displayed is based on the download speeds of at least 50% of customers at peak time (8pm to 10pm). Fibre/cable services at the postcode are subject to availability and may differ between properties within a postcode. Speeds can be affected by a range of technical and environmental factors. The speed at the property may be lower than that listed above. You can check the estimated speed and confirm availability to a property prior to purchasing on the broadband provider's website. Providers may increase charges. The information is provided and maintained by Decision Technologies Limited. **This is indicative only and based on a 2-person household with multiple devices and simultaneous usage. Broadband performance is affected by multiple factors including number of occupants and devices, simultaneous usage, router range etc. For more information speak to your broadband provider.
Map data ©OpenStreetMap contributors.





