Nicker Hill, Keyworth, Nottingham

- PROPERTY TYPE
Detached
- BEDROOMS
5
- BATHROOMS
4
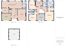
- SIZE
2,764 sq ft
257 sq m
- TENUREDescribes how you own a property. There are different types of tenure - freehold, leasehold, and commonhold.Read more about tenure in our glossary page.
Freehold
Key features
- Double Front Five Bedroom Detached House
- Immaculately Presented
- Featuring Many Upgrades Throughout
- Large, Corner Plot
- Prestigious Address
- Sweeping Private Driveway & Double Garage
- Three En-Suite Bedrooms
- High Quality Finish
Description
Meticulously maintained by the current owners to preserve its new build finish and feel, the attractive, double fronted home stands proud on a large corner plot of 6,500 square feet on this prestigious road entranced by a large, sweeping private resin finish driveway.
Boasting an impressive 2,764 square feet of internal space, each room is generously sized and complete with all the modern features expected of a family home of this calibre, which includes a Visonic home alarm system and a whole house scale prevention/ water filtration system. The attention to detail within the finish is impeccable and this is seen once you enter the home into the grand hallway with chandelier and galleried landing. Off the hallway is the generously sized living room, formal dining room, cloakroom and the real heart of the home is the open plan living/dining/kitchen which spans the entire width of the property and features bi-folding doors to the large rear garden and a fully equipped kitchen with a separate utility room and separate larder/boot room. To the ground floor is also a study which could be utilised as an optional playroom or home gym. To the first floor and off the spectacular galleried landing is the master suite; a large bedroom area accompanies a walk-in wardrobe/dressing area with an abundance of fitted wardrobes and a stylish large master en-suite with walk-in shower, bath and twin vanity wash hand basins. Additionally, bedrooms two and three both feature their own en-suite shower rooms and bedrooms four and five are also spacious doubles. A further four-piece family bathroom stands on the first floor. Externally, the property affords a large and enclosed rear garden alongside sizeable front garden with a private driveway providing ample off-road parking for several vehicles and leading to a detached double garage. Porcelanosa's premium tiling range, Villeroy & Boch sanitaryware throughout and premium ceiling coving throughout the entire property are just a few of the many premium upgrades installed at the home's construction, ensuring a refined and luxurious feeling throughout. Early viewing is strongly recommended to appreciate the quality of this property on offer.
ENTRANCE HALL 16' 6" x 10' 2" (5.03m x 3.1m) Accessed via an external composite front door with opaque uPVC triple glazed windows to either side, with Porcelanosa Tanzania premium range tiling, underfloor heating, a spacious understairs storage cupboard with a ceiling light, premium carpeted stairs rising to the first floor and chandelier.
LIVING ROOM 19' 4" x 14' 9" (5.89m x 4.5m) With fitted premium carpeting, uPVC triple glazed window to the front elevation, electric fire with surround and hearth, underfloor heating and two stunning chandelier ceiling lights.
DINING ROOM 16' 2" x 11' 11" (4.93m x 3.63m) With fitted premium carpeting, uPVC triple glazed window to the front elevation, underfloor heating and two opulent chandelier ceiling lights.
CLOAKROOM 7' 3" x 3' 8" (2.21m x 1.12m) With Villeroy & Boch sanitaryware throughout; including low flush WC and half pedestal wash hand basin with a mirrored wall mounted unit, Porcelanosa Tanzania premium range tiled flooring and wall tiling, underfloor heating, fitted ceiling spotlights and Envirovent ceiling extractor fan.
LIVING/DINING/KITCHEN 35' 6" x 13' 1" (10.82m x 3.99m) The true heart and hub of the home is this stunning open plan space which seamlessly blends cooking, eating and relaxing and is ideal for entertaining guests or a busy family. The fitted kitchen - which is Symphony's premium range - has multiple high and low level units, larder cupboards with a worktop over incorporating a stainless steel sink, upstand, USB wall plugs, inset five ring Siemens hob with overhead Elica extractor hood and four Siemens Wi-Fi integrated self-cleaning electric ovens incorporating a microwave/grill and steam cook oven. Integrated dishwasher, full sized Siemens fridge and freezer and Caple drinks cooler. Alongside the kitchen, the living and dining areas all have Porcelanosa Tanzania premium range tiled flooring, underfloor heating and bespoke made electric blinds installed on the Liniar Modlok bi-folding doors to the rear garden and two uPVC triple glazed windows to the rear elevation, fitted ceiling spotlights and Envirovent ceiling extractor fan.
UTILITY ROOM 10' 7" x 6' 2" (3.23m x 1.88m) With a range of fitted high and low level Symphony's premium range units with a worktop over incorporating a stainless steel sink, washing machine and dryer plumbing, Porcelanosa Tanzania premium range tiled flooring, underfloor heating, uPVC triple glazed window with bespoke made blind to the side elevation and external composite door to the rear garden, fitted ceiling spotlights and Envirovent ceiling extractor fan.
STUDY 12' 2" x 8' 7" (3.71m x 2.62m) With fitted premium carpeting, underfloor heating, USB wall plugs, uPVC triple glazed window with bespoke made blind to the side elevation and ceiling light.
LANDING 17' 3" x 13' (5.26m x 3.96m) The impressive galleried landing overlooks the entrance hall and has fitted premium carpeting, airing cupboard, large storage cupboard with ceiling light, loft hatch, grand chandelier and three further ceiling lights.
MASTER SUITE 14' 9" x 14' 8" (4.5m x 4.47m) The opulent master suite has fitted premium carpeting throughout, uPVC triple glazed window with bespoke made blinds to the front elevation, wall mounted radiator with entire floor Therma heating control pad and ceiling light.
EN-SUITE 11' x 9' 11" (3.35m x 3.02m) With full Villeroy & Boch sanitaryware throughout; including a large walk-in shower enclosure with a mains fed Aqualisa shower with riser and twin rainfall shower head, panelled V&B bath, low flush w.c and his & hers vanity wash hand basins with demister light up mirrored flush wall units. Porcelanosa premium Tanzania range of floor and wall tiling, two chrome heated towel rails, opaque uPVC triple glazed windows to the rear elevation, fitted ceiling spotlights and Envirovent ceiling extractor fan.
BEDROOM TWO 13' 7" x 9' 8" (4.14m x 2.95m) With fitted premium carpeting, fitted wardrobes by Symphony's premium Orion range, uPVC triple glazed windows with bespoke made blinds to the rear elevation, wall mounted radiator and ceiling light.
EN-SUITE 8' 11" x 4' 1" (2.72m x 1.24m) With full Villeroy & Boch sanitaryware throughout; including a shower enclosure with a mains fed Aqualisa shower with riser and shower head, low flush w.c and half pedestal wash hand basin with mirrored wall mounted unit. Porcelanosa Tanzania premium range tiled flooring and wall tiling, chrome heated towel rail, opaque uPVC triple glazed window to the side elevation, fitted ceiling spotlights and Envirovent ceiling extractor fan.
BEDROOM THREE 13' 2" x 10' 1" (4.01m x 3.07m) With fitted premium carpeting, uPVC triple glazed windows with bespoke made blinds to the rear elevation, wall mounted radiator and ceiling light.
EN-SUITE 8' 11" x 4' 2" (2.72m x 1.27m) With Villeroy & Boch sanitaryware throughout; including a shower enclosure with a mains fed Aqualisa shower with riser and shower head, low flush WC and half pedestal wash hand basin with mirrored wall mounted unit. Porcelanosa Tanzania premium range tiled flooring and wall tiling, chrome heated towel rail, opaque uPVC double glazed window to the side elevation, fitted ceiling spotlights and Envirovent ceiling extractor fan.
BEDROOM FOUR 13' 5" x 9' 7" (4.09m x 2.92m) With fitted premium carpeting, fitted wardrobes by Symphony's premium Orion range, uPVC triple glazed windows with bespoke made blinds to the front elevation, wall mounted radiator and ceiling light.
BEDROOM FIVE 11' 5" x 9' 9" (3.48m x 2.97m) With fitted premium carpeting, uPVC triple glazed windows with bespoke made blinds to the rear elevation, wall mounted radiator and ceiling light.
FAMILY BATHROOM 9' 10" x 6' 9" (3m x 2.06m) With Villeroy & Boch sanitaryware throughout; including a shower enclosure with a mains fed Aqualisa shower with riser and shower head, low flush WC and vanity wash hand basin with wall mounted mirror and panelled bath. Porcelanosa Tanzania premium range tiled flooring and wall tiling, chrome heated towel rail, opaque uPVC triple glazed window to the rear elevation, fitted ceiling spotlights and Envirovent ceiling extractor fan.
EXTERNAL The property is situated on an enviable corner plot and offers a fantastic sized, enclosed rear garden which is mainly laid to lawn with an outside tap, two outside lights, secure gate access and wall and fenced boundary. To the front there is a laid to lawn garden with a knee high hedged front border, a large sweeping resin finish driveway providing ample off-road parking for several vehicles and leading through a gated side driveway to the detached double garage with up and over door, power and lighting, with a solar security flood light.
LOCATION Sitting in the heart of Keyworth's prestigious Nicker Hill - one of South Nottinghamshire's most sought after and highly regarded villages - the property provides easy access to the A52 with an array of local amenities and excellent schools.
AGENTS NOTES The property benefits from an alarm system and has been expertly snagged following initial completion of construction
Shown to pre-qualified buyers only.
- COUNCIL TAXA payment made to your local authority in order to pay for local services like schools, libraries, and refuse collection. The amount you pay depends on the value of the property.Read more about council Tax in our glossary page.
- Band: G
- PARKINGDetails of how and where vehicles can be parked, and any associated costs.Read more about parking in our glossary page.
- Garage,On street,Off street
- GARDENA property has access to an outdoor space, which could be private or shared.
- Yes
- ACCESSIBILITYHow a property has been adapted to meet the needs of vulnerable or disabled individuals.Read more about accessibility in our glossary page.
- Ask agent
Nicker Hill, Keyworth, Nottingham
Add an important place to see how long it'd take to get there from our property listings.
__mins driving to your place
Get an instant, personalised result:
- Show sellers you’re serious
- Secure viewings faster with agents
- No impact on your credit score
Your mortgage
Notes
Staying secure when looking for property
Ensure you're up to date with our latest advice on how to avoid fraud or scams when looking for property online.
Visit our security centre to find out moreDisclaimer - Property reference 100658010067. The information displayed about this property comprises a property advertisement. Rightmove.co.uk makes no warranty as to the accuracy or completeness of the advertisement or any linked or associated information, and Rightmove has no control over the content. This property advertisement does not constitute property particulars. The information is provided and maintained by Martin & Co, Beeston. Please contact the selling agent or developer directly to obtain any information which may be available under the terms of The Energy Performance of Buildings (Certificates and Inspections) (England and Wales) Regulations 2007 or the Home Report if in relation to a residential property in Scotland.
*This is the average speed from the provider with the fastest broadband package available at this postcode. The average speed displayed is based on the download speeds of at least 50% of customers at peak time (8pm to 10pm). Fibre/cable services at the postcode are subject to availability and may differ between properties within a postcode. Speeds can be affected by a range of technical and environmental factors. The speed at the property may be lower than that listed above. You can check the estimated speed and confirm availability to a property prior to purchasing on the broadband provider's website. Providers may increase charges. The information is provided and maintained by Decision Technologies Limited. **This is indicative only and based on a 2-person household with multiple devices and simultaneous usage. Broadband performance is affected by multiple factors including number of occupants and devices, simultaneous usage, router range etc. For more information speak to your broadband provider.
Map data ©OpenStreetMap contributors.




