
River Park, Marlborough, Wiltshire, SN8

- PROPERTY TYPE
Apartment
- BEDROOMS
1
- BATHROOMS
1
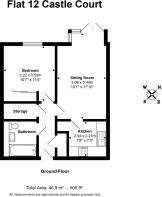
- SIZE
505 sq ft
47 sq m
Key features
- Ground floor apartment within a central Marlborough development for over 55s
- Light and spacious sitting room with French doors to communal garden
- Attractive, well-fitted kitchen
- Comfortable double bedroom with ample space
- Bathroom with matching white suite
- Generous storage and access to parking on a first come, first served basis
Description
A delightful apartment for people aged over 55 with features including well-presented accommodation, FRENCH DOORS to communal gardens and just a short level walk to MARLBOROUGH TOWN CENTRE.
DESCRIPTION
The apartment is entered via a welcoming hallway that leads into a spacious sitting room which is filled with natural light and features elegant French doors opening directly onto the communal garden, perfect for enjoying the outdoors in warmer months. The sitting room connects seamlessly to an attractive fitted kitchen which is both functional and tastefully appointed. The property includes a generous double bedroom with space for additional furniture, along with a well-presented bathroom featuring a matching white suite. Ample built-in storage solutions are thoughtfully integrated throughout the apartment, enhancing practicality and convenience for everyday living.
OUTSIDE
Set within a beautifully maintained central Marlborough development, the apartment benefits from charming communal gardens that provide peaceful green space for residents to enjoy. Parking is available on a first come, first served basis.
SERVICES & MATERIAL INFORMATION
The property operates on electric night storage heaters and benefits from double glazing.
EPC rating: C
Council tax band: C
Length of lease (years remaining): 63 years from date of listing
Annual ground rent amount: N/A
Ground rent review period: N/A
Annual service charge amount: £3,000
Service charge review period: Annual
The development’s enviable location allows for easy access to Marlborough’s High Street and its wide range of amenities, all within a short and level walk, making it an ideal choice for those seeking a relaxed and accessible lifestyle in later years.
Marlborough is a historic market town and provides a range of shopping and leisure facilities including a twice weekly market and a Rick Stein restaurant. The area is well served with excellent schools including St John's Academy, Marlborough College, Dauntsey's, and St. Francis. There are main line stations to London Paddington and the Southwest at Pewsey, Great Bedwyn (both about 5 miles away) and Hungerford (about 10 miles away). The major commercial centres of Swindon, Andover, and Newbury plus the M4, A303, and M3 are within easy reach. The countryside surrounding the town is designated as an Area of Outstanding Natural Beauty and includes the nearby Savernake Forest and the National Cycle Path.
Brochures
Particulars- COUNCIL TAXA payment made to your local authority in order to pay for local services like schools, libraries, and refuse collection. The amount you pay depends on the value of the property.Read more about council Tax in our glossary page.
- Band: C
- PARKINGDetails of how and where vehicles can be parked, and any associated costs.Read more about parking in our glossary page.
- Yes
- GARDENA property has access to an outdoor space, which could be private or shared.
- Ask agent
- ACCESSIBILITYHow a property has been adapted to meet the needs of vulnerable or disabled individuals.Read more about accessibility in our glossary page.
- Ask agent
River Park, Marlborough, Wiltshire, SN8
Add an important place to see how long it'd take to get there from our property listings.
__mins driving to your place
Get an instant, personalised result:
- Show sellers you’re serious
- Secure viewings faster with agents
- No impact on your credit score
Your mortgage
Notes
Staying secure when looking for property
Ensure you're up to date with our latest advice on how to avoid fraud or scams when looking for property online.
Visit our security centre to find out moreDisclaimer - Property reference PES250106. The information displayed about this property comprises a property advertisement. Rightmove.co.uk makes no warranty as to the accuracy or completeness of the advertisement or any linked or associated information, and Rightmove has no control over the content. This property advertisement does not constitute property particulars. The information is provided and maintained by Jones Robinson, Marlborough. Please contact the selling agent or developer directly to obtain any information which may be available under the terms of The Energy Performance of Buildings (Certificates and Inspections) (England and Wales) Regulations 2007 or the Home Report if in relation to a residential property in Scotland.
*This is the average speed from the provider with the fastest broadband package available at this postcode. The average speed displayed is based on the download speeds of at least 50% of customers at peak time (8pm to 10pm). Fibre/cable services at the postcode are subject to availability and may differ between properties within a postcode. Speeds can be affected by a range of technical and environmental factors. The speed at the property may be lower than that listed above. You can check the estimated speed and confirm availability to a property prior to purchasing on the broadband provider's website. Providers may increase charges. The information is provided and maintained by Decision Technologies Limited. **This is indicative only and based on a 2-person household with multiple devices and simultaneous usage. Broadband performance is affected by multiple factors including number of occupants and devices, simultaneous usage, router range etc. For more information speak to your broadband provider.
Map data ©OpenStreetMap contributors.





