Skip to content

Felthan, Barrigone, Askeaton, Ireland

Offers in Excess of
€180,000
REA, Dooley Newcastle West
PROPERTY TYPE

Detached

BEDROOMS

4

BATHROOMS

1

SIZE

Ask agent

Description

REA Dooley Group are pleased to present this detached property standing on to the market. The property has been vacant for some time and the current owners had started some remedial works. Will qualify for various grants, vacant homes, SEAI etc. Located on the N69 between the towns of Foynes and Askeaton. The Shannon estuary is visible to its rear. While this property requires finishing there are some works complete. Full list below.

New septic tank and Percolation Area; New pump in Well; Water testing; Pipe work ran from well into plant room in house; Power ran from pump house to plant room; Block up existing entrance at back of house with stone wall; Block up entrance at front of house with stone wall; Demolished existing stone walls at back of house; raised surrounding areas of the house to allow for level access from house to garden; Supply power from plant room to outdoor area and septic tank; Supply and fit hard core and 804 to pad for extension and Supply and fit steel mesh and concrete at 150mm to form subfloor; Run SWA cable underground from plant room to pad at top of site to allow for power to solar panels, shed and entrance gates; 2 x 7` x 7` front entrance gates to allow for an overall opening of 14 ` , galvanised and powder coated in white with all fittings; Remove plaster and stone work from existing fireplace to reveal inglenook fireplace, rebuild front of fireplace in cut stone; sand blast entire fireplace and Supply and fit oak mantlepiece; Level and strengthen floor joists in bedroom 2 from underneath and totally replace floor joists between sitting room and bathroom and laundry room
upstairs with 9 x 3 joists to compensate for weight from bathtub and laundry room , fit 18mm t&g osb sub flooring to both rooms; Supply and fit metal studding to bed 2 and partially to bathroom area; Supply and fit new sash windows to existing house; Dig out existing concrete floor of main house and fill with 804 aggregate to prepare for installation of DPC and liquid insulation; All windows and doors for new extension ordered and paid for with the exception of south facing door opening; Dig out and prep work done at top of site for construction of shed ie. hardcore ground fill and blinding; Conservation report carried out on the site and surrounding areas.



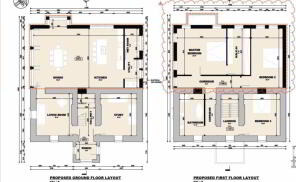
. The property has full planning for large extension see pics of plans attached. Full details on request and planning images are attached.

Notice
Please note we have not tested any apparatus, fixtures, fittings, or services. Interested parties must undertake their own investigation into the working order of these items. All measurements are approximate and photographs provided for guidance only.

Felthan, Barrigone, Askeaton, Ireland

NEAREST AIRPORTS

Distances are straight line measurements
  • Shannon(International)
    8.7 miles
  • Kerry(International)
    34.5 miles
  • Connemara(Local)
    47.1 miles
  • Connemara(Local)
    47.4 miles
  • Galway(International)
    48.5 miles

Advice on buying Irish property

Learn everything you need to know to successfully find and buy a property in Ireland.

About REA, Dooley Newcastle West

Carnegie Centre Bishop Street Newcastle West Co Limerick V42 RX72

REA Dooley Group office is located at 86 O'Connell Street, Limerick and in Newcastle West. Today we are recognised as a market leader in property sales and lettings throughout the city and county and our aim is to deliver the best quality of service to our clients by achieving maximum results for them.

We are prominent members of the Institute of Professional Auctioneers and Valuers as well as TEGOVA (The European Group of Valuers Association). We carry out professional valuations for all sectors of property and for all purposes required.

Notes

These notes are private, only you can see them.

This is a property advertisement provided and maintained by REA, Dooley Newcastle West (reference 1016731) and does not constitute property particulars. Whilst we require advertisers to act with best practice and provide accurate information, we can only publish advertisements in good faith and have not verified any claims or statements or inspected any of the properties, locations or opportunities promoted. Rightmove does not own or control and is not responsible for the properties, opportunities, website content, products or services provided or promoted by third parties and makes no warranties or representations as to the accuracy, completeness, legality, performance or suitability of any of the foregoing. We therefore accept no liability arising from any reliance made by any reader or person to whom this information is made available to. You must perform your own research and seek independent professional advice before making any decision to purchase or invest in overseas property.

Email agent

Email agent