Plot for sale
Elm Tree Road, Oulton Broad, Lowestoft
- PROPERTY TYPE
Plot
- SIZE
Ask agent
Key features
- EXCELLENT FREEHOLD BUILDING PLOT
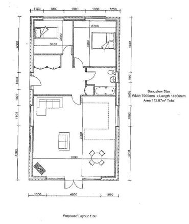
- PLANNING PERMISSION FOR THE ERECTION OF A 2 BEDROOM DETACHED BUNGALOW
- SET WELL BACK FROM THE MAIN ROAD
Description
Plot Size - The site extends to approximately 1. (26.6 meters by 10.10 metres). 2. Plus the driveway (10.7 meters x 7.6 meters). Site Size Approximate total = 350 square meters.
Please note the property has rights of way across the unmade access road from Elm tree Road.
As far as we are informed, there are no repairing obligations on neighbouring properties who use the road, but we understand those properties usually make minor repairs as and when needed.
Outline Planning Permission - Full planning permission was granted on the 2nd October 2023 Ref: DC/23/3638/FUL for the construction of a new 2 bedroom bungalow. Full details can be found on East Suffolk Council Planning website under Public Access.
Material Info - This property has:
Mains Water.
Flood Risk Info: Very low
* Broadband: Could achieve Ultrafast 1800 Mbps download 220 Mbps upload
* Mobile: EE, 02, THREE, VODAFONE ALL LIKELY
* Disclaimer: This information is based on predictions provided by Ofcom. Applicants should carry out their own enquiries to satisfy themselves that the coverage is adequate for their requirements.
Brochures
Elm Tree Road, Oulton Broad, LowestoftBrochureElm Tree Road, Oulton Broad, Lowestoft
NEAREST STATIONS
Distances are straight line measurements from the centre of the postcode- Oulton Broad South Station0.9 miles
- Oulton Broad North Station1.4 miles
- Lowestoft Station2.0 miles



Notes
Disclaimer - Property reference 33999963. The information displayed about this property comprises a property advertisement. Rightmove.co.uk makes no warranty as to the accuracy or completeness of the advertisement or any linked or associated information, and Rightmove has no control over the content. This property advertisement does not constitute property particulars. The information is provided and maintained by Hardimans Estate Agents, Lowestoft. Please contact the selling agent or developer directly to obtain any information which may be available under the terms of The Energy Performance of Buildings (Certificates and Inspections) (England and Wales) Regulations 2007 or the Home Report if in relation to a residential property in Scotland.
Map data ©OpenStreetMap contributors.





