Abbeydawn Rise, Cholesbury Road, HP23
- PROPERTY TYPE
Plot
- BEDROOMS
4
- BATHROOMS
3
- SIZE
2,650 sq ft
246 sq m
Key features
- Final plot remaining!
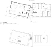
- Plot Size: 1945 m² / 20936 sq ft
- Max House GIA: 247 m² / 2650 sq ft
- Fully Serviced Plot, inc access road
- Planning Permission already secured, ready to build
- Design and Build your own Home
Description
Plot One at Abbeydawn Rise is now the final remaining plot in this exceptionally limited development of just two serviced plots. Set within a peaceful and private countryside setting, this rare opportunity will not be repeated. The plot includes utilities to the boundary and approved planning for a distinctive four-bedroom home with generous garden space, a large terrace, and three private parking bays. Buyers have the freedom to customise the approved plans to suit, including the interior layout and build materials.
Custom Build Process
This exclusive development provides the chance to work closely with experienced design and build professionals to create a home tailored to your lifestyle, design preferences, and budget. From concept through to completion, support is available at every stage to ensure a smooth and rewarding self-build journey.
Mortgages
Abbeydawn Rise is supported by BuildStore Mortgage Services, the UK's leading self-build and custom-build mortgage provider. Our team can connect you with a specialist advisor to explore the best financing solutions for your project.
Location
Located on Cholesbury Road in Wigginton, Abbeydawn Rise sits in a tranquil rural setting just outside the historic market town of Tring. Residents enjoy the benefits of countryside living while remaining close to amenities, schools, and transport links. Tring station offers direct rail services to London Euston in under 40 minutes, while the surrounding Chiltern Hills provide endless opportunities for outdoor recreation.
This boutique development has been thoughtfully designed to harmonise with its natural surroundings, featuring mature trees, generous plot sizes, and a layout that ensures privacy, space, and scenic views.
Community and Surroundings
With only two plots available from the outset - and one now reserved - this is your last chance to secure a place at Abbeydawn Rise. The development offers a rare combination of privacy, exclusivity, and the freedom to design a home that reflects your vision and values.
Investment Potential
A custom home at Abbeydawn Rise offers significant long-term value. With Stamp Duty Land Tax applicable only to the plot purchase, buyers can achieve considerable savings and enjoy the added equity of a bespoke home built to a high specification.
Viewings and Enquiries
This is the final opportunity to build your home at Abbeydawn Rise - once it's gone, it's gone. Don't miss out. Contact our sales team today to book your private site visit.
Brochures
Sales BrochureAbbeydawn Rise, Cholesbury Road, HP23
NEAREST STATIONS
Distances are straight line measurements from the centre of the postcode- Tring Station2.6 miles
- Berkhamsted Station3.3 miles
- Chesham Station4.3 miles
Notes
Disclaimer - Property reference Plot1ADR. The information displayed about this property comprises a property advertisement. Rightmove.co.uk makes no warranty as to the accuracy or completeness of the advertisement or any linked or associated information, and Rightmove has no control over the content. This property advertisement does not constitute property particulars. The information is provided and maintained by Custom Build Homes, Covering Nationwide. Please contact the selling agent or developer directly to obtain any information which may be available under the terms of The Energy Performance of Buildings (Certificates and Inspections) (England and Wales) Regulations 2007 or the Home Report if in relation to a residential property in Scotland.
Map data ©OpenStreetMap contributors.





