Skip to content

Leigh Commerce Park, Meadowcroft Way, Wigan, WN7 3XZ

From
£1,430 pcm
£17,160 pa

£15.00 per sq ft

Business rates & charges may apply

Taylor Weaver Limited, England
SIZE AVAILABLE

1,144-2,258 sq ft

106-210 sq m

SECTOR

Light industrial facility to lease

Lease details

Lease available date:
Ask agent

Key features

  • TO LET
  • New Modern Industrial / Business Units
  • 1,144 sq. ft. - 2,251 sq. ft.
  • Superb location next to the East Lancashire Road (A580)
  • Established business / trade location on edge of Leigh town centre

Description

Location

Leigh Commerce Business Park is situated two miles from Leigh town centre and next to the East Lancashire Road (A580). The A580 offers direct access to the M6 and M60 motorways and is located 10 miles from Manchester and 18 miles from Liverpool.

Surrounding occupiers in the immediate vicinity include Screwfix, Enterprise Rent a Car, Better Bathrooms and other well established businesses.

Description

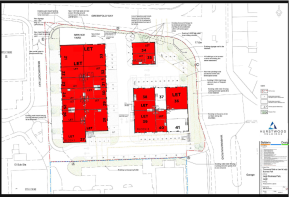
Leigh Commerce Business Park comprises of three separate blocks of high quality industrial/business units.

The units will feature insulated steel clad walls under an insulated mono pitched roof and solid concrete floor. The units will be fully DDA compliant, incorporating toilet and kitchen facilities.

Each unit will have a roller shutter door and separate personnel door.

The units will also benefit from designated car parking spaces and further details are available on request.

Accommodation Text

The following units are available :
Unit Size Rent pa(+VAT)
25 1,144 sq. ft. £17,160 p.a.
37 1,144 sq.ft £17,160 p.a.
38 2,258 Sq.ft £28,750 p.a.

Services

All mains services will be available, including 3 phase power

Lease Terms

The units are available to let on full repairing and insuring terms for a minimum period of 3 years.

Legal Costs

Each party to be responsible for their own legal costs

Viewing Detail

Strictly through agents
Taylor Weaver
(James Taylor)

Brochures

Leigh Commerce Park, Meadowcroft Way, Wigan, WN7 3XZ

NEAREST STATIONS

Distances are straight line measurements from the centre of the postcode
  • Atherton Station3.3 miles
  • Hag Fold Station3.5 miles
  • Daisy Hill Station3.9 miles

About Taylor Weaver Limited, England

Unit 17, Trident Park, Trident Way, BB1 3NU

On the 1st October 1999 Alex Taylor and Neil Weaver formed a new partnership called Taylor Weaver dealing with all types of commercial property matters throughout Lancashire. The business was incorporated in 2002.

Now established as one of the leading firms of commercial property surveyors in Lancashire, Taylor Weaver offer expert, cost effective property advice for a variety of clients who have recognised the excellent level of service offered by Taylor Weaver. In 2015 a new office was opened in Chorley to give complete coverage across Lancashire and Greater Manchester.

Taylor Weaver are panel valuers for a number of major banks and pension trustees, including Handelsbanken, Yorkshire Bank, James Hay Pension Fund, Mattioli Woods and AJ Bell Trustees Ltd.

Notes

These notes are private, only you can see them.

Disclaimer - Property reference 1121LH. The information displayed about this property comprises a property advertisement. Rightmove.co.uk makes no warranty as to the accuracy or completeness of the advertisement or any linked or associated information, and Rightmove has no control over the content. This property advertisement does not constitute property particulars. The information is provided and maintained by Taylor Weaver Limited, England. Please contact the selling agent or developer directly to obtain any information which may be available under the terms of The Energy Performance of Buildings (Certificates and Inspections) (England and Wales) Regulations 2007 or the Home Report if in relation to a residential property in Scotland.

Map data ©OpenStreetMap contributors.