
Hurlingham Road, London, SW6

- PROPERTY TYPE
Detached
- BEDROOMS
8
- BATHROOMS
9
- SIZE
17,232 sq ft
1,601 sq m
- TENUREDescribes how you own a property. There are different types of tenure - freehold, leasehold, and commonhold.Read more about tenure in our glossary page.
Freehold
Key features
- One of the finest homes in south-west London
- Located in the heart of Parsons Green
- Approximately 0.2 miles from Parsons Green tube
- Set behind private gates
- Fantastic 114ft south-facing landscaped garden
- Swimming pool, jacuzzi and gym
- Underground parking for 10 cars
- EPC Rating = D
Description
Description
Nestled in the heart of Parsons Green and overlooking the verdant expanse of Hurlingham Park, this distinguished detached mansion stands as one of the finest homes in South West London. Set behind private gates and surrounded by a beautifully landscaped 114-foot garden, the property offers an extraordinary combination of luxury, privacy, and timeless elegance in one of Fulham’s most desirable locations.
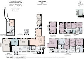
This remarkable residence embodies the very essence of refined living, seamlessly blending grandeur with everyday functionality. Spanning three expansive floors, the main house offers six generously proportioned bedrooms, five luxurious bathrooms, two bespoke dressing rooms, and four elegant reception rooms—all with views across the lush private gardens.
Designed with both family life and entertaining in mind, the home is complemented by a separate building that includes guest quarters, a self-contained two-bedroom staff apartment, and a state-of-the-art leisure complex. Facilities include an indoor swimming pool, gym, jacuzzi, steam room, and dedicated changing area—creating a true private spa experience.
Listed as a "building of merit" and presented in immaculate condition, the home also benefits from secure underground parking for up to ten vehicles, accessible via electric gates and a private driveway. A cutting-edge security system ensures complete peace of mind.
This is more than just a home—it is a rare and prestigious sanctuary offering unparalleled luxury in one of London’s most exclusive neighbourhoods.
Location
The property is in a prime position on the corner of Hurlingham Road and Broomhouse Lane with the world-famous Hurlingham Club at the end of the street. The upper floor provide views across the green open space and tennis courts of Hurlingham Park.
Parsons Green tube is 0.2 miles from the property and the 22 bus runs along New Kings Road towards Chelsea and the West End (5 miles).
Please note that all distances are approximate.
The area is well-known for its wide selection of nursery, primary and secondary schools including Pippa Pop-Ins, Thomas's Fulham and Kensington Prep.
Square Footage: 17,232 sq ft
Brochures
Web DetailsParticulars- COUNCIL TAXA payment made to your local authority in order to pay for local services like schools, libraries, and refuse collection. The amount you pay depends on the value of the property.Read more about council Tax in our glossary page.
- Band: H
- PARKINGDetails of how and where vehicles can be parked, and any associated costs.Read more about parking in our glossary page.
- Yes
- GARDENA property has access to an outdoor space, which could be private or shared.
- Yes
- ACCESSIBILITYHow a property has been adapted to meet the needs of vulnerable or disabled individuals.Read more about accessibility in our glossary page.
- Ask agent
Hurlingham Road, London, SW6
Add an important place to see how long it'd take to get there from our property listings.
__mins driving to your place
Get an instant, personalised result:
- Show sellers you’re serious
- Secure viewings faster with agents
- No impact on your credit score
Your mortgage
Notes
Staying secure when looking for property
Ensure you're up to date with our latest advice on how to avoid fraud or scams when looking for property online.
Visit our security centre to find out moreDisclaimer - Property reference FUS250061. The information displayed about this property comprises a property advertisement. Rightmove.co.uk makes no warranty as to the accuracy or completeness of the advertisement or any linked or associated information, and Rightmove has no control over the content. This property advertisement does not constitute property particulars. The information is provided and maintained by Savills, Fulham. Please contact the selling agent or developer directly to obtain any information which may be available under the terms of The Energy Performance of Buildings (Certificates and Inspections) (England and Wales) Regulations 2007 or the Home Report if in relation to a residential property in Scotland.
*This is the average speed from the provider with the fastest broadband package available at this postcode. The average speed displayed is based on the download speeds of at least 50% of customers at peak time (8pm to 10pm). Fibre/cable services at the postcode are subject to availability and may differ between properties within a postcode. Speeds can be affected by a range of technical and environmental factors. The speed at the property may be lower than that listed above. You can check the estimated speed and confirm availability to a property prior to purchasing on the broadband provider's website. Providers may increase charges. The information is provided and maintained by Decision Technologies Limited. **This is indicative only and based on a 2-person household with multiple devices and simultaneous usage. Broadband performance is affected by multiple factors including number of occupants and devices, simultaneous usage, router range etc. For more information speak to your broadband provider.
Map data ©OpenStreetMap contributors.






