
Norwich Road, Barham, Ipswich, Suffolk, IP6

- PROPERTY TYPE
Detached Bungalow
- BEDROOMS
4
- BATHROOMS
2
- SIZE
Ask agent
- TENUREDescribes how you own a property. There are different types of tenure - freehold, leasehold, and commonhold.Read more about tenure in our glossary page.
Freehold
Key features
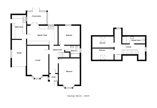
- 15' RECEPTION HALL
- 18' SITTING ROOM WITH FEATURE FIREPLACE
- 17' NEWLY FITTED KITCHEN & LARGE SEPARATE UTILITY ROOM
- CONSERVATORY
- TWO GROUND FLOOR DOUBLE BEDROOM & NEWLY FITTED FAMILY BATHROOM
- SPACIOUS LANDING WITH STUDY AREA
- TWO FIRST FLOOR DOUBLE BEDROOMS & SPACIOUS SHOWER ROOM
- PARKING FOR AT LEAST 15 CARS
- SECLUDED REAR GARDEN
- FURTHER ENCLOSED GARDEN WITH POTENTIAL FOR DEVELOPMENT / BUILDING PLOT (STP)
Description
This superb, deceptively spacious property has been the subject of an extensive renovation and remodelling program, now presented in "as new" condition. Larger than it first appears, offering flexible living accommodation with four double bedrooms, two bathrooms/shower room, impressive contemporary kitchen, large utility and conservatory leading to the garden. A particular feature of the property is the outside space with extensive parking area, rear garden and extra parcel of land with vehicular access close by, offering enormous potential for building, space for independent annex or home office complex. Internal viewing is essential to appreciate the size and quality of the accommodation on offer.
ENTRANCE PORCH:
PVC double glazed entrance door, decorative tiled floor.
RECEPTION HALL:
15' 8" x 5' 2" (4.78m x 1.57m) PVC double glazed entrance door, staircase to the first floor, Karndean herringbone style wood effect flooring, contemporary radiator, mains smoke alarm.
SITTING ROOM:
18' 7" x 12' 5" (5.66m x 3.78m) Wood strip effect flooring, central chimney breast with decorative wooden surround, granite back and heart inset with electric flame effect fire, tv point, bespoke built-in bookcase, generous PVC double glazed bay window to the front aspect.
KITCHEN:
17' 7" x 10' 9" (5.36m x 3.28m) Newly fitted kitchen with an excellent range of base and wall mounted units having contemporary high gloss doors and drawer fronts, marble effect worktops inset with one and a half bowl sink unit with mixer tap, wide pan drawers, inset black glass ceramic hob with black glass back and contemporary extractor fan connected over, space for American style fridge/freezer, eye level stainless steel and glass double oven, inset spotlights, Karndean herringbone wood effect flooring, contemporary radiator, door leads to the utility room, PVC double glazed window overlooking the rear garden, PVC double glazed French doors opening to the conservatory.
UTILITY ROOM:
13' 6" x 8' 7" (4.11m x 2.62m) Fitted with an extensive range of contemporary style base storage units, wood effect worktop inset with ceramic one and a half bowl sink unit with mixer tap, plumbing and space for washing machine and tumble dryer, wood strip effect flooring, inset spotlights, personal door to the garage, PVC double glazed window to the side aspect, PVC double glazed door to the garden.
CONSERVATORY:
8' 5" x 7' 9" (2.57m x 2.36m) Good quality PVC double glazed construction with solid roof, tile effect flooring, French doors opening to the garden.
BEDROOM 1: (GROUND FLOOR)
17' 5" x 12' 0" (5.31m x 3.66m) Radiator, decorative wall panelling, space for wardrobes, large PVC double glazed bay window to the front aspect.
BEDROOM 2: (GROUND FLOOR)
12' 2" x 11' 8" (3.71m x 3.56m) Radiator, wood strip effect flooring, space for wardrobes, generous PVC double glazed window overlooking the rear garden.
FAMILY BATHROOM:
Newly fitted suite comprises panel bath with mixer tap, built-in vanity unit with storage cupboards, inset wash hand basin with mono mixer tap and low level wc with concealed cistern, chrome towel radiator, tiled splash backs, PVC double glazed window to the side aspect.
SPACIOUS FIRST FLOOR LANDING:
17' 5" x 10' 4" (5.31m x 3.15m) At the longest points. Decorative contemporary balustrading with wooden top, built-in full height linen cupboard with double doors housing the gas fired boiler, built-in full height wardrobe with sliding mirrored doors, mains smoke alarm, access to the insulated loft space, dormer window incorporating a study area, PVC double glazed window to the side aspect.
BEDROOM 3:
12' 3" x 6' 4" (3.73m x 1.93m) Radiator, Velux roof window to the rear aspect.
BEDROOM 4:
12' 4" x 6' 4" (3.76m x 1.93m) Radiator, Velux roof window to the front aspect.
FIRST FLOOR SHOWER ROOM:
Newly fitted suite comprises low level wc, large double shower enclosure with pivot glazed screen and independent vanity unit with inset wash hand basin, mono mixer tap and storage cupboards below, tiled splash backs, generous chrome towel radiator, spotlights, extractor fan, decorative tile effect flooring.
OUTSIDE:
To the front there is a low level fenced boundary. Gravel drive provides extensive parking for up to 15 cars, enormous potential for motor home, vans or commercial vehicles. Direct access to the single garage 14'9" x 8' power and light connected, personal door to the house. Immediately to the rear of the house there is a newly constructed raised deck leading to the lawn with fenced boundaries, timber garden store. To the further end of the garden secure gated access leads to an additional, enclosed parcel of land offering huge potential for a variety of uses. The generously sized plot of land offers a unique chance for prospective buyers to explore the possibility of incorporating the land into the existing formal garden or creating a bespoke residential dwelling (STPP), other creative development opportunities could include the construction of annex accommodation, home office/studio or ancillary building, all of which are subject to the necessary planning consents.
POSTCODE: IP6 0DJ
ENERGY RATING: C - 76
VIEWING:
By arrangement with the agents, Hamilton Smith, , or email us You can also visit our web site
- COUNCIL TAXA payment made to your local authority in order to pay for local services like schools, libraries, and refuse collection. The amount you pay depends on the value of the property.Read more about council Tax in our glossary page.
- Ask agent
- PARKINGDetails of how and where vehicles can be parked, and any associated costs.Read more about parking in our glossary page.
- Off street
- GARDENA property has access to an outdoor space, which could be private or shared.
- Rear garden
- ACCESSIBILITYHow a property has been adapted to meet the needs of vulnerable or disabled individuals.Read more about accessibility in our glossary page.
- Ask agent
Norwich Road, Barham, Ipswich, Suffolk, IP6
Add an important place to see how long it'd take to get there from our property listings.
__mins driving to your place
Get an instant, personalised result:
- Show sellers you’re serious
- Secure viewings faster with agents
- No impact on your credit score
Your mortgage
Notes
Staying secure when looking for property
Ensure you're up to date with our latest advice on how to avoid fraud or scams when looking for property online.
Visit our security centre to find out moreDisclaimer - Property reference 4219b. The information displayed about this property comprises a property advertisement. Rightmove.co.uk makes no warranty as to the accuracy or completeness of the advertisement or any linked or associated information, and Rightmove has no control over the content. This property advertisement does not constitute property particulars. The information is provided and maintained by Hamilton Smith, Claydon. Please contact the selling agent or developer directly to obtain any information which may be available under the terms of The Energy Performance of Buildings (Certificates and Inspections) (England and Wales) Regulations 2007 or the Home Report if in relation to a residential property in Scotland.
*This is the average speed from the provider with the fastest broadband package available at this postcode. The average speed displayed is based on the download speeds of at least 50% of customers at peak time (8pm to 10pm). Fibre/cable services at the postcode are subject to availability and may differ between properties within a postcode. Speeds can be affected by a range of technical and environmental factors. The speed at the property may be lower than that listed above. You can check the estimated speed and confirm availability to a property prior to purchasing on the broadband provider's website. Providers may increase charges. The information is provided and maintained by Decision Technologies Limited. **This is indicative only and based on a 2-person household with multiple devices and simultaneous usage. Broadband performance is affected by multiple factors including number of occupants and devices, simultaneous usage, router range etc. For more information speak to your broadband provider.
Map data ©OpenStreetMap contributors.








