Palace Cinema, 159-164 High Street, Gorleston, Great Yarmouth, NR31 6RG
- SIZE
Ask agent
- SECTOR
Leisure facility for sale
Key features
- 403 capacity seating
- Art Deco style building
- Onsite customer parking
- Highly visible High Street location
- Diverse revenue streams
- Potential for expansion
- Christie & Co Ref: 1490011
Description
The Palace Cinema in Gorleston originally opened in the late 1930’s and had a history of previously operating as a Bingo club. Like the Felixstowe site, this property retains its Art Deco style and features a steel frame structure with brickwork cavity walling to support the flat roof. A large, pitched roof covers the main entrance, which has undergone refurbishments over the years. The cinema is conveniently located on High Street, Gorleston, and is supported by several nearby parking areas within walking distance
LocationGorleston-on-Sea, located 2 miles (3 km) south of Great Yarmouth, is a seaside town in Norfolk with a population of around 19,600. It is known for its expansive sandy beach, promenade, and vibrant local community. The Palace Cinema Gorleston, positioned on High Street, has benefitted from local investment, including coastal protection projects and town centre improvements, supporting its growing tourism and leisure sector.
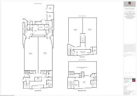
Ground Floor• Entrance lobby with concession stand/sales counter
• Two cinema screens
• Male and female toilets
• Two projection rooms
• Non-operational commercial kitchen, currently used as storage
• Former bingo seating area, currently used as storage
• Boiler room
• Ancillary storage
First Floor
• Foyer with a bar servery
• Two cinema screens
• Male and female toilets
Second Floor
• Projection room
• Staff room
The Palace Cinema in Gorleston comprises four screens with a total seating capacity of 403. Upon entering
through the main entrance, visitors are welcomed by a foyer featuring a box office and a kiosk offering
popcorn, confectionery, and hot and cold drinks.
The four auditoria are situated on the ground floor, just off the foyer, with ladies’ and gentlemen’s toilets
located on the first floor. A disabled toilet and stockroom are available on the ground floor.
The business operates seven days a week, hosting multiple performances daily, including matinee and
evening screenings.
Turnover for financial year ending 31/12/2024 was £284,680.
Further trading information available upon request.
7-days a week 10:30am – 11pm
Ticket Prices
Adult (16 & over)
• Luxury: £8.95
• Ultra: £9.95
• Elite: £10.95
Child (15 & under) & Senior (60 & over)
• Luxury: £6.95
• Ultra: £8.95
• Elite: £9.95
Brochures
Palace Cinema, 159-164 High Street, Gorleston, Great Yarmouth, NR31 6RG
NEAREST STATIONS
Distances are straight line measurements from the centre of the postcode- Great Yarmouth Station2.2 miles
- Berney Arms Station4.2 miles
- Haddiscoe Station5.7 miles
Notes
Disclaimer - Property reference 1490011-fh. The information displayed about this property comprises a property advertisement. Rightmove.co.uk makes no warranty as to the accuracy or completeness of the advertisement or any linked or associated information, and Rightmove has no control over the content. This property advertisement does not constitute property particulars. The information is provided and maintained by Christie & Co, Retail. Please contact the selling agent or developer directly to obtain any information which may be available under the terms of The Energy Performance of Buildings (Certificates and Inspections) (England and Wales) Regulations 2007 or the Home Report if in relation to a residential property in Scotland.
Map data ©OpenStreetMap contributors.





