
1 bedroom retirement property for sale
Hadham Road, Bishop's Stortford, Hertfordshire, CM23

- PROPERTY TYPE
Retirement Property
- BEDROOMS
1
- SIZE
Ask agent
Key features
- A rare opportunity to purchase one of the largest & spacious one bedroom retirement flat in immaculate order in this private residential cul de sac
- Town Centre Location
- For the over 55's
- within walking distance of shops, restaurants, banks and bus routes plus main line rail
- Sizeable open plan living / dining room with tremendous views over the town centre & church
- Fitted kitchen
- Large double bedroom & shower room
- Residence parking
- No onward chain
- Ready to move straight in
Description
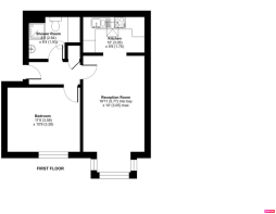
Entrance Hall
Light and bright hallway with wall mounted entry phone. Built in cupboard and walk through to the living room. Loft access which has been boarded for easy storage
Open Plan Living / Dining Room 18' 11" x 10' 0" (5.77m x 3.05m)
The living room is a lovely airy room nice size and shape with bay fronted window to the front aspect with fantastic views towards the church and town centre. The living room has plenty of space for dining table and chairs. Feature brick archway leading through to the fitted kitchen and door to one side leading to the hallway to the bedroom.
Kitchen 10' 0" x 5' 9" (3.05m x 1.75m)
The kitchen is a lovely size and fitted with a range of wall and base units with an array of storage options. Complimentary work surface over. Inset stainless steel sink with mixer taps and drainer. Integrated Induction hob with cooker hood over. Built in oven with storage cupboards over and under. Spaces for the fridge freezer and space for washing dishwasher.
Hallway to Master bedroom 6' 8" x 5' 3" (2.03m x 1.61m)
From the living room step through to the inner hallway with large double storage cupboard and doors to the bathroom & bedroom.
Double Bedroom 11' 9" x 10' 9" (3.58m x 3.28m)
A large spacious double bedroom with window to the front aspect. The bedroom has plenty of space for bedroom furniture.
Bathroom
Well-presented bathroom consisting of: Large double walk-in shower with wall mounted shower over. Low-level wc, Vanity style wash hand basin with storage cupboards under. Tiled walls and tiled flooring.
Agents note
The apartment is presented lovely, its light bright and spacious, ideally situated and a fantastic opportunity if your 60 years or over to live in the Northwest Side of town and in the town centre.
Service charge £130pcm
Ground rent Zero
- COUNCIL TAXA payment made to your local authority in order to pay for local services like schools, libraries, and refuse collection. The amount you pay depends on the value of the property.Read more about council Tax in our glossary page.
- Ask agent
- PARKINGDetails of how and where vehicles can be parked, and any associated costs.Read more about parking in our glossary page.
- Yes
- GARDENA property has access to an outdoor space, which could be private or shared.
- Ask agent
- ACCESSIBILITYHow a property has been adapted to meet the needs of vulnerable or disabled individuals.Read more about accessibility in our glossary page.
- Ask agent
Hadham Road, Bishop's Stortford, Hertfordshire, CM23
Add an important place to see how long it'd take to get there from our property listings.
__mins driving to your place
Notes
Staying secure when looking for property
Ensure you're up to date with our latest advice on how to avoid fraud or scams when looking for property online.
Visit our security centre to find out moreDisclaimer - Property reference Parklane2B3256. The information displayed about this property comprises a property advertisement. Rightmove.co.uk makes no warranty as to the accuracy or completeness of the advertisement or any linked or associated information, and Rightmove has no control over the content. This property advertisement does not constitute property particulars. The information is provided and maintained by Park Lane Property Agents, Bishops Stortford. Please contact the selling agent or developer directly to obtain any information which may be available under the terms of The Energy Performance of Buildings (Certificates and Inspections) (England and Wales) Regulations 2007 or the Home Report if in relation to a residential property in Scotland.
*This is the average speed from the provider with the fastest broadband package available at this postcode. The average speed displayed is based on the download speeds of at least 50% of customers at peak time (8pm to 10pm). Fibre/cable services at the postcode are subject to availability and may differ between properties within a postcode. Speeds can be affected by a range of technical and environmental factors. The speed at the property may be lower than that listed above. You can check the estimated speed and confirm availability to a property prior to purchasing on the broadband provider's website. Providers may increase charges. The information is provided and maintained by Decision Technologies Limited. **This is indicative only and based on a 2-person household with multiple devices and simultaneous usage. Broadband performance is affected by multiple factors including number of occupants and devices, simultaneous usage, router range etc. For more information speak to your broadband provider.
Map data ©OpenStreetMap contributors.





