
Marbury Street, Warrington, WA4

- PROPERTY TYPE
Terraced
- BEDROOMS
2
- BATHROOMS
1
- SIZE
1,263 sq ft
117 sq m
Key features
- Mid Terraced Property
- Two Bedrooms
- Two Reception Rooms
- Utility
- Sought After Location
- Perfect for First Time Buyers
Description
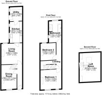
A beautifully presented mid terraced property located in the sought after area of Latchford. With two bedrooms, two reception rooms, a utility and accessible loft space, this is the ideal home for first time buyers and those looking to downsize.
As you enter this charming home, you're immediately greeted by a welcoming traditional hallway, complete with original-style flooring that sets a warm and characterful tone for the rest of the property. This initial impression hints at the blend of classic features and modern touches that continue throughout the home. Just off the hallway lies a generously proportioned reception room, a flexible space that can effortlessly function as a cosy lounge, formal dining room, or practical home office. With its spacious layout, there’s more than enough room for a desk, comfortable seating, bookshelves, and other personal furnishings, making it an inviting and adaptable area that suits a variety of lifestyles. Moving further into the property, you arrive at the main lounge, a relaxed and comfortable space ideal for unwinding or entertaining. This room easily accommodates large sofas, a coffee table, and other pieces to create a welcoming atmosphere that feels like the heart of the home. At the rear of the property, the kitchen has been thoughtfully designed with both style and function in mind. Featuring clean, contemporary finishes, it includes a charming Belfast sink and offers ample cupboard and worktop space. Adjacent to the kitchen is the utility room, a highly functional space that keeps household tasks conveniently tucked away. It houses essential white goods including the washing machine and tumble dryer and ensures the rest of the home remains clutter-free. A patio door in this area allows natural light to pour in and offers direct access to the private side yard.
Heading upstairs, the primary bedroom is particularly spacious and well-lit, with two large windows allowing for plenty of natural light. This room can easily accommodate a king-sized bed, freestanding wardrobes, and additional furniture, while still feeling airy and open. The second bedroom is also a well-sized double and offers a range of possibilities. Whether you envision it as a child’s bedroom, an elegant dressing room, or a dedicated workspace, this room can be tailored to suit your individual needs. At the end of the landing, you’ll find the family bathroom, beautifully designed for both comfort and practicality. This four-piece suite includes a separate bath and shower cubicle, along with a washbasin and WC, all set within a stylish and modern interior. Two windows allow for natural light and ventilation, enhancing the fresh and relaxing feel of the space. Completing the upper level is a converted loft room, accessible via its own staircase. This versatile space can be used as additional storage, a creative studio, a reading nook, or even a second home office, providing valuable extra room in a thoughtful and efficient layout.
Outside, the home benefits from a private, low maintenance side yard to the rear. The property also offers on-street parking, ensuring convenience for residents and guests alike.
Whether you're a first-time buyer looking to get on the property ladder or someone seeking a smart investment opportunity, this home offers a fantastic blend of space, practicality, and potential. With strong kerb appeal and a convenient location, early viewing is highly recommended. Contact us today to arrange your viewing.
EPC Rating: E
- COUNCIL TAXA payment made to your local authority in order to pay for local services like schools, libraries, and refuse collection. The amount you pay depends on the value of the property.Read more about council Tax in our glossary page.
- Band: A
- PARKINGDetails of how and where vehicles can be parked, and any associated costs.Read more about parking in our glossary page.
- Ask agent
- GARDENA property has access to an outdoor space, which could be private or shared.
- Private garden
- ACCESSIBILITYHow a property has been adapted to meet the needs of vulnerable or disabled individuals.Read more about accessibility in our glossary page.
- Ask agent
Energy performance certificate - ask agent
Marbury Street, Warrington, WA4
Add an important place to see how long it'd take to get there from our property listings.
__mins driving to your place
Get an instant, personalised result:
- Show sellers you’re serious
- Secure viewings faster with agents
- No impact on your credit score

Your mortgage
Notes
Staying secure when looking for property
Ensure you're up to date with our latest advice on how to avoid fraud or scams when looking for property online.
Visit our security centre to find out moreDisclaimer - Property reference 1725d9e2-68e1-47d8-8734-a497f05d7e40. The information displayed about this property comprises a property advertisement. Rightmove.co.uk makes no warranty as to the accuracy or completeness of the advertisement or any linked or associated information, and Rightmove has no control over the content. This property advertisement does not constitute property particulars. The information is provided and maintained by Ashtons Estate Agency, Stockton Heath. Please contact the selling agent or developer directly to obtain any information which may be available under the terms of The Energy Performance of Buildings (Certificates and Inspections) (England and Wales) Regulations 2007 or the Home Report if in relation to a residential property in Scotland.
*This is the average speed from the provider with the fastest broadband package available at this postcode. The average speed displayed is based on the download speeds of at least 50% of customers at peak time (8pm to 10pm). Fibre/cable services at the postcode are subject to availability and may differ between properties within a postcode. Speeds can be affected by a range of technical and environmental factors. The speed at the property may be lower than that listed above. You can check the estimated speed and confirm availability to a property prior to purchasing on the broadband provider's website. Providers may increase charges. The information is provided and maintained by Decision Technologies Limited. **This is indicative only and based on a 2-person household with multiple devices and simultaneous usage. Broadband performance is affected by multiple factors including number of occupants and devices, simultaneous usage, router range etc. For more information speak to your broadband provider.
Map data ©OpenStreetMap contributors.





