
Ship Wharf, Colchester

- PROPERTY TYPE
Ground Flat
- BEDROOMS
2
- BATHROOMS
2
- SIZE
Ask agent
Key features
- Modern Riverside Apartment
- Ground Floor
- Two Double Bedrooms
- En-Suite Shower Room
- Bathroom
- Secure Underground Allocated Parking for Two Cars
- Short Walk to Hythe Train Station
- Close to Essex University
Description
Accessed via its OWN PRIVATE FRONT DOOR, the apartment opens into a generous entrance hallway leading to two well-proportioned double bedrooms, one with en-suite. The heart of the home is a bright and spacious open-plan living area which seamlessly combines lounge, dining, and kitchen areas. The modern fitted kitchen comes complete with integrated appliances including oven and hob, fridge/freezer, washer/dryer and slimline dishwasher. The living space is dual aspect with double sliding doors opening out onto a private area for relaxing or entertaining.
Additional features include a sleek family bathroom, electric heating (not tested by Elms Price and Co), double glazed windows, and secure underground allocated parking for two cars.
MODERN RIVERSIDE APARTMENT
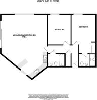
GROUND FLOOR
MASTER BEDROOM WITH EN-SUITE 14' 9" x 10' 8" (4.5m x 3.25m)
EN-SUITE SHOWER ROOM 7' 2" x 5' 7" (2.18m x 1.7m)
BEDROOM TWO 12' 9" x 9' 8" (3.89m x 2.95m)
OPEN PLAN LIVING 29' 0" x 22' 5" (8.84m x 6.83m)
BATHROOM 7' 2" x 5' 8" (2.18m x 1.73m)
ELECTRIC HEATING (not tested by Elms Price and Co)
DOUBLE GLAZING
SECURE UNDERGROUND ALLOCATED PARKING for two cars.
RIVER VIEWS
SHORT WALK TO HYTHE TRAIN STATION
CLOSE TO ESSEX UNVERSITY
ADDITIONAL INFORMATION Council tax band : C.
Local authority : Colchester City Council.
Energy rating : D.
Lease : Commenced 2012 (112 years remaining, expires 2137)
Current Ground Rent Per Annum : £350.00 (three hundred and fifty pounds)
Current Maintenance Charge Per Annum : £1,900.00 (one thousand, nine hundred pounds)
Leasehold Properties : Ground rents and service/maintenance charges may fluctuate. Precise figures and lease duration must be obtained from the sellers legal representative.
- COUNCIL TAXA payment made to your local authority in order to pay for local services like schools, libraries, and refuse collection. The amount you pay depends on the value of the property.Read more about council Tax in our glossary page.
- Band: C
- PARKINGDetails of how and where vehicles can be parked, and any associated costs.Read more about parking in our glossary page.
- Allocated
- GARDENA property has access to an outdoor space, which could be private or shared.
- Ask agent
- ACCESSIBILITYHow a property has been adapted to meet the needs of vulnerable or disabled individuals.Read more about accessibility in our glossary page.
- Ask agent
Energy performance certificate - ask agent
Ship Wharf, Colchester
Add an important place to see how long it'd take to get there from our property listings.
__mins driving to your place
Get an instant, personalised result:
- Show sellers you’re serious
- Secure viewings faster with agents
- No impact on your credit score
Your mortgage
Notes
Staying secure when looking for property
Ensure you're up to date with our latest advice on how to avoid fraud or scams when looking for property online.
Visit our security centre to find out moreDisclaimer - Property reference 101610007009. The information displayed about this property comprises a property advertisement. Rightmove.co.uk makes no warranty as to the accuracy or completeness of the advertisement or any linked or associated information, and Rightmove has no control over the content. This property advertisement does not constitute property particulars. The information is provided and maintained by Elms Price & Co, Colchester. Please contact the selling agent or developer directly to obtain any information which may be available under the terms of The Energy Performance of Buildings (Certificates and Inspections) (England and Wales) Regulations 2007 or the Home Report if in relation to a residential property in Scotland.
*This is the average speed from the provider with the fastest broadband package available at this postcode. The average speed displayed is based on the download speeds of at least 50% of customers at peak time (8pm to 10pm). Fibre/cable services at the postcode are subject to availability and may differ between properties within a postcode. Speeds can be affected by a range of technical and environmental factors. The speed at the property may be lower than that listed above. You can check the estimated speed and confirm availability to a property prior to purchasing on the broadband provider's website. Providers may increase charges. The information is provided and maintained by Decision Technologies Limited. **This is indicative only and based on a 2-person household with multiple devices and simultaneous usage. Broadband performance is affected by multiple factors including number of occupants and devices, simultaneous usage, router range etc. For more information speak to your broadband provider.
Map data ©OpenStreetMap contributors.





