3 bedroom detached bungalow for sale
Three Gables, Elm Street, Skelmanthorpe, HD8

- PROPERTY TYPE
Detached Bungalow
- BEDROOMS
3
- BATHROOMS
1
- SIZE
915 sq ft
85 sq m
- TENUREDescribes how you own a property. There are different types of tenure - freehold, leasehold, and commonhold.Read more about tenure in our glossary page.
Freehold
Key features
- 3 DOUBLE BEDROOMS
- NO CHAIN AND READY TO GO
- NEW CARPETS THROUGHOUT
- INTEGRAL GARAGE
- MODERN KITCHEN AND BATHROOM
- DRIVEWAY
- QUIET AND PEACEFUL LOCATION
- FLAGGED PATIO AREA
- WALKING DISTANCE TO SKELMANTHORPE VILLAGE CENTRE
- NEUTRAL FINISH THROUGHOUT
Description
DETACHED BUNGALOW WITH NO CHAIN AND READY GO! CHECK OUT THIS MODERN 3 BEDROOM DETACHED BUNGALOW LOCATED ON A PRIVATE AND QUIET LANE IN SKELMANTHORPE VILLAGE! THIS PROPERTY REVEALS 3 DOUBLE BEDROOMS, HOUSE BATHROOM, DINING ROOM, MODERN KITCHEN, DRIVEWAY AND INTEGRAL GARAGE. GET IN TOUCH WITH EARNSHAW ESTATES TO BOOK A VIEWING TODAY!
This bungalow is located in the heart of Skelmanthorpe village. Highly recommended schools such as Skelmanthorpe first school, Scissett middle school and Shelley College are close by, making this home perfect for the growing family! The centre of Skelmanthorpe with shops and local amenities is only a short walk away, meaning that the location of this property is ideal.
The property offers a neutral finish and benefits from new carpets and double glazed windows throughout. It is ready for a buyer to come in and add their own touch to it! With no chain, vacant and ready to go!
As you enter the property through the front door, you are greeted to the newly refurbished kitchen. The modern kitchen is well fitted with a range of wall and base mounted units with complimentary work surfaces and comes with all the mod cons needed for everyday living. Integrated appliances include an electric oven and induction hob. There is convenient space for a washing machine/tumble dryer.
The kitchen leads through to the dining room. The dining room provides a great space for a dining table and chairs, providing somewhere for the family to sit during mealtime. This room leads through to the hallway which provides access to the rear garden. The hallway provides a large storage cupboard.
The spacious living room overlooks the front of the property, revealing large windows and allows plenty of natural light into the room. An electric fire provides a modern and contemporary feel. With ample room for suitable furniture, this room is the perfect place to relax and unwind.
The bungalow offers 3 double bedrooms, each having ample space for suitable bedroom furniture. Each bedroom provides a neutral finish and is ready for a buyer to add their own touch!
The modern house bathroom consists of a wash hand basin, built-in bath and shower cubicle. There is a separate toilet consisting of a W.C.
Outside the quality continues with a driveway and integral garage, providing off-street parking. The integral garage sits underneath the property and offers additional storage or secure parking.
The front garden reveals a raised flagged patio area, which catches the sun for most of the day. To the side of the property, there is ample space for a garden shed/greenhouse. Here you can access the rear of the property.
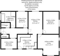
ALL ROOM MEASUREMENTS AVAILABLE ON FLOOR PLAN
Get in touch with Earnshaw Estates to book a viewing today!
DISCLAIMER
1. PROPERTY MISDESCRIPTION ACT 1967 & 1991: Although we endeavour to make the details and measurements of each property as accurate as possible, please take these as an estimate only, made from the information supplied by the vendor, and our visual inspection of the property.
2. MEASUREMENTS are taken electronically using a device and we cannot fully guarantee their accuracy, so we advise these are used as an estimate, and that you take your own measurements if upon viewing the property to ensure these are to your personal satisfaction for any carpets, furniture or other household furnishings.
3. QUALITY TESTING: No services, apparatus, equipment, fixtures, fittings or any other things have been tested by Earnshaw Estates and we are unable to verify that these are in working order or fit for purpose. We therefore advise buyers to obtain verification from their own tradesperson, surveyor, solicitor or otherwise qualified professional who is able to provide such assurances. Earnshaw Estates are also unable to verify the quality, or condition of any property, land, buildings or additional features, so we advise that buyers obtain their own surveys and speak to a professional regarding this. We will not accept any responsibility or liability in connection with this.
4. TENURE: Any reference to the tenure of a property is based on information supplied by the seller. Earnshaw Estates has not had reviewed the title documents and has not checked the tenure, boundaries, rights or restrictions with the Land Registry, so we advise buyers and any other persons who seek to rely on such information to obtain verification from their own solicitor or legal professional. Earnshaw Estates accept no responsibility for any errors or omissions in this regard.
5. MONEY LAUNDERING: We may ask for further details regarding proof of your identification and proof of funds upon receiving your offer on a property. Please provide these in order to reduce any delay.
- COUNCIL TAXA payment made to your local authority in order to pay for local services like schools, libraries, and refuse collection. The amount you pay depends on the value of the property.Read more about council Tax in our glossary page.
- Band: D
- PARKINGDetails of how and where vehicles can be parked, and any associated costs.Read more about parking in our glossary page.
- Garage
- GARDENA property has access to an outdoor space, which could be private or shared.
- Private garden,Patio
- ACCESSIBILITYHow a property has been adapted to meet the needs of vulnerable or disabled individuals.Read more about accessibility in our glossary page.
- Ask agent
Three Gables, Elm Street, Skelmanthorpe, HD8
Add an important place to see how long it'd take to get there from our property listings.
__mins driving to your place
Get an instant, personalised result:
- Show sellers you’re serious
- Secure viewings faster with agents
- No impact on your credit score
Your mortgage
Notes
Staying secure when looking for property
Ensure you're up to date with our latest advice on how to avoid fraud or scams when looking for property online.
Visit our security centre to find out moreDisclaimer - Property reference S1369743. The information displayed about this property comprises a property advertisement. Rightmove.co.uk makes no warranty as to the accuracy or completeness of the advertisement or any linked or associated information, and Rightmove has no control over the content. This property advertisement does not constitute property particulars. The information is provided and maintained by Earnshaw Estates, Kirkburton. Please contact the selling agent or developer directly to obtain any information which may be available under the terms of The Energy Performance of Buildings (Certificates and Inspections) (England and Wales) Regulations 2007 or the Home Report if in relation to a residential property in Scotland.
*This is the average speed from the provider with the fastest broadband package available at this postcode. The average speed displayed is based on the download speeds of at least 50% of customers at peak time (8pm to 10pm). Fibre/cable services at the postcode are subject to availability and may differ between properties within a postcode. Speeds can be affected by a range of technical and environmental factors. The speed at the property may be lower than that listed above. You can check the estimated speed and confirm availability to a property prior to purchasing on the broadband provider's website. Providers may increase charges. The information is provided and maintained by Decision Technologies Limited. **This is indicative only and based on a 2-person household with multiple devices and simultaneous usage. Broadband performance is affected by multiple factors including number of occupants and devices, simultaneous usage, router range etc. For more information speak to your broadband provider.
Map data ©OpenStreetMap contributors.





