Healthcare facility for sale
Smiths Lane, Windsor, Berkshire, SL4
- SIZE AVAILABLE
1,433 sq ft
133 sq m
- SECTOR
Healthcare facility for sale
- USE CLASSUse class orders: Class E
E
Key features
- Freehold
- Former health centre
- Adaptable space
- Potential for various uses
- Approx 1,433 sqft
- 5 parking spaces
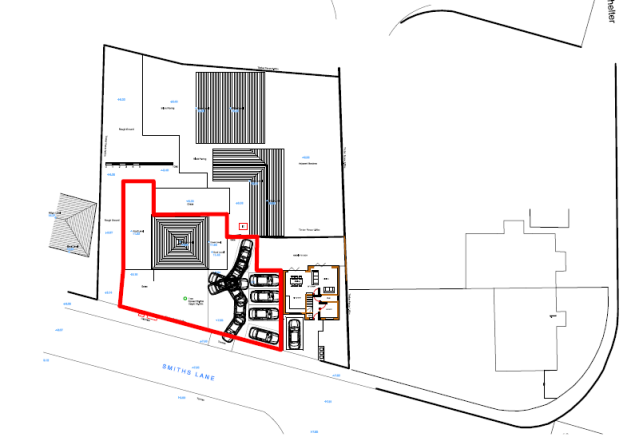
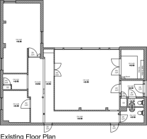
Description
The property comprises a detached building offering a gross internal area of around 1,400 sq ft, alongside on-site parking for 5 vehicles and potential to add additional spaces.
Please note that the property is elected for VAT.
Located in Dedworth-a well-established suburban area on the western edge of Royal Windsor-the site benefits from a prominent position within a thriving local community.
This adaptable space offers strong potential for a variety of commercial uses, such as medical and therapeutic clinic, veterinary practice, professional services (such as legal, financial or consulting firms) community or education centre, wellness or fitness studio, or a café concept serving the surrounding residential area, subject to any necessary consents.
Ideal for owner-occupiers or investors seeking a well-positioned and flexible property in a sought-after location. The local neighbourhood benefits from a strong sense of community and excellent local facilities, including well-regarded schools, supermarkets, cafes, and open green spaces-making it especially attractive to families, professionals, and commuters alike.
Energy Performance Certificates
EPC 1Smiths Lane, Windsor, Berkshire, SL4
NEAREST STATIONS
Distances are straight line measurements from the centre of the postcode- Windsor & Eton Central Station1.5 miles
- Windsor & Eton Riverside Station1.7 miles
- Datchet Station2.8 miles
Notes
Disclaimer - Property reference DedworthClinic. The information displayed about this property comprises a property advertisement. Rightmove.co.uk makes no warranty as to the accuracy or completeness of the advertisement or any linked or associated information, and Rightmove has no control over the content. This property advertisement does not constitute property particulars. The information is provided and maintained by OASIS LAND AND NEW HOMES LIMITED, Oasis Estate Agents. Please contact the selling agent or developer directly to obtain any information which may be available under the terms of The Energy Performance of Buildings (Certificates and Inspections) (England and Wales) Regulations 2007 or the Home Report if in relation to a residential property in Scotland.
Map data ©OpenStreetMap contributors.





