Maon Hotel, 26 Upper Rock Gardens, Brighton BN2 1QE
- SIZE
Ask agent
- SECTOR
Hotel for sale
Key features
- 9 bedroom hotel
- Self contained 1 bedroom flat
- Further 2-3 bedroom owners' accommodation
- Garage
- Possibly suitable for reconfiguration for Airbnb / holiday lets
- For Sale: £1,200,000
Description
The hotel is located on Upper Rock Gardens in the Kemp Town area of the city, to the East of the main city centre.
This is one of the main areas of hotels and guest houses with numerous restaurants, bars and shops nearby, and is close to the American Express offices, Brighton College and The Royal Sussex County Hospital.
The property has traded for many years as a hotel with owners accommodation. Given its historic and ongoing use, we think the property is subject to C1 (hotel/guesthouse) Use Class. Interested parties should make their own planning enquiries and satisfy themselves in this regard.
The property has Grade II listed railings and sits with the East Cliff Conservation Area.
Interested parties should make their own planning enquiries and satisfy themselves in this regard.
We understand that the property is not elected for VAT.
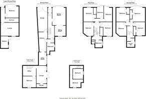
The property comprises of a mid-terrace oval bay fronted, 4 storey town house with a garage and count yard to the rear.
The property has a different configuration to most other nearby mid terrace town house hotels with a former coach house in the rear adding further accommodation and currently arranged as a 2-3 bedroom owners' flat.
The hotel has 9 letting bedrooms and an additional self-contained flat on the lower ground floor.
Rateable Value 2023: £30,000
We understand the property has an EPC rating of D - 80
Each party to bear their own legal costs incurred.
Due to Government legislation, we are legally obliged to undertake Anti-Money Laundering checks on prospective Purchasers / Tenants where a transaction has a capital value of €15,000 (Euro) or more or a rental value of €10,000 (Euro) per calendar month or more. This includes checking proof and source of funds. Please note that we need to obtain the relevant information and record this on file before a transaction can be contracted.
9 bedroom hotel
Self contained 1 bedroom flat
Further 2-3 bedroom owners' accommodation
Garage
Possibly suitable for reconfiguration for Airbnb / holiday lets
For Sale: £1,200,000
Brochures
Maon Hotel, 26 Upper Rock Gardens, Brighton BN2 1QE
NEAREST STATIONS
Distances are straight line measurements from the centre of the postcode- Brighton Station0.7 miles
- London Road (Brighton) Station1.1 miles
- Moulsecoomb Station1.8 miles
Notes
Disclaimer - Property reference 7125FH. The information displayed about this property comprises a property advertisement. Rightmove.co.uk makes no warranty as to the accuracy or completeness of the advertisement or any linked or associated information, and Rightmove has no control over the content. This property advertisement does not constitute property particulars. The information is provided and maintained by Flude Property Consultants, Brighton. Please contact the selling agent or developer directly to obtain any information which may be available under the terms of The Energy Performance of Buildings (Certificates and Inspections) (England and Wales) Regulations 2007 or the Home Report if in relation to a residential property in Scotland.
Map data ©OpenStreetMap contributors.






