Willow Drive, Stannington, Morpeth, Northumberland, NE61 6FQ

- PROPERTY TYPE
Detached Bungalow
- BEDROOMS
3
- BATHROOMS
2
- SIZE
Ask agent
- TENUREDescribes how you own a property. There are different types of tenure - freehold, leasehold, and commonhold.Read more about tenure in our glossary page.
Freehold
Key features
- Three Double Bedrooms
- Brilliant Southerly Rear Aspect
- Impressive Open-Plan Living
- En-Suite To Master Bedroom
- Utility Room & Garage
Description
All three bedrooms are double in size, the master has its own en-suite shower room and fitted wardrobes. The principal shower room is fitted with a stylish suite, and there is also a useful utility room which provides direct access into the attached garage.
The gardens are attractive and have a lovely range of flowers and plants, in addition there are multiple paved patio seating areas. The garage can be accessed from garden.
Willow Drive is part of an exclusive development within the highly sought after village of Stannington. The development is surrounded by fields and woodlands and provides good access onto the A1 major road link. Neighbouring towns such as Bedlington, Cramlington and Morpeth are all within easy reach.
A wonderful home - viewing comes highly recommended in order to appreciate the size, standard and situation - please call the local sales team to arrange a viewing.
Council Tax Band: E
Tenure: Freehold
Entrance
An entrance door opens into a lobby. Glazed door opens into the welcoming and spacious hallway. The hall weaves around and provides access into all rooms. Central heating radiator.
Image Of Hall
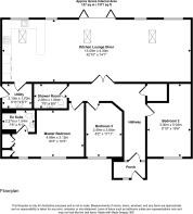
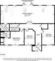
Open-Plan Living, Dining Room and Kitchen
4.3m x 13.1m
This is a truly impressive space!
Located to the rear of the property with an uninterrupted Southerly aspect - there is a wonderful degree of privacy. Vaulted ceilings, effective skylights, bi-fold doors and numerous rear aspect windows allow the Southerly natural light to flood into the room - there is such a lovely feeling of light and space, it all flows and combines brilliantly.
The living area has a feature media wall and modern electric fire. The dining area offers ample floor space to house a good-sized table. The kitchen area is fitted with a modern range of units with integrated appliances: dishwasher, wine cooler, fridge/freezer, oven, hob and extractor hood.
There are ample central heating radiators and attractive floor coverings.
Access into the utility room.
Image One
Image Two
Image Three
Image Four
Utility Room
2.1m x 1.7m
With onward access into the attached garage. Plumbing for washing machine and dryer, useful work surfaces and sink unit.
Principal Shower Room
2.3m x 1.7m
Integral.
A modern suite comprising: walk-in shower cubicle, low level WC and wash hand basin. The wall and floor coverings are tasteful and complement the suite nicely.
Main Bedroom
3.1m x 5m
A generous sized double room situated to the front with two double glazed windows, built-in wardrobes, dressing area, central heating radiator and access into the en-suite shower room.
Another Main Bedroom Image
Additional Main Bedroom Image
En-Suite Shower Room
A tasteful suite comprising: walk-in shower cubicle, low level and pedestal wash hand basin. Wall and floor coverings to match, heated towel rail and extractor hood.
Bedroom Two
3m x 5m
Another decent sized double room
Bedroom Two Image
Another Bedroom Two Image
Bedroom Three
2.5m x 3.6m
A double room also situated to the front with a double glazed window and central heating radiator.
Outside
There are planted borders with pretty flowers to the front of the building. A driveway provides off-road parking and leads to an attached single garage. The rear garden boasts a Southerly aspect and is not directly overlooked from beyond. The garden is attractive with an array of plants and flowers and there are multiple paved patio seating areas. There is direct access into the garage and a useful outside tap.
Another Outside Image
Another Outside Photo
Brochures
Brochure- COUNCIL TAXA payment made to your local authority in order to pay for local services like schools, libraries, and refuse collection. The amount you pay depends on the value of the property.Read more about council Tax in our glossary page.
- Band: E
- PARKINGDetails of how and where vehicles can be parked, and any associated costs.Read more about parking in our glossary page.
- Yes
- GARDENA property has access to an outdoor space, which could be private or shared.
- Yes
- ACCESSIBILITYHow a property has been adapted to meet the needs of vulnerable or disabled individuals.Read more about accessibility in our glossary page.
- Ask agent
Willow Drive, Stannington, Morpeth, Northumberland, NE61 6FQ
Add an important place to see how long it'd take to get there from our property listings.
__mins driving to your place
Get an instant, personalised result:
- Show sellers you’re serious
- Secure viewings faster with agents
- No impact on your credit score
Your mortgage
Notes
Staying secure when looking for property
Ensure you're up to date with our latest advice on how to avoid fraud or scams when looking for property online.
Visit our security centre to find out moreDisclaimer - Property reference 487587. The information displayed about this property comprises a property advertisement. Rightmove.co.uk makes no warranty as to the accuracy or completeness of the advertisement or any linked or associated information, and Rightmove has no control over the content. This property advertisement does not constitute property particulars. The information is provided and maintained by Pattinson Estate Agents, Morpeth. Please contact the selling agent or developer directly to obtain any information which may be available under the terms of The Energy Performance of Buildings (Certificates and Inspections) (England and Wales) Regulations 2007 or the Home Report if in relation to a residential property in Scotland.
*This is the average speed from the provider with the fastest broadband package available at this postcode. The average speed displayed is based on the download speeds of at least 50% of customers at peak time (8pm to 10pm). Fibre/cable services at the postcode are subject to availability and may differ between properties within a postcode. Speeds can be affected by a range of technical and environmental factors. The speed at the property may be lower than that listed above. You can check the estimated speed and confirm availability to a property prior to purchasing on the broadband provider's website. Providers may increase charges. The information is provided and maintained by Decision Technologies Limited. **This is indicative only and based on a 2-person household with multiple devices and simultaneous usage. Broadband performance is affected by multiple factors including number of occupants and devices, simultaneous usage, router range etc. For more information speak to your broadband provider.
Map data ©OpenStreetMap contributors.





