Stafford Road, Wolverhampton, West Midlands, WV10
- SIZE AVAILABLE
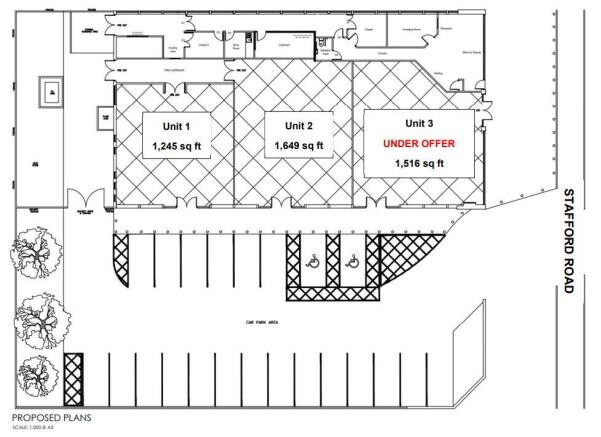
1,245 sq ft
116 sq m
- SECTOR
High street retail property to lease
- USE CLASSUse class orders: Class E
E
Lease details
- Lease available date:
- Ask agent
- Lease type:
- Long term
- Furnish type:
- Unfurnished
Description
The site will have 22 shared parking spaces with 6 potentially being reserved for EV Charging.
Brochures
Stafford Road, Wolverhampton, West Midlands, WV10
NEAREST STATIONS
Distances are straight line measurements from the centre of the postcode- Wolverhampton Station2.2 miles
- Bilbrook Station2.4 miles
- Wolverhampton St George's Tram Stop2.4 miles
Notes
Disclaimer - Property reference Wolverhampton492StaffordRoadOxleyUnit127. The information displayed about this property comprises a property advertisement. Rightmove.co.uk makes no warranty as to the accuracy or completeness of the advertisement or any linked or associated information, and Rightmove has no control over the content. This property advertisement does not constitute property particulars. The information is provided and maintained by Johnson Fellows, Birmingham. Please contact the selling agent or developer directly to obtain any information which may be available under the terms of The Energy Performance of Buildings (Certificates and Inspections) (England and Wales) Regulations 2007 or the Home Report if in relation to a residential property in Scotland.
Map data ©OpenStreetMap contributors.



