4 bedroom detached house for sale
Moor Lane, Cleadon, Sunderland

- PROPERTY TYPE
Detached
- BEDROOMS
4
- BATHROOMS
2
- SIZE
Ask agent
- TENUREDescribes how you own a property. There are different types of tenure - freehold, leasehold, and commonhold.Read more about tenure in our glossary page.
Freehold
Key features
- Detached House
- 4 Bedrooms
- Living Room
- Kitchen / Breakfast Room
- Garage & Gardens
- Bathroom & En Suite
- Viewing Advised
- EPC Rating: C
Description
Planning was passed for the erection of a single storey rear extension, loft conversion (including four new dormer windows), raise ridge height, minor front porch alteration, demolition of existing masonry boundary wall (front and side boundaries) and erection of a new natural stone boundary wall with metal infill railing panels, alteration of external wall finishes (main house) and replacement of existing UPVC windows with timber frame windows throughout.
Planning Permission - Planning was passed for the erection of a single storey rear extension, loft conversion (including four new dormer windows), raise ridge height, minor front porch alteration, demolition of existing masonry boundary wall (front and side boundaries) and erection of a new natural stone boundary wall with metal infill railing panels, alteration of external wall finishes (main house) and replacement of existing UPVC windows with timber frame windows throughout.
The South tyneside planning reference is ST/0989/22/HFUL
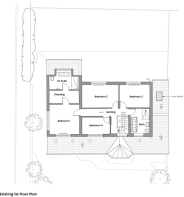
Entrance Hall - Laminate floor, radiator, cupboard under stairs, stairs to first floor
Living Room - 3.33 x 8.23 (10'11" x 27'0" ) - The Living Room has a doubled glazed window to the front elevation, laminate floor, radiator, recessed spot lighting bi-folding doors to the rear garden
Reception Room - 4.42 x 3.66 (14'6" x 12'0") - A versatile room that could be used for a variety of uses, Double glazed window, radiator
Dining Area - 4.70 x 2.74 (15'5" x 8'11") - Laminate floor, radiator, bi-folding doors to the rear garden
Kitchen/Breakfast Room - 4.15 x 4.46 (13'7" x 14'7") - The Kitchen has a comprehensive range of floor and wall units, electric hob, electric oven, microwave oven/grill, integrated fridge freezer, stainless steel sink with mixer tap, double glazed window,
There is a central breakfasting island with breastfed bar, radiator, door leading to the front
Utility Area - Wall mounted gas central heating boiler, Velux style window
Wc - White suite comprising wall hung wash hand basin with mixer tap, wall hung low level wc, chrome towel radiator, recessed spot lighting, double glazed window
First Floor - Landing, double glazed window, radiator, recessed spot lighting, loft access
Bedroom One - 3.60 x 3.65 (11'9" x 11'11") - Front facing, double glazed window, radiator
Dressing Area - 3.67 x 1.56 (12'0" x 5'1") - His and hers dressing areas
En Suite - Modern white suite comprising wall hung low level wc, wall hung wash hand basin with mixer tap wet room style walks in shower with Rainfall style showerhead and an additional shower attachment, double glazed window, towel radiator
Bedroom Two - 3.83 x 2.80 (12'6" x 9'2") - Rear facing, double glazed window, radiator
Bedroom Three - 4.46 x 2.79 (14'7" x 9'1") - Rear facing, double glazed window radiator
Bedroom Four - 3.40 x 2.06 (11'1" x 6'9") - Front facing, double glazed window, radiator, laminate floor
Bathroom - White suite comprising wall, hung wash hand basing with mixer tap set on a vanity unit, bath with mixer tap, walk-in shower, double glazed window, recessed spot lighting, tiled walls and floor
External - Externally there is a front garden with a block paved driveway leading to the house and garage whilst to the a rear garden with a paved patio area and lawn
Garage - Integral garage accessed via electric garage door
Tenure - We are advised by the Vendors that the property is Freehold. Any prospective purchaser should clarify this with their Solicitor
Brochures
Moor Lane, Cleadon, SunderlandMaterial Information- COUNCIL TAXA payment made to your local authority in order to pay for local services like schools, libraries, and refuse collection. The amount you pay depends on the value of the property.Read more about council Tax in our glossary page.
- Band: G
- PARKINGDetails of how and where vehicles can be parked, and any associated costs.Read more about parking in our glossary page.
- Yes
- GARDENA property has access to an outdoor space, which could be private or shared.
- Yes
- ACCESSIBILITYHow a property has been adapted to meet the needs of vulnerable or disabled individuals.Read more about accessibility in our glossary page.
- Ask agent
Moor Lane, Cleadon, Sunderland
Add an important place to see how long it'd take to get there from our property listings.
__mins driving to your place
Get an instant, personalised result:
- Show sellers you’re serious
- Secure viewings faster with agents
- No impact on your credit score
Your mortgage
Notes
Staying secure when looking for property
Ensure you're up to date with our latest advice on how to avoid fraud or scams when looking for property online.
Visit our security centre to find out moreDisclaimer - Property reference 34011159. The information displayed about this property comprises a property advertisement. Rightmove.co.uk makes no warranty as to the accuracy or completeness of the advertisement or any linked or associated information, and Rightmove has no control over the content. This property advertisement does not constitute property particulars. The information is provided and maintained by Michael Hodgson, Sunderland. Please contact the selling agent or developer directly to obtain any information which may be available under the terms of The Energy Performance of Buildings (Certificates and Inspections) (England and Wales) Regulations 2007 or the Home Report if in relation to a residential property in Scotland.
*This is the average speed from the provider with the fastest broadband package available at this postcode. The average speed displayed is based on the download speeds of at least 50% of customers at peak time (8pm to 10pm). Fibre/cable services at the postcode are subject to availability and may differ between properties within a postcode. Speeds can be affected by a range of technical and environmental factors. The speed at the property may be lower than that listed above. You can check the estimated speed and confirm availability to a property prior to purchasing on the broadband provider's website. Providers may increase charges. The information is provided and maintained by Decision Technologies Limited. **This is indicative only and based on a 2-person household with multiple devices and simultaneous usage. Broadband performance is affected by multiple factors including number of occupants and devices, simultaneous usage, router range etc. For more information speak to your broadband provider.
Map data ©OpenStreetMap contributors.








