
Bower Hill Drive, Stourport-On-Severn

- PROPERTY TYPE
Detached Bungalow
- BEDROOMS
5
- BATHROOMS
2
- SIZE
1,733 sq ft
161 sq m
- TENUREDescribes how you own a property. There are different types of tenure - freehold, leasehold, and commonhold.Read more about tenure in our glossary page.
Freehold
Key features
- A substantial four/five bedroom detached family dormer bungalow
- Highly desirable cul-de-sac address in Stourport-on-Severn
- Off-road parking (space for a caravan or motorhome)
- Garage
- Approximate 1/4 an acre plot, with immense further potential
- Backing directly onto fields/farmland
- Versatile and impressively spacious layout that is attractively appointed throughout
- Large beautifully laid out gardens
- Virtual Tour available
Description
The Accommodation:
The uPVC double glazed sliding front door opens to an entrance porch, with a uPVC double glazed windows and double glazed composite front door to the reception hallway.
The reception hall includes stairs to the first floor accommodation, column style radiator, wood effect laminate flooring and doors to the lounge, dining room, bedrooms one, two and five/study, and the bathroom.
The lounge forms an excellent sized reception room, including a uPVC double glazed window to the front elevation, ABX log burning stove with a feature slate hearth, radiator and an archway to the dining room.
The dining room has a radiator, wood effect laminate flooring, uPVC double glazed French doors to a large rear conservatory and a doorway to the kitchen.
The kitchen is attractively appointed with a range of cream units, with wood effect worksurfaces, incorporating a white ceramic one and a half bowl sink/drainer unit with a mixer tap, integrated electric hob with a canopy cooker hood above, integrated Hoover electric double oven with a grill, base cupboards/drawers, wall mounted cupboards, part tiling to the walls, tiled floor, uPVC double glazed window to the conservatory and an archway to a separate utility room.
The utility room is also fitted with a range of cream units and provides a stainless-steel sink/drainer unit with a mixer tap, plumbing for a washing machine and dishwasher, space for a tumble dryer and fridge freezer, cupboard storage space, column style radiator, tiled floor, uPVC double glazed windows to the rear and side elevations and uPVC double glazed French doors to the conservatory.
The conservatory is a lovely addition to the property and forms a large space, including
Bedroom one forms an excellent double room, including a uPVC double glazed window to the side elevation (enjoying views to the garden), fitted wardrobes and a column style radiator.
Bedroom two is a versatile double room with a uPVC double glazed window to the front elevation and a radiator.
Bedroom five/study is a versatile single room, having a uPVC double glazed window to the side elevation (with views to the garden) and a radiator.
The bathroom is well appointed with a white suite, including a bath with an electric shower over and full height tiling to the surrounds, wash basin with a built-in vanity cupboard below, push-button flush WC, radiator, tiled floor and a uPVC double glazed window to the rear elevation.
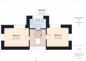
The first floor comprises a landing with a uPVC double glazed window to the front elevation, radiator and doors to bedrooms three and four, and a shower room.
Bedroom three is a double room with uPVC double glazed windows to the rear and side elevations, radiator and useful eaves storage.
Bedroom four is also a double room with uPVC double glazed windows to the rear and side elevations, double wardrobe, radiator and useful eaves storage.
The shower room is well appointed with a white suite, including a curved shower cubicle with a fitted mixer shower and full height tiling to the walls, pedestal wash basin, push-button flush WC, radiator and a uPVC double glazed window to the rear elevation.
Outside:
The property is set back beyond a good sized frontage, including a lawn garden with a period style feature lamppost, and a "CretePrint" style driveway, with off-road parking for at least two cars and access to the garage.
The garage is entered via a remote-controlled roller-shutter door and includes lighting, power points, the wall mounted Ideal combination central heating boiler (fitted 2022) and a uPVC double glazed window to the side elevation.
** Agent's Note**
Planning permission was previously approved to create a double garage.
From the driveway gates lead through to additional parking to the side of the property, which includes a cold water tap and could be used to house a caravan or motorhome.
Gated side access is available on both sides of the property to the fantastic sized rear garden. The garden is attractively laid out to include a rear paved patio with a water fountain and access to the conservatory, large lawn with a timber shed and a corner pebbled patio and a period style feature lamppost. The garden enjoys a wonderful backdrop on a field with established trees.
Viewing is essential for this beautifully presented detached property and its generous layout and wonderful setting to be fully appreciated. Early appointments are recommended to avoid disappointment.
Location:
Based in the Wyre Forest District of North Worcestershire, Stourport-on-Severn has been a popular day-trip and holiday destination for over a century. The River Severn and the historic canal basins combine to provide a perfect backdrop for all sorts of family activities, with the atmosphere of a true maritime holiday resort. The town itself offers a wide variety of independent shops and large supermarkets, together with pubs, cafes and restaurants, and family attractions, such as the riverside meadows and playing fields, boat trips, amusement arcades and a traditional fairground.
The larger town of Kidderminster is just over 4 miles away, whilst Birmingham and Worcester are approximately 22 and 12 miles away respectively. The M5 can be accessed easily from either Junctions 5 or 6 and the mainline train station in Kidderminster has direct services to Birmingham, Worcester and London.
Schooling:
Stourport-on-Severn provides highly regarded schooling for children of all ages.
Tenure:
Freehold
Services:
All mains services are connected
Local Authority:
Wyre Forest District Council
Council Tax:
Band E
Brochures
Bower Hill Drive, Stourport-On-SevernBrochure- COUNCIL TAXA payment made to your local authority in order to pay for local services like schools, libraries, and refuse collection. The amount you pay depends on the value of the property.Read more about council Tax in our glossary page.
- Band: E
- PARKINGDetails of how and where vehicles can be parked, and any associated costs.Read more about parking in our glossary page.
- Yes
- GARDENA property has access to an outdoor space, which could be private or shared.
- Yes
- ACCESSIBILITYHow a property has been adapted to meet the needs of vulnerable or disabled individuals.Read more about accessibility in our glossary page.
- Ask agent
Bower Hill Drive, Stourport-On-Severn
Add an important place to see how long it'd take to get there from our property listings.
__mins driving to your place
Get an instant, personalised result:
- Show sellers you’re serious
- Secure viewings faster with agents
- No impact on your credit score
Your mortgage
Notes
Staying secure when looking for property
Ensure you're up to date with our latest advice on how to avoid fraud or scams when looking for property online.
Visit our security centre to find out moreDisclaimer - Property reference 34011171. The information displayed about this property comprises a property advertisement. Rightmove.co.uk makes no warranty as to the accuracy or completeness of the advertisement or any linked or associated information, and Rightmove has no control over the content. This property advertisement does not constitute property particulars. The information is provided and maintained by Eden Midcalf, Bewdley. Please contact the selling agent or developer directly to obtain any information which may be available under the terms of The Energy Performance of Buildings (Certificates and Inspections) (England and Wales) Regulations 2007 or the Home Report if in relation to a residential property in Scotland.
*This is the average speed from the provider with the fastest broadband package available at this postcode. The average speed displayed is based on the download speeds of at least 50% of customers at peak time (8pm to 10pm). Fibre/cable services at the postcode are subject to availability and may differ between properties within a postcode. Speeds can be affected by a range of technical and environmental factors. The speed at the property may be lower than that listed above. You can check the estimated speed and confirm availability to a property prior to purchasing on the broadband provider's website. Providers may increase charges. The information is provided and maintained by Decision Technologies Limited. **This is indicative only and based on a 2-person household with multiple devices and simultaneous usage. Broadband performance is affected by multiple factors including number of occupants and devices, simultaneous usage, router range etc. For more information speak to your broadband provider.
Map data ©OpenStreetMap contributors.







