Gosbrook Road, Caversham, Reading

- PROPERTY TYPE
Terraced
- BEDROOMS
2
- BATHROOMS
2
- SIZE
Ask agent
- TENUREDescribes how you own a property. There are different types of tenure - freehold, leasehold, and commonhold.Read more about tenure in our glossary page.
Freehold
Key features
- Central Caversham
- Mid terrace period house
- Stripped wood flooring and period features
- Two double bedrooms
- Upstairs bathroom and down stairs WC
- Two reception rooms
- Lean to / utility
- Modern kitchen
- EPC rating tbc
- Council tax band C
Description
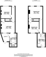
Hallway - A welcoming entrance hall with wooden floor, doors to the living room and dining room and stairs to the first floor.
Living Room - 3.43m x 3.07m (11'3 x 10'1) - A good sized living room with wooden floor, feature fireplace and window to the front of the property.
Dining Room - 4.14m x 3.25m (13'7 x 10'8) - A spacious dining room with door to the kitchen wooden floor, feature fireplace and understairs storage.
Kitchen - 3.02m x 2.16m (9'11 x 7'1) - Kitchen with tiled floor, doors to WC and utility room, built in fridge freezer, oven, hob and extractor and space for dishwasher.
Guest Wc - 2.39m x 0.71m (7'10 x 2'4) - WC with tiled floor, space for washing machine and WC.
Lean To / Utility Area - Utility area with space storage and door to the garden.
Landing - carpeted landing with doors to both bedrooms.
Bedroom One - 4.14m x 3.43m (13'7 x 11'3) - Carpeted double bedroom with dual windows overlooking the front of the property and doors to stairs and corridor leading to the bathroom.
Bedroom Two - 3.30m x 3.20m (10'10 x 10'6) - Carpeted double bedroom with window overlooking the garden, built in cupboard and doors to stairs and corridor to bathroom.
Bathroom - 3.94m x 2.44m (12'11 x 8'0) - Stylish and modern bathroom with independent access from both bedrooms, tiled floor, shower stall, bath, WC, sink with storage, heated towel rail and window to the rear.
Garden - Nice sized and quiet garden, lawn, patio and border areas with gate leading to access alley.
Services - Water. Mains
Drainage. Mains
Electricity. Mains
Heating. Gas
Mobile phone. The vendor is not aware of any specific restricted mobile phone coverage
Broadband. Superfast, obtained from Ofcom
Brochures
Gosbrook Road, Caversham, ReadingBrochure- COUNCIL TAXA payment made to your local authority in order to pay for local services like schools, libraries, and refuse collection. The amount you pay depends on the value of the property.Read more about council Tax in our glossary page.
- Band: C
- PARKINGDetails of how and where vehicles can be parked, and any associated costs.Read more about parking in our glossary page.
- Residents
- GARDENA property has access to an outdoor space, which could be private or shared.
- Yes
- ACCESSIBILITYHow a property has been adapted to meet the needs of vulnerable or disabled individuals.Read more about accessibility in our glossary page.
- Ask agent
Gosbrook Road, Caversham, Reading
Add an important place to see how long it'd take to get there from our property listings.
__mins driving to your place
Get an instant, personalised result:
- Show sellers you’re serious
- Secure viewings faster with agents
- No impact on your credit score
Your mortgage
Notes
Staying secure when looking for property
Ensure you're up to date with our latest advice on how to avoid fraud or scams when looking for property online.
Visit our security centre to find out moreDisclaimer - Property reference 34011709. The information displayed about this property comprises a property advertisement. Rightmove.co.uk makes no warranty as to the accuracy or completeness of the advertisement or any linked or associated information, and Rightmove has no control over the content. This property advertisement does not constitute property particulars. The information is provided and maintained by Nicholas Estate Agents, Caversham. Please contact the selling agent or developer directly to obtain any information which may be available under the terms of The Energy Performance of Buildings (Certificates and Inspections) (England and Wales) Regulations 2007 or the Home Report if in relation to a residential property in Scotland.
*This is the average speed from the provider with the fastest broadband package available at this postcode. The average speed displayed is based on the download speeds of at least 50% of customers at peak time (8pm to 10pm). Fibre/cable services at the postcode are subject to availability and may differ between properties within a postcode. Speeds can be affected by a range of technical and environmental factors. The speed at the property may be lower than that listed above. You can check the estimated speed and confirm availability to a property prior to purchasing on the broadband provider's website. Providers may increase charges. The information is provided and maintained by Decision Technologies Limited. **This is indicative only and based on a 2-person household with multiple devices and simultaneous usage. Broadband performance is affected by multiple factors including number of occupants and devices, simultaneous usage, router range etc. For more information speak to your broadband provider.
Map data ©OpenStreetMap contributors.







