
Grange Ash Close, Flockton, WF4

- PROPERTY TYPE
Detached
- BEDROOMS
3
- BATHROOMS
3
- SIZE
1,001 sq ft
93 sq m
- TENUREDescribes how you own a property. There are different types of tenure - freehold, leasehold, and commonhold.Read more about tenure in our glossary page.
Freehold
Key features
- Driveway & Spacious Garage
- Fully-Enclosed Garden
- 2 EV Charging Points
- Finished To A High Standard Throughout
- Modern Kitchen/Diner
- 3 Bedroom Detached Property
- Close To Local School
- Cul-De-Sac Location
- Alarm System Fitted
- Partially-Boarded Loft With Loft Ladder
Description
Discover this exceptional three-bedroom detached home, thoughtfully and elegantly decorated to a high standard throughout, ready for you to simply move in and start making memories. Perfect for first-time buyers or anyone longing for a smooth, effortless step into modern living, all set within a charming and sought-after area.
EPC Rating: B
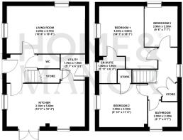
Entrance Hall
A spacious entrance hall welcomes you with white decor and an elegant oak banister, offering access to a downstairs WC, kitchen and living room, as well as stairs leading to the upper floor.
Living Room
3.2m x 5.7m
The spacious living room spans the full depth of the property, offering a bright and airy atmosphere enhanced by large front and side-facing windows that flood the space with natural light. Finished in crisp white decor with a stylish accent wallpapered feature wall, this room perfectly blends comfort and contemporary design.
Kitchen
3.1m x 5.6m
The spacious kitchen-diner features stylish wood-effect flooring and sleek white gloss cupboards, creating a modern and inviting space. It comes fully equipped with a fridge freezer, dishwasher, gas hob and double oven. Flooded with natural light, the room offers ample space for a dining table and chairs. Additional highlights include access to a separate utility room and glass-panelled patio doors that open directly onto the garden.
Utility Room
1.7m x 1.9m
Accessed through the kitchen, the utility room offers space for a washer and dryer, alongside fitted storage units that coordinate seamlessly with the kitchen design. It also features an external door for convenient outdoor access and includes additional under-stairs storage for extra organisation.
Downstairs WC
0.9m x 1.5m
The stylish downstairs WC features wood-effect flooring paired with a chic combination of white and navy walls, adding a touch of luxury to the space. It includes a modern WC and a sleek sink, offering a functional design.
Landing
A spacious landing area features a large frosted window, allowing natural light to filter through while maintaining privacy. The landing also offers convenient access to all rooms, alongside a generous built-in storage cupboard.
Bathroom
2m x 2m
This bright and inviting bathroom features crisp white walls and stylish wood-effect flooring. A full-size bath is set against neutral-toned tiled surrounds, creating a clean and calming aesthetic. Additional touches of comfort include a heated towel rail for added luxury and a frosted window that provides both natural light and privacy.
Bedroom 1
4.3m x 4m
The main bedroom is a generous king-sized room located at the front of the property. Finished in fresh white decor with a large window, it features fitted Venetian blinds for optimal light control and privacy. This serene space also benefits from the convenience of a private en-suite bathroom.
En-Suite
1.8m x 1.9m
The en-suite is stylishly appointed with wood-effect flooring and white walls complemented by neutral-toned tiles. It features a modern walk-in shower with a sleek sliding glass door, combining functionality with a clean, contemporary look.
Bedroom 2
3m x 3.5m
Bedroom two is a well-proportioned double room located at the front of the property. It features crisp white decor with a stylish green accent wall, creating a fresh and modern feel. The room also benefits from access to a spacious built-in storage cupboard, offering practical convenience.
Bedroom 3
2.9m x 2.3m
Bedroom three is a versatile space, ideal as a single bedroom or home office. Finished in white, it benefits from a window that allows natural light to brighten the room, creating a calm and functional environment.
Rear Garden
The east-facing garden is a true outdoor retreat, featuring a stunning artificial turf lawn framed by vibrant, beautifully maintained flower beds. A charming patio area leads up via steps to a spacious secondary patio, perfect for seating and entertaining guests. Practical gates provide easy access around the property, while a conveniently positioned door offers direct entry to the garage.
Front Garden
The property benefits from a grass lawn area to the front, enhancing the property's curb appeal.
Parking - Garage
The spacious garage is equipped with a convenient electric vehicle charging port, combining practicality with modern convenience.
Parking - Driveway
The property benefits from a driveway, providing off-street parking.
- COUNCIL TAXA payment made to your local authority in order to pay for local services like schools, libraries, and refuse collection. The amount you pay depends on the value of the property.Read more about council Tax in our glossary page.
- Band: D
- PARKINGDetails of how and where vehicles can be parked, and any associated costs.Read more about parking in our glossary page.
- Garage,Driveway
- GARDENA property has access to an outdoor space, which could be private or shared.
- Front garden,Rear garden
- ACCESSIBILITYHow a property has been adapted to meet the needs of vulnerable or disabled individuals.Read more about accessibility in our glossary page.
- Ask agent
Energy performance certificate - ask agent
Grange Ash Close, Flockton, WF4
Add an important place to see how long it'd take to get there from our property listings.
__mins driving to your place
Get an instant, personalised result:
- Show sellers you’re serious
- Secure viewings faster with agents
- No impact on your credit score
Your mortgage
Notes
Staying secure when looking for property
Ensure you're up to date with our latest advice on how to avoid fraud or scams when looking for property online.
Visit our security centre to find out moreDisclaimer - Property reference 1e51bb68-2682-4e1f-a3cc-394240cdacb5. The information displayed about this property comprises a property advertisement. Rightmove.co.uk makes no warranty as to the accuracy or completeness of the advertisement or any linked or associated information, and Rightmove has no control over the content. This property advertisement does not constitute property particulars. The information is provided and maintained by Home & Manor, Kirkheaton. Please contact the selling agent or developer directly to obtain any information which may be available under the terms of The Energy Performance of Buildings (Certificates and Inspections) (England and Wales) Regulations 2007 or the Home Report if in relation to a residential property in Scotland.
*This is the average speed from the provider with the fastest broadband package available at this postcode. The average speed displayed is based on the download speeds of at least 50% of customers at peak time (8pm to 10pm). Fibre/cable services at the postcode are subject to availability and may differ between properties within a postcode. Speeds can be affected by a range of technical and environmental factors. The speed at the property may be lower than that listed above. You can check the estimated speed and confirm availability to a property prior to purchasing on the broadband provider's website. Providers may increase charges. The information is provided and maintained by Decision Technologies Limited. **This is indicative only and based on a 2-person household with multiple devices and simultaneous usage. Broadband performance is affected by multiple factors including number of occupants and devices, simultaneous usage, router range etc. For more information speak to your broadband provider.
Map data ©OpenStreetMap contributors.





