
Dartington, Totnes
- PROPERTY TYPE
Land
- SIZE
Ask agent
Key features
- Full planning granted for new home
- Quiet cul-de-sac in Dartington
- Contemporary two-bedroom design
- Eco credentials with solar and air source
- Approved double garage and driveway
- Generous private garden
- Easy access to Totnes and A38
- Freehold
Description
Situation - The popular village of Dartington has a primary school, an excellent post office/village store, the famous Dartington retail centre, a 12th Century inn, church and a vibrant community. The Dartington Hall estate with its many cultural attractions is also within the parish.
The historic town of Totnes is a short walk away, a bustling market town full of interest with a wide range of good local schools, shopping facilities and recreational pursuits. The A38 Devon expressway is approximately 4 miles away, allowing speedy access to the cities of Exeter and Plymouth and the M5 beyond. Main line rail links to London Paddington are located in Totnes.
Description - A rare chance to build a stylish and sustainable home in a peaceful residential setting within walking distance of Dartington’s amenities and beautiful countryside. Full planning permission has been granted by South Hams District Council for the “erection of infill dwelling with associated works, demolition of existing garage & erection of 2no. new garages” under application reference 0024/25/FUL, dated 24 June 2025.
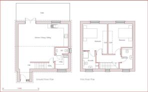
The approved scheme allows for a contemporary detached two-bedroom home with double garage, private driveway, and an extensive landscaping plan that includes wildlife-friendly planting, a wildflower meadow and native trees. To view the full planning documentation, visit click on “View or comment on a planning application,” and search using reference 0024/25/FUL.
The site enjoys a tucked-away position at the end of Greenhayes, a quiet cul-de-sac in the heart of the village, within easy reach of Totnes, the A38 and mainline rail links. The design offers an 88 sqm home with open-plan living space, two bedrooms and two bathrooms, with solar panels, air source heat pump, permeable surfaces and ecological enhancements including bat and bird boxes. A generous garden wraps around the plot, which benefits from mature boundaries, its own entrance, and over 120 sqm of accessible amenity space.
This is a superb self-build opportunity in one of the South Hams’ most desirable and well-connected villages.
Services - We understand that mains services are available in the area, but prospective purchasers should make and rely upon their own enquiries.
The sale includes the plot with full planning permission, a narrow triangle of land running alongside the B2272, the hardstanding in front of the garages and the private road from the highway entrance past Nos. 1 to 6 Greenhayes.
The existing six properties each contribute one-sixth of any maintenance costs for the roadway, which would reasonably become one-seventh once the new dwelling is built.
What3words - ///crawling.obliging.airbag
Brochures
Dartington, TotnesDartington, Totnes
NEAREST STATIONS
Distances are straight line measurements from the centre of the postcode- Totnes Station1.3 miles
- Ivybridge Station9.1 miles
Notes
Disclaimer - Property reference 34009576. The information displayed about this property comprises a property advertisement. Rightmove.co.uk makes no warranty as to the accuracy or completeness of the advertisement or any linked or associated information, and Rightmove has no control over the content. This property advertisement does not constitute property particulars. The information is provided and maintained by Stags, Totnes. Please contact the selling agent or developer directly to obtain any information which may be available under the terms of The Energy Performance of Buildings (Certificates and Inspections) (England and Wales) Regulations 2007 or the Home Report if in relation to a residential property in Scotland.
Map data ©OpenStreetMap contributors.











