3 bedroom semi-detached house for sale
Victoria Avenue, Worcester, WR5

- PROPERTY TYPE
Semi-Detached
- BEDROOMS
3
- BATHROOMS
1
- SIZE
Ask agent
- TENUREDescribes how you own a property. There are different types of tenure - freehold, leasehold, and commonhold.Read more about tenure in our glossary page.
Freehold
Key features
- Three bedroom bay fronted character semi detached property
- Detached garden annexe with multiple uses and electric supply
- Double glazed conservatory overlooking the rear garden
- Lounge with bay window and feature fireplace
- Entrance hall with ornate panelling
- Rear garden with lawn, pond, detached annexe and adjacent woodland area
- Within a 20 minute walk to Worcester City Centre
Description
Introducing an exceptional opportunity to acquire this three-bedroom semi-detached house, brimming with character and presenting a coveted detached garden annexe. Set in a highly sought-after location, within a 20 minute walk of Worcester City Centre.
The property's facade showcases a striking bay-fronted design, lending a touch of elegance to its overall appeal. Step inside to discover a well-appointed lounge, offering a bay window that bathes the room in natural light and a feature fireplace adding a touch of warmth and sophistication. The entrance hall boasts ornate panelling, a nod to the property's rich heritage and attention to detail.
Perfectly appointed at the rear of the property is a double glazed conservatory, providing a tranquil retreat overlooking the colourful rear garden. The garden itself is a haven of serenity, boasting a lawn, a picturesque pond enhancing the natural beauty of the space, and a detached annexe offering versatile accommodation options with the convenience of an electric supply. The annexe having a lounge, kitchen room, bedroom and mezzanine area.
Situated within a 20-minute stroll to Worcester City Centre, residents have easy access to an array of amenities, including shopping, dining, and entertainment options, ensuring a lifestyle of comfort and convenience.
In summary, this three-bedroom semi-detached house represents a rare opportunity to own a home of elegance and versatility, with the added allure of a detached garden annexe for endless possibilities. Imbued with charm and character, and situated in a prime location, this property is a true gem waiting to be discovered and cherished by its next owner.
EPC Rating: E
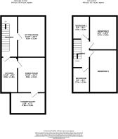
Entrance Hall
Entrance door, radiator, stairs to first floor landing, understairs storage cupboard.
Lounge
Bay window to front aspect, radiator, T.V aerial
Dining Room
French doors to conservatory, radiator, stripped wooden floor
Kitchen
Double glazed window to rear and side, Base and eye level units, worktops, tiled splashbacks.
Conservatory
Double glazed with patio doors to rear garden.
Landing
Double glazed window to side.
Bedroom 1
Double glazed window to rear, radiator
Bedroom 2
Double glazed window to front, radiator
Bedroom
Double glazed window to front, radiator.
Bathroom
Double glazed window to rear, Bath with shower over, wash basin, W.C, Chrome heated towel rail, Part tiled walls.
Detached Garden Annexe
Comprising of a Lounge, Kitchen room, Bedroom/study and mezzanine sleeping area.
Supplied with electric and double glazed windows/doors.
Lounge area 4.71m x 3.99m
Kitchen (Not plumbed) 2.36m x 1.76m
Bedroom 2.36m x 2.94m
Mezzanine area - space to lay double mattress
Garden
Garden to rear offering patio with steps up to lawn, flower beds, pond, access to Detached annexe. Overlooking woodland to rear of garden.
- COUNCIL TAXA payment made to your local authority in order to pay for local services like schools, libraries, and refuse collection. The amount you pay depends on the value of the property.Read more about council Tax in our glossary page.
- Band: B
- PARKINGDetails of how and where vehicles can be parked, and any associated costs.Read more about parking in our glossary page.
- Ask agent
- GARDENA property has access to an outdoor space, which could be private or shared.
- Private garden
- ACCESSIBILITYHow a property has been adapted to meet the needs of vulnerable or disabled individuals.Read more about accessibility in our glossary page.
- Ask agent
Energy performance certificate - ask agent
Victoria Avenue, Worcester, WR5
Add an important place to see how long it'd take to get there from our property listings.
__mins driving to your place
Get an instant, personalised result:
- Show sellers you’re serious
- Secure viewings faster with agents
- No impact on your credit score
Your mortgage
Notes
Staying secure when looking for property
Ensure you're up to date with our latest advice on how to avoid fraud or scams when looking for property online.
Visit our security centre to find out moreDisclaimer - Property reference d38a17b1-db7b-4e56-8932-788a98deef87. The information displayed about this property comprises a property advertisement. Rightmove.co.uk makes no warranty as to the accuracy or completeness of the advertisement or any linked or associated information, and Rightmove has no control over the content. This property advertisement does not constitute property particulars. The information is provided and maintained by Nested, Nationwide. Please contact the selling agent or developer directly to obtain any information which may be available under the terms of The Energy Performance of Buildings (Certificates and Inspections) (England and Wales) Regulations 2007 or the Home Report if in relation to a residential property in Scotland.
*This is the average speed from the provider with the fastest broadband package available at this postcode. The average speed displayed is based on the download speeds of at least 50% of customers at peak time (8pm to 10pm). Fibre/cable services at the postcode are subject to availability and may differ between properties within a postcode. Speeds can be affected by a range of technical and environmental factors. The speed at the property may be lower than that listed above. You can check the estimated speed and confirm availability to a property prior to purchasing on the broadband provider's website. Providers may increase charges. The information is provided and maintained by Decision Technologies Limited. **This is indicative only and based on a 2-person household with multiple devices and simultaneous usage. Broadband performance is affected by multiple factors including number of occupants and devices, simultaneous usage, router range etc. For more information speak to your broadband provider.
Map data ©OpenStreetMap contributors.




