
The Butts, Otford, Sevenoaks, Kent, TN14

- PROPERTY TYPE
Semi-Detached
- BEDROOMS
5
- BATHROOMS
2
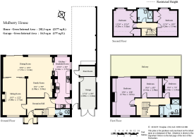
- SIZE
2,354 sq ft
219 sq m
- TENUREDescribes how you own a property. There are different types of tenure - freehold, leasehold, and commonhold.Read more about tenure in our glossary page.
Freehold
Key features
- 5 bedrooms
- 3 reception rooms
- 2 bathrooms
- Balcony
- Garden
- Semi-Detached
Description
Step inside the welcoming reception hall, which provides access to all the main living areas. To the left, the inviting sitting room features a charming fireplace and bifold doors that open into the dining room. The dining area overlooks the beautifully landscaped garden and offers patio doors that lead directly outside. The space seamlessly flows into the family room and is connected by an archway to the kitchen/breakfast room. The kitchen is thoughtfully designed with a comprehensive range of white cabinetry, quartz worktops, integrated appliances, and ample space for breakfast table. Adjacent to the kitchen, a handy utility area and cloakroom complete the ground floor.
Upstairs, the principal bedroom boasts an extensive run of fitted wardrobes and a private balcony overlooking the garden. Two further bedrooms, both with fitted wardrobes, share a stylish, contemporary family bathroom featuring a bath and a walk-in shower. On the next level, two additional bedrooms, each with fitted wardrobes, share a well-appointed shower room with a walk-in shower.
Outside, the south-facing gardens are a true highlight. A spacious terrace provides the perfect setting for al fresco dining, complemented by a seating area sheltered by a pergola adorned with fragrant jasmine. Beautifully planted borders and mature shrubs frame the lawn.
The charming village of Otford which lies within a Conservation Area and Area of Outstanding Natural Beauty has many picturesque period properties along its High Street and around the village pond. Passing through Otford is the Pilgrims' Way providing wonderful walking opportunities.
Otford village has a thriving community and a number of local services and shops, village hall, tennis courts and a 12-acre recreation field used for football and cricket. Sevenoaks is about 3.2 miles distant and offers a wider selection of shops and facilities. Golf is available at Shoreham, Wildernesse and Knole.
The property is an easy walk to Otford Station which has trains to London Charing Cross.Victoria and London Bridge from 30 minutes. Sevenoaks station (about 4 miles) offers alternative rail services to Cannon Street (London Bridge from 22 mins).
The Sevenoaks area is renowned for the excellent schooling. Otford has its own primary school, nursery and two preparatory schools: Russell House and St Michaels. The Sevenoaks area has many well-regarded schools including the renowned Sevenoaks School, the grammar annexes and a wide choice of Preparatory schools including New Beacon, Granville and Walthamstow Hall. Further well-regarded grammar schools are in nearby Tonbridge and Tunbridge Wells.
The M25 is accessible at junction 5 (about 5 miles), providing access to the motorway network, Gatwick, Heathrow and Stansted Airports, Bluewater, Dover and the Channel Tunnel Terminus.
Brochures
More Details- COUNCIL TAXA payment made to your local authority in order to pay for local services like schools, libraries, and refuse collection. The amount you pay depends on the value of the property.Read more about council Tax in our glossary page.
- Band: F
- PARKINGDetails of how and where vehicles can be parked, and any associated costs.Read more about parking in our glossary page.
- Driveway
- GARDENA property has access to an outdoor space, which could be private or shared.
- Yes
- ACCESSIBILITYHow a property has been adapted to meet the needs of vulnerable or disabled individuals.Read more about accessibility in our glossary page.
- Ask agent
The Butts, Otford, Sevenoaks, Kent, TN14
Add an important place to see how long it'd take to get there from our property listings.
__mins driving to your place
Get an instant, personalised result:
- Show sellers you’re serious
- Secure viewings faster with agents
- No impact on your credit score
Your mortgage
Notes
Staying secure when looking for property
Ensure you're up to date with our latest advice on how to avoid fraud or scams when looking for property online.
Visit our security centre to find out moreDisclaimer - Property reference SEV012528397. The information displayed about this property comprises a property advertisement. Rightmove.co.uk makes no warranty as to the accuracy or completeness of the advertisement or any linked or associated information, and Rightmove has no control over the content. This property advertisement does not constitute property particulars. The information is provided and maintained by Knight Frank, Sevenoaks. Please contact the selling agent or developer directly to obtain any information which may be available under the terms of The Energy Performance of Buildings (Certificates and Inspections) (England and Wales) Regulations 2007 or the Home Report if in relation to a residential property in Scotland.
*This is the average speed from the provider with the fastest broadband package available at this postcode. The average speed displayed is based on the download speeds of at least 50% of customers at peak time (8pm to 10pm). Fibre/cable services at the postcode are subject to availability and may differ between properties within a postcode. Speeds can be affected by a range of technical and environmental factors. The speed at the property may be lower than that listed above. You can check the estimated speed and confirm availability to a property prior to purchasing on the broadband provider's website. Providers may increase charges. The information is provided and maintained by Decision Technologies Limited. **This is indicative only and based on a 2-person household with multiple devices and simultaneous usage. Broadband performance is affected by multiple factors including number of occupants and devices, simultaneous usage, router range etc. For more information speak to your broadband provider.
Map data ©OpenStreetMap contributors.








