Lombardy, Brescia, Toscolano-Maderno, Italy
- PROPERTY TYPE
Plot
- SIZE
161,459 sq ft
15,000 sq m
Key features
- View : Panoramic, Lake
- Orientations : East
Description
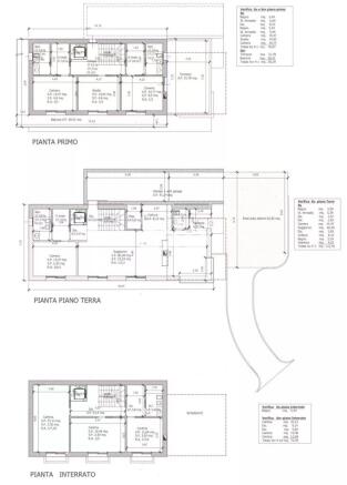
The project was born from the desire to combine contemporary architecture with environmental respect, making the most of the area's natural potential. The villa will be spread over three levels, with a space layout designed for maximum comfort and elegant, timeless living.
On the ground floor – the vibrant heart of the home – over 110 sqm of usable surface open to the outside, ideally projecting toward the lake through large windows that blur the line between interior and landscape. Every space is designed to welcome light, air, and harmony, offering generous living areas, open-plan kitchen, and social spaces immersed in nature.
Upstairs, the sleeping area extends over more than 76 sqm of usable space, ensuring privacy and privileged views, while the basement, with over 72 sqm of non-residential surface, includes technical rooms, a laundry, and a versatile hobby area.
To this are added the legally required amenities – here realized with generosity and style: more than 104 sqm in total between garage and outdoor parking spaces, far exceeding the 76 sqm required by urban regulations, offering functionality and comfort even in the service areas. The garage alone measures over 41 sqm, while the outdoor parking area is spacious, well-organized, and easily accessible.
In total, the villa develops over a volume of more than 760 cubic meters, harmoniously set within a large and flat plot that guarantees privacy, space, and endless landscape possibilities: terraced gardens, panoramic pool, organic vegetable garden, or simply a private park where you can enjoy absolute tranquility.
This property is not just a real estate investment: it's a vision of life, a project that combines the charm of nature with architectural prestige, in one of the most desirable settings Italy has to offer.
If you're looking for a place where time stands still and space opens to beauty, this lake-view plot is the perfect starting point. The villa that may rise here won’t just be a house – it will be a masterpiece to live in.
Lombardy, Brescia, Toscolano-Maderno, Italy
NEAREST AIRPORTS
Distances are straight line measurements- Villafranca Veronese(International)21.9 miles
- Linate(Local)66.0 miles
- Treviso(International)77.1 miles
- Borgo Panigale(International)82.6 miles
- Marco Polo(International)84.6 miles
Advice on buying Italian property
Learn everything you need to know to successfully find and buy a property in Italy.
Notes
This is a property advertisement provided and maintained by eXp Realty, Italy (reference 86091027) and does not constitute property particulars. Whilst we require advertisers to act with best practice and provide accurate information, we can only publish advertisements in good faith and have not verified any claims or statements or inspected any of the properties, locations or opportunities promoted. Rightmove does not own or control and is not responsible for the properties, opportunities, website content, products or services provided or promoted by third parties and makes no warranties or representations as to the accuracy, completeness, legality, performance or suitability of any of the foregoing. We therefore accept no liability arising from any reliance made by any reader or person to whom this information is made available to. You must perform your own research and seek independent professional advice before making any decision to purchase or invest in overseas property.



