Moyser Road, London, SW16
- PROPERTY TYPE
Land
- BEDROOMS
2
- BATHROOMS
3
- SIZE
Ask agent
Key features
- LAND FOR SALE
- Plot with planning for 2 bedroom house
- Architect design
- Vaulted ceiling in lounge area
Description
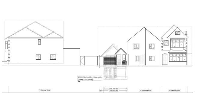
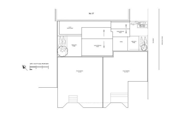
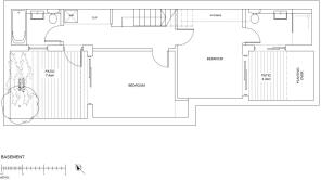
This plot offers a great opportunity to build a delightful - artchitect designed - two bedroom freehold home. Split over basement and ground floor levels the property is configured with two double bedrooms both with ensuite bathrooms and private patio areas located on the basement level. The ground floor is configured with a generous living and kitchen area which benefits from a vaulted ceiling. There is access from the living area through to a private patio area.
Please contact us for further details and to arrange a site visit.
Moyser Road, London, SW16
NEAREST STATIONS
Distances are straight line measurements from the centre of the postcode- Tooting Station0.6 miles
- Streatham Common Station0.7 miles
- Streatham Station0.7 miles
Notes
Disclaimer - Property reference HEO250013. The information displayed about this property comprises a property advertisement. Rightmove.co.uk makes no warranty as to the accuracy or completeness of the advertisement or any linked or associated information, and Rightmove has no control over the content. This property advertisement does not constitute property particulars. The information is provided and maintained by Here Residential, City of London. Please contact the selling agent or developer directly to obtain any information which may be available under the terms of The Energy Performance of Buildings (Certificates and Inspections) (England and Wales) Regulations 2007 or the Home Report if in relation to a residential property in Scotland.
Map data ©OpenStreetMap contributors.







