
Bolton Gardens, Earls Court, SW5

- PROPERTY TYPE
Apartment
- BEDROOMS
2
- BATHROOMS
2
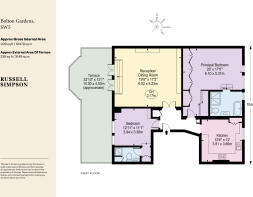
- SIZE
1,128 sq ft
105 sq m
Description
Stepping into this well-proportioned flat, you are greeted by a bright reception and dining room, with French doors opening directly onto a private terrace. Along the hallway, there is a separate kitchen, fitted with modern units.
The flat comprises of two spacious bedrooms, both with ensuite bathrooms, while the principal bedroom also benefits from fitted cupboards. Throughout, wooden floors and high ceilings enhance the sense of space and light.
The property includes a terrace accessed directly from the reception room, at the rear of the building.
Bolton Gardens is a quiet residential address in Earl's Court, featuring elegant Victorian townhouses. The tree-lined street offers a village-like atmosphere while being moments away from Earl's Court Underground station. The area provides excellent transport links and is a short walk to the green spaces of Hyde Park and the cultural attractions of South Kensington, including the Natural History Museum and Victoria and Albert Museum.
- COUNCIL TAXA payment made to your local authority in order to pay for local services like schools, libraries, and refuse collection. The amount you pay depends on the value of the property.Read more about council Tax in our glossary page.
- Band: H
- PARKINGDetails of how and where vehicles can be parked, and any associated costs.Read more about parking in our glossary page.
- Ask agent
- GARDENA property has access to an outdoor space, which could be private or shared.
- Ask agent
- ACCESSIBILITYHow a property has been adapted to meet the needs of vulnerable or disabled individuals.Read more about accessibility in our glossary page.
- Ask agent
Bolton Gardens, Earls Court, SW5
Add an important place to see how long it'd take to get there from our property listings.
__mins driving to your place
Get an instant, personalised result:
- Show sellers you’re serious
- Secure viewings faster with agents
- No impact on your credit score
Your mortgage
Notes
Staying secure when looking for property
Ensure you're up to date with our latest advice on how to avoid fraud or scams when looking for property online.
Visit our security centre to find out moreDisclaimer - Property reference RUS250429. The information displayed about this property comprises a property advertisement. Rightmove.co.uk makes no warranty as to the accuracy or completeness of the advertisement or any linked or associated information, and Rightmove has no control over the content. This property advertisement does not constitute property particulars. The information is provided and maintained by Russell Simpson, Chelsea. Please contact the selling agent or developer directly to obtain any information which may be available under the terms of The Energy Performance of Buildings (Certificates and Inspections) (England and Wales) Regulations 2007 or the Home Report if in relation to a residential property in Scotland.
*This is the average speed from the provider with the fastest broadband package available at this postcode. The average speed displayed is based on the download speeds of at least 50% of customers at peak time (8pm to 10pm). Fibre/cable services at the postcode are subject to availability and may differ between properties within a postcode. Speeds can be affected by a range of technical and environmental factors. The speed at the property may be lower than that listed above. You can check the estimated speed and confirm availability to a property prior to purchasing on the broadband provider's website. Providers may increase charges. The information is provided and maintained by Decision Technologies Limited. **This is indicative only and based on a 2-person household with multiple devices and simultaneous usage. Broadband performance is affected by multiple factors including number of occupants and devices, simultaneous usage, router range etc. For more information speak to your broadband provider.
Map data ©OpenStreetMap contributors.








