Zabljak, Montenegro
- PROPERTY TYPE
Land
- SIZE
3,961 sq ft
368 sq m
Key features
- Building Plot at the great price
- National Park, Durmitor
- Great investment opportunity, Rental Income guaranteed
- Approved Concept Design by City Architect
- Contemporary Architecture / Traditional Architecture blend
- Breathtaking views and suroundings
- For active and relaxing holidays
- Near the Ski Resort
- Additional Buildable Area
- Road access to the plot
Description
The plot is located in one of the most attractive areas of Montenegro, if not wider - Durmitor is one of the most beautiful mountains and recognised as a national Park.
Part of Zabljak, Moticki Gaj is surrounded by beautiful and picturesque nature, as well as the traditional architecture of local houses.
It is close to both the central area of town and the ski resort, whose popularity is growing each day.
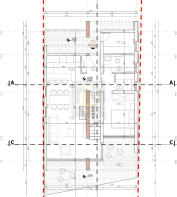
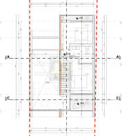
A concept design for a three-bedroom, two-bathroom house - contemporary yet traditional in style - has been approved by the city architect.
The approved design takes into consideration the positioning of the building on the parcel and its orientation, ensuring optimal sunlight throughout the day.
Designed to harmonize with the natural surroundings and local ambiance, the architectural concept pays tribute to the traditional style of the area.
The house is designed with a solid-material ground floor, while the upper level is envisaged as a wooden structure, in line with the principles of local architectural guidelines.
The ground floor includes an entrance area connected directly to a wood log storage room on one side, and an open-plan space that combines the living room, kitchen, and dining area. The living room features a double ceiling and a fireplace. A hallway leads to a double bedroom, bathroom, and sauna.
A staircase connects the living room with the upper floor, where two additional bedrooms and a bathroom are located. Each bedroom has access to its own terrace, offering unforgettable views.
The remaining area of the plot includes plans for a double-parking space and landscaped surroundings around the house. The plot has direct access to the local road.
Plot has approved planning parameters up to maximum building footprint of 0.3, that is 110.40 m2 and maximum built area of 0.6 that is 220.80 m2 over two levels (ground floor + loft), therefore, future owner can go for completely new architectural designs that will bring more of buildable area if desired.
Distance to amazing Black Lake is 5.5 km by car and 3.9 km by foot, to Zabljak Centre 3.4 km by car, Tara Canyon - 20.5 km, Niksic Centre - 73.5 km, Podgorica Centre 123 km and to the Podgorica airport is 132 km.
If you are interested in learning more about this amazing location, feel free to reach out.
ntRealty is a Real Estate Agency based in Tivat, Montenegro headed by a British businessman, Peter Flynn, who has lived in the area since 2005 and focused his efforts on various aspects of real estate, including development, architecture, interior design, and investing in real estate in the area. The Tivat office is run by a team of professionals who really understand the local market. The team is there to help guide you through the buying (or selling) process and we pride ourselves on giving a high level of service in a polite, friendly, and efficient way.
ntRealty specializes in properties for sale all around the Bay of Kotor, Tivat Bay, and Lustica, and our clients range from Porto Montenegro and Lustica Bay to hundreds of private individuals who put their trust in our operation.
Zabljak, Montenegro
NEAREST AIRPORTS
Distances are straight line measurements- Tivat(International)53.4 miles
- Podgorica(International)53.9 miles
Notes
This is a property advertisement provided and maintained by ntRealty, Tivat (reference 1024) and does not constitute property particulars. Whilst we require advertisers to act with best practice and provide accurate information, we can only publish advertisements in good faith and have not verified any claims or statements or inspected any of the properties, locations or opportunities promoted. Rightmove does not own or control and is not responsible for the properties, opportunities, website content, products or services provided or promoted by third parties and makes no warranties or representations as to the accuracy, completeness, legality, performance or suitability of any of the foregoing. We therefore accept no liability arising from any reliance made by any reader or person to whom this information is made available to. You must perform your own research and seek independent professional advice before making any decision to purchase or invest in overseas property.






