Skip to content

Land for sale

Zabljak, Montenegro

£56,336
€65,000
ntRealty, Tivat
PROPERTY TYPE

Land

SIZE

3,961 sq ft

368 sq m

Key features

  • Building Plot at the great price
  • National Park, Durmitor
  • Great investment opportunity, Rental Income guaranteed
  • Approved Concept Design by City Architect
  • Contemporary Architecture / Traditional Architecture blend
  • Breathtaking views and suroundings
  • For active and relaxing holidays
  • Near the Ski Resort
  • Additional Buildable Area
  • Road access to the plot

Description

Building plot in �abljak, Moticki Gaj, size 368 m² for sale.

The plot is located in one of the most attractive areas of Montenegro, if not wider - Durmitor is one of the most beautiful mountains and recognised as a national Park.

Part of Zabljak, Moticki Gaj is surrounded by beautiful and picturesque nature, as well as the traditional architecture of local houses.

It is close to both the central area of town and the ski resort, whose popularity is growing each day.

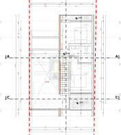
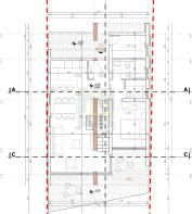
A concept design for a three-bedroom, two-bathroom house - contemporary yet traditional in style - has been approved by the city architect.

The approved design takes into consideration the positioning of the building on the parcel and its orientation, ensuring optimal sunlight throughout the day.

Designed to harmonize with the natural surroundings and local ambiance, the architectural concept pays tribute to the traditional style of the area.

The house is designed with a solid-material ground floor, while the upper level is envisaged as a wooden structure, in line with the principles of local architectural guidelines.

The ground floor includes an entrance area connected directly to a wood log storage room on one side, and an open-plan space that combines the living room, kitchen, and dining area. The living room features a double ceiling and a fireplace. A hallway leads to a double bedroom, bathroom, and sauna.

A staircase connects the living room with the upper floor, where two additional bedrooms and a bathroom are located. Each bedroom has access to its own terrace, offering unforgettable views.

The remaining area of the plot includes plans for a double-parking space and landscaped surroundings around the house. The plot has direct access to the local road.

Plot has approved planning parameters up to maximum building footprint of 0.3, that is 110.40 m2 and maximum built area of 0.6 that is 220.80 m2 over two levels (ground floor + loft), therefore, future owner can go for completely new architectural designs that will bring more of buildable area if desired.

Distance to amazing Black Lake is 5.5 km by car and 3.9 km by foot, to Zabljak Centre 3.4 km by car, Tara Canyon - 20.5 km, Niksic Centre - 73.5 km, Podgorica Centre 123 km and to the Podgorica airport is 132 km.

If you are interested in learning more about this amazing location, feel free to reach out.

ntRealty is a Real Estate Agency based in Tivat, Montenegro headed by a British businessman, Peter Flynn, who has lived in the area since 2005 and focused his efforts on various aspects of real estate, including development, architecture, interior design, and investing in real estate in the area. The Tivat office is run by a team of professionals who really understand the local market. The team is there to help guide you through the buying (or selling) process and we pride ourselves on giving a high level of service in a polite, friendly, and efficient way.

ntRealty specializes in properties for sale all around the Bay of Kotor, Tivat Bay, and Lustica, and our clients range from Porto Montenegro and Lustica Bay to hundreds of private individuals who put their trust in our operation.

Zabljak, Montenegro

NEAREST AIRPORTS

Distances are straight line measurements
  • Tivat(International)
    53.4 miles
  • Podgorica(International)
    53.9 miles

About ntRealty, Tivat

Tivat

ntRealty is a Real Estate Agency based in Tivat, Montenegro, run by a team of professionals who really understand the Montenegrin property market. We specialise in properties for sale all around the Bay of Kotor, Tivat Bay and Lustica. We have apartments, houses, villas ruins and land for sale. These also incluse exciting new projects such as Porto Montenegro, Lustica Bay, Sea Breeze. and Tivat Heights.

The Agency is founded by a British businessman who came to Montenegro in 2005 to invest in the real estate market and has worked not only in real estate but development and architecture. The agency is run on the pricipal that properties listed must have at least on of the following attributes:

Position - It's all about location, location. location

Price - the price must reflect current market values or represent excellent value for money. Overpriced properties are rejected

Potential - normally properties in this category are in a good area or an up and coming area and the price represents good value. Often these are properties that need refurbishment, renovation, extended or land to be developed

We only accept properties that have at least one of the above atribute and preferably all three. We vet the properties, land/ruins offered to us but there is no substitute for good legal advice when buying.

If you are looking to buy land or property, please take a look at our listings. If you need any help, please contact us and we will gladly work with you to help find your perfect realty. We can also offer a property search service, so if you can't see what you are looking for, we can help find it for you. Contact us today with your requirements.

If you are looking to sell your land or property and have all of your documents please contact us. We have buyers registered with us and we are actively looking for good quality properties to buy and sell.

Notes

These notes are private, only you can see them.

This is a property advertisement provided and maintained by ntRealty, Tivat (reference 1024) and does not constitute property particulars. Whilst we require advertisers to act with best practice and provide accurate information, we can only publish advertisements in good faith and have not verified any claims or statements or inspected any of the properties, locations or opportunities promoted. Rightmove does not own or control and is not responsible for the properties, opportunities, website content, products or services provided or promoted by third parties and makes no warranties or representations as to the accuracy, completeness, legality, performance or suitability of any of the foregoing. We therefore accept no liability arising from any reliance made by any reader or person to whom this information is made available to. You must perform your own research and seek independent professional advice before making any decision to purchase or invest in overseas property.

Email agent

Email agent