
Rhinefield Road, Brockenhurst, SO42

- PROPERTY TYPE
Country House
- BEDROOMS
7
- BATHROOMS
5
- SIZE
Ask agent
- TENUREDescribes how you own a property. There are different types of tenure - freehold, leasehold, and commonhold.Read more about tenure in our glossary page.
Freehold
Key features
- An exceptional country house
- Set in beautiful garden and grounds of just under 6 acres
- One of the finest locations in the New Forest
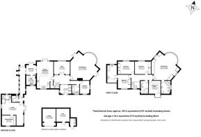
- Offering extensive accommodation extending to approx 4107 sqft
- Annexe Accommodation
- Within walking distance of the open forest and Brockenhurst village
Description
An exceptional country house set in beautiful gardens and grounds of just under 6 acres, in one of the finest locations in the New Forest. The property offers extensive accommodation extending to approximately 4107 square feet, with the additional benefit of annexed accommodation. The property is within walking distance of the open forest and Brockenhurst village.
The ground floor accommodation centres around an impressive reception hall which links to the principal living spaces, including a spectacular, triple aspect drawing room with large bow window and double doors either side opening onto the terracing. Also accessed from the reception hall is a good size study currently used as a snug and a double aspect kitchen/dining room with double doors opening onto the terrace.
An inner hallway leads to a double aspect, ground floor bedroom currently used as a study and an adjoining bathroom.
Set off the kitchen/dining room is a boot room, which links to a utility room and a garden room leading through to the adjoining, self-contained, one bedroom annexe, with modern, separate bathroom.
To the first floor, there are five generous bedrooms accessed off a central landing area. The magnificent, triple aspect, principal bedroom offers a wonderful space with numerous built-in wardrobes, full en-suite bathroom and stunning, elevated views from the bow window across the grounds.
The remaining bedrooms also offer views across different aspects of the grounds, with three of the bedrooms offering built-in wardrobes and one other, beautiful American oak panelling. These bedrooms are served by two separate family bathrooms.
Annexe:
The property benefits from an attached annexe set to the side which is linked via an internal lobby to the main house.
The annexe does have a private entrance from the driveway which leads into the open plan living room which has a kitchen area set to one side and benefits from dual aspects and offers space for seating and dining. A double bedroom is set off this living area which has built in wardrobes. A shower room completes the annexe which would be suitable for a number of options including for dependent relatives or to generate potential income as a holiday let.
The property is approached by a long driveway set off Rhinefield Road, which leads up to Black Knoll Cottage and just two other properties. At the top of the drive, double electric gates open onto a walled courtyard, providing ample parking facilities and access to the garage.
The beautiful gardens and grounds attributed to the property extend to almost 6 acres. The grounds are apportioned into different areas of interest, comprising formal gardens, an orchard and paddocks defined by established hedgerow borders, with a majestic backdrop of forest woodland. The grounds enjoy a high degree of privacy and seclusion and offer ample opportunity for the inclusion of a tennis court and swimming pool (STPP), should either be required. To the rear of the paddock, gated access leads out to the open forest at Butts Lawn.
Stable for 1 pony with water supply.
Additional Information:
Tenure: Freehold
Council Tax Band: G
Energy Performance Rating: C Current: 75 Potential: 78
Services: Mains gas, electric, water and drainage
Gas Central Heating
Construction Type: Standard Construction
Flood Risk: Very Low
Broadband: FFTP - Fibre to the property directly.
Ultrafast broadband with speeds of up to 1800 Mbps is available at the property (Ofcom).
Mobile Coverage: No known issues, buyer to check with their provider for further clarity.
Agents Note: There is planning application approval to erect a replacement single storey eco dwelling located to the SW of Black Knoll Cottage.
Brochures
Brochure 1- COUNCIL TAXA payment made to your local authority in order to pay for local services like schools, libraries, and refuse collection. The amount you pay depends on the value of the property.Read more about council Tax in our glossary page.
- Band: G
- PARKINGDetails of how and where vehicles can be parked, and any associated costs.Read more about parking in our glossary page.
- Garage,Driveway
- GARDENA property has access to an outdoor space, which could be private or shared.
- Yes
- ACCESSIBILITYHow a property has been adapted to meet the needs of vulnerable or disabled individuals.Read more about accessibility in our glossary page.
- Ask agent
Rhinefield Road, Brockenhurst, SO42
Add an important place to see how long it'd take to get there from our property listings.
__mins driving to your place
Get an instant, personalised result:
- Show sellers you’re serious
- Secure viewings faster with agents
- No impact on your credit score
Your mortgage
Notes
Staying secure when looking for property
Ensure you're up to date with our latest advice on how to avoid fraud or scams when looking for property online.
Visit our security centre to find out moreDisclaimer - Property reference 29170530. The information displayed about this property comprises a property advertisement. Rightmove.co.uk makes no warranty as to the accuracy or completeness of the advertisement or any linked or associated information, and Rightmove has no control over the content. This property advertisement does not constitute property particulars. The information is provided and maintained by Spencers, Brockenhurst. Please contact the selling agent or developer directly to obtain any information which may be available under the terms of The Energy Performance of Buildings (Certificates and Inspections) (England and Wales) Regulations 2007 or the Home Report if in relation to a residential property in Scotland.
*This is the average speed from the provider with the fastest broadband package available at this postcode. The average speed displayed is based on the download speeds of at least 50% of customers at peak time (8pm to 10pm). Fibre/cable services at the postcode are subject to availability and may differ between properties within a postcode. Speeds can be affected by a range of technical and environmental factors. The speed at the property may be lower than that listed above. You can check the estimated speed and confirm availability to a property prior to purchasing on the broadband provider's website. Providers may increase charges. The information is provided and maintained by Decision Technologies Limited. **This is indicative only and based on a 2-person household with multiple devices and simultaneous usage. Broadband performance is affected by multiple factors including number of occupants and devices, simultaneous usage, router range etc. For more information speak to your broadband provider.
Map data ©OpenStreetMap contributors.








