
Strand House, Treknow, PL34

- PROPERTY TYPE
House
- BEDROOMS
5
- BATHROOMS
3
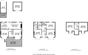
- SIZE
2,135 sq ft
198 sq m
- TENUREDescribes how you own a property. There are different types of tenure - freehold, leasehold, and commonhold.Read more about tenure in our glossary page.
Ask agent
Key features
- Characterful Period Property
- Five Double Bedrooms with Two Ensuites
- Large Kitchen / Diner Area
- Spectacular Views looking towards Trebarwith Strand
- Over 2,130 Square Feet of Accommodation
- Private & Enclosed Lawned Garden with Workshop, Garage and off Road Parking
Description
Strand House is an impressive period property situated in a tranquil and elevated position in the pretty coastal hamlet of Treknow on the rugged North coast of Cornwall. Being in an area of outstanding natural beauty and with immediate access to the south west coast path via the adjacent byway and public footpaths.
The accommodation is provided over three levels, the entrance hall is inviting and spacious, with original floor tiles. There are two reception rooms, both with front facing views and both with working fireplaces.
The hallway leads through to a generous kitchen dining area with access to the rear of the property, garden and parking area. The Kitchen and dining space has ample room for a dining room table and chairs. The kitchen is fitted with a range of modern base cabinets, wall units and integrated Aga style electric oven. Again with that desirable local Delabole slate flooring.
Up onto the first floor there are three spacious double bedrooms. Bedroom one features an original fireplace, light and airy feel with a desirable ensuite. Bedroom two is another front facing room with a charming fireplace. Bedroom three is situated at the rear, features an ensuite shower room and enjoys beautiful garden views. There is a further family bathroom complete with shower enclosure and panelled bath. The second floor has two further large and spacious double bedrooms.
The garden at Strand House offers low maintenance landscaping with a selection of plants, flowers and two apple trees. Two gates give access to the road behind and the gravelled parking area, which can park up to five cars. There is also a timber garden shed, garage and workshop. The workshop is fully equipped with electric and water supply. To the front is a decked area with space for a table and chairs to enjoy the views across to Trebarwith Strand. Services to the property include mains water, electricity and oil fired central heating system.
EPC rating F. Council tax band D. Ofcom suggest superfast broadband availability. Ofcom suggest 4G mobile coverage.
Strand House is an instantly impressive period home and we at Jackie Stanley highly recommend an internal viewing to fully appreciate all that the property has to offer.
Treknow is a small and peaceful hamlet situated on the North coast of Cornwall between the villages of Trebarwith Strand and Tintagel. The stunning tidal beach at Trebarwith Strand is a 10 to 15 minute walk through the valley via footpaths which is popular with tourists throughout the year. Trebarwith provides several beach shops, two cafes and The Port William cliff top bar & restaurant with its staggering sea views. There are beautiful cliff top walks either side of the valley with one direction leading to Tintagel and the other to Port Isaac. Further up the valley are lovely woodland walks and the popular Mill House pub and restaurant. A range of local amenities can be found in the neighbouring village of Tintagel offering a pharmacy, infant and primary schools, a selection of restaurants and public houses and a post office. The village is also famed for its links to the legend of King Arthur and is home to the castle ruins. For a more comprehensive range of shopping facilities, the towns of Wadebridge and Camelford are within easy reach by car.
To find Strand House, follow the A39 from Wadebridge signposted to Camelford. After approximately 9 miles, turn left onto the B3266 signposted to Boscastle and Tintagel. Follow the B3266 for approximately 2 miles and then turn left onto the B3314 signposted to Tintagel. Turn Left onto Treligga Downs Road to Trebarwith Strand and Tintagel. Follow this road for approximately four miles and then turn left signposted to Treknow. Follow this lane to the right onto Treknow Lane and Strand house can be found on the right hand side. The postcode for satellite navigation is PL34 0EN. What3words: ///photo.prettiest.ponies
Brochures
Particulars- COUNCIL TAXA payment made to your local authority in order to pay for local services like schools, libraries, and refuse collection. The amount you pay depends on the value of the property.Read more about council Tax in our glossary page.
- Ask agent
- PARKINGDetails of how and where vehicles can be parked, and any associated costs.Read more about parking in our glossary page.
- Yes
- GARDENA property has access to an outdoor space, which could be private or shared.
- Yes
- ACCESSIBILITYHow a property has been adapted to meet the needs of vulnerable or disabled individuals.Read more about accessibility in our glossary page.
- Ask agent
Strand House, Treknow, PL34
Add an important place to see how long it'd take to get there from our property listings.
__mins driving to your place
Get an instant, personalised result:
- Show sellers you’re serious
- Secure viewings faster with agents
- No impact on your credit score
Your mortgage
Notes
Staying secure when looking for property
Ensure you're up to date with our latest advice on how to avoid fraud or scams when looking for property online.
Visit our security centre to find out moreDisclaimer - Property reference JACKI_002825. The information displayed about this property comprises a property advertisement. Rightmove.co.uk makes no warranty as to the accuracy or completeness of the advertisement or any linked or associated information, and Rightmove has no control over the content. This property advertisement does not constitute property particulars. The information is provided and maintained by Jackie Stanley, Padstow. Please contact the selling agent or developer directly to obtain any information which may be available under the terms of The Energy Performance of Buildings (Certificates and Inspections) (England and Wales) Regulations 2007 or the Home Report if in relation to a residential property in Scotland.
*This is the average speed from the provider with the fastest broadband package available at this postcode. The average speed displayed is based on the download speeds of at least 50% of customers at peak time (8pm to 10pm). Fibre/cable services at the postcode are subject to availability and may differ between properties within a postcode. Speeds can be affected by a range of technical and environmental factors. The speed at the property may be lower than that listed above. You can check the estimated speed and confirm availability to a property prior to purchasing on the broadband provider's website. Providers may increase charges. The information is provided and maintained by Decision Technologies Limited. **This is indicative only and based on a 2-person household with multiple devices and simultaneous usage. Broadband performance is affected by multiple factors including number of occupants and devices, simultaneous usage, router range etc. For more information speak to your broadband provider.
Map data ©OpenStreetMap contributors.





