Restaurant to lease
Princess Street, Manchester, Greater Manchester, M1
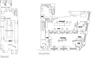
- SIZE AVAILABLE
2,000 sq ft
186 sq m
- SECTOR
Restaurant to lease
- USE CLASSUse class orders: A1 Shops, A2 Financial and Professional Services, A3 Restaurants and Cafes, A4 Drinking Establishments, sui_generis_1 and sui_generis_2
A1, A2, A3, A4, sui_generis_1, sui_generis_2
Lease details
- Lease available date:
- Ask agent
- Lease type:
- Long term
- Furnish type:
- Unfurnished
Key features
- Prime City centre
- High footfall area
- Student area near Manchester and Manchester metropolitan university
- Near Piccadilly train station and Oxford road
- Busy area
Description
The Opportunity: 2,000 Sq Ft of Pure Potential
Spanning an impressive 2,000 square feet, the available space provides a voluminous and versatile environment that can be tailored to a multitude of concepts. The significant floor area allows for ambitious layouts, whether that be a spacious, open-plan restaurant with a bustling show kitchen, a multi-zoned bar offering distinct ambiances, a contemporary retail showroom with impactful displays, or a collaborative and modern office environment.
The unit benefits from a commanding dual frontage onto both Princess Street and Whitworth Street, two of the city centre's key thoroughfares. This guarantees exceptional visibility and a constant, heavy stream of passing foot and vehicle traffic throughout the day and into the night. The potential for large, striking window displays offers an incredible marketing opportunity, allowing a business to capture the attention of the thousands of professionals, students, residents, and tourists who populate the area daily. The internal space is a blank canvas, offering the freedom to implement a bespoke design that perfectly aligns with a brand's identity and operational requirements.
Potential Uses (Subject to Planning Permission):
Destination Restaurant: The size and location are perfect for a high-end dining establishment. Manchester's culinary scene is booming, yet there remains a strong appetite for unique, high-quality dining experiences. The space could comfortably accommodate a large dining room, private dining areas, a welcoming reception, and substantial kitchen facilities. The proximity to theatres, concert halls, and hotels provides a captive audience seeking pre-and post-event dining.
Flagship Bar or Cocktail Lounge: The area is a hub for evening and nighttime economy. A stylish, well-executed bar could thrive here, catering to after-work drinkers, weekend revellers, and discerning cocktail connoisseurs. The 2,000 sq ft footprint allows for the creation of a large, statement bar, comfortable lounge seating, and perhaps even a dedicated space for live music or DJs.
Experiential Retail Space: In today's retail landscape, experience is key. This property offers the scale to create more than just a shop; it could be a brand home. A high-end fashion label, a technology company, or a specialist retailer could create an immersive environment that combines product sales with demonstrations, events, and customer engagement, drawing people in from across the city and beyond.
Modern, High-Profile Office: For a company wanting to make a statement, this location is unbeatable. It would provide a prestigious and easily accessible headquarters for a creative agency, a tech start-up, a law firm, or a financial services company. The space could be configured to create a dynamic mix of open-plan workspaces, private offices, meeting rooms, and breakout areas, all within a vibrant city-centre setting that is highly attractive to top talent.
Hybrid Café and Co-working Space: Capitalising on the area's large student and professional population, a hybrid model could be exceptionally successful. A high-quality coffee shop and eatery at the front could be complemented by a stylish co-working hub, offering hot-desking, dedicated desks, and meeting rooms.
The Location: The Vibrant Nexus of Manchester City Centre
The property is positioned at the absolute epicentre of Manchester's commercial and cultural life, a location where several of the city's most important districts converge. This is not just a central location; it is a strategic crossroads that links the city's academic heart, its primary transport hubs, its corporate core, and its most celebrated entertainment and leisure districts.
A Neighbourhood of Contrasts and Connectivity:
To the south lies the "Knowledge Quarter," an innovation district centred around the University of Manchester and Manchester Metropolitan University. This area is a hotbed of research, education, and youthful energy, home to over 80,000 students and a vast workforce of academics and researchers. This demographic provides a consistent and intelligent consumer base, eager for quality food, drink, and retail experiences. The daily migration of students and staff between the university campuses and the city centre funnels directly past the property.
To the east is Manchester's world-famous "Gay Village," centred around Canal Street. This vibrant and inclusive neighbourhood is a major destination for both locals and tourists, renowned for its lively bars, clubs, and restaurants, and host to the annual Manchester Pride festival, one of the largest in the UK. The Village's constant buzz and its role as a major social hub contribute significantly to the area's high footfall and energetic atmosphere, particularly in the evenings and on weekends.
A stone's throw to the north is Chinatown, one of the largest and most established in the UK. Its iconic arched gateway on Faulkner Street leads to a bustling enclave of authentic East Asian restaurants, supermarkets, and businesses. It draws visitors from across the region, adding another layer of cultural diversity and culinary vibrancy to the immediate vicinity.
Unrivalled Transport Connections:
The property's accessibility is second to none, making it an easy destination from anywhere in Greater Manchester and beyond.
Rail: Manchester Piccadilly Station, the city's principal mainline station with direct services to London, Birmingham, Edinburgh, and Manchester Airport, is a mere 5-minute walk away. Manchester Oxford Road Station, a key hub for regional services, is also just a short stroll down Whitworth Street. This places the property within effortless reach of millions of commuters and national and international visitors.
Metrolink: The St Peter's Square Metrolink interchange, the largest and most connected tram stop on the network, is less than a 10-minute walk away. This provides rapid, direct tram access to all corners of Greater Manchester, from Salford Quays and MediaCityUK to Oldham, Rochdale, and South Manchester.
Bus: The area is one of the most densely served bus corridors in Europe. Numerous bus routes run along Princess Street and the nearby Oxford Road corridor, providing constant, high-frequency services connecting the city centre with the suburbs and surrounding towns.
The Immediate Vicinity: A Rich Tapestry of Commerce and Culture
The streets surrounding the property are a hive of activity, characterised by a compelling mix of architectural grandeur, modern enterprise, and cultural landmarks.
Business and Hospitality:
The area boasts a high concentration of hotels, catering to business travellers and tourists alike. Major establishments such as The Kimpton Clocktower, The Midland Hotel, and The Principal are all within a short walk, providing a ready-made market for a high-quality restaurant or bar. The surrounding streets are also home to a significant number of office buildings, housing thousands of professionals in sectors from finance and law to media and tech. This ensures a robust lunchtime and after-work trade.
Arts and Culture:
This is a culturally rich district. The Palace Theatre, one of Manchester's premier venues for West End shows and major touring productions, is just a few hundred metres away. HOME, the city's centre for contemporary art, theatre, and film, is also within easy walking distance. The Bridgewater Hall, home to the Hallé Orchestra, and the Manchester Central Convention Complex, which hosts major international conferences and exhibitions, are both close by. These venues attract a significant and affluent audience, presenting a golden opportunity for pre-theatre dining and post-show drinks.
A Thriving Local Scene:
The immediate area offers a snapshot of Manchester's dynamic hospitality scene. From the traditional pubs nestled in side streets to the trendy coffee shops fuelling the student and professional population, and the diverse range of eateries in Chinatown and the Village, there is a constant buzz. A new, high-profile establishment would not just join this scene but has the potential to become its new anchor, a go-to destination that elevates the local offering.
In summary, this 2,000 sq ft commercial property represents more than just a space; it is a gateway to a vast and varied market. Its sheer size offers limitless potential, while its location is, without question, one of the most advantageous in the city. For a business with vision and ambition, this is a rare and unparalleled opportunity to create a new Manchester landmark.
Brochures
Princess Street, Manchester, Greater Manchester, M1
NEAREST STATIONS
Distances are straight line measurements from the centre of the postcode- Manchester Oxford Road Station0.2 miles
- St Peters Square Tram Stop0.3 miles
- Piccadilly Gardens Tram Stop0.3 miles
Notes
Disclaimer - Property reference Princesswhitworth. The information displayed about this property comprises a property advertisement. Rightmove.co.uk makes no warranty as to the accuracy or completeness of the advertisement or any linked or associated information, and Rightmove has no control over the content. This property advertisement does not constitute property particulars. The information is provided and maintained by GPA, Manchester. Please contact the selling agent or developer directly to obtain any information which may be available under the terms of The Energy Performance of Buildings (Certificates and Inspections) (England and Wales) Regulations 2007 or the Home Report if in relation to a residential property in Scotland.
Map data ©OpenStreetMap contributors.





