
Ashley Gardens, Thirleby Road, Victoria, London, SW1P

- PROPERTY TYPE
Apartment
- BEDROOMS
2
- BATHROOMS
2
- SIZE
1,077 sq ft
100 sq m
Key features
- Well-proportioned apartment
- Two bedrooms and two bathrooms
- Sixth floor, with a passenger lift
- Porter
- Share of Freehold with long underlying lease
- EPC Rating = C
Description
Description
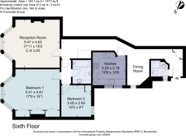
Situated on the sixth floor (with lift) of a highly desirable Ashley Gardens mansion block, this spacious two-bedroom apartment offers approximately 1,077 sq. ft. of elegant living space. The reception room features a charming bay window and a feature fireplace. Meanwhile, a contemporary kitchen is fully equipped with integrated appliances and further complemented by a separate, dedicated dining area. Accommodation further comprises two bedrooms, both of which include built-in storage, and two bathrooms. Residents' of Ashley Gardens also benefit from the services of a dedicated porter.
Please note, the photos were taken over 6 months ago.
Location
Located to the south of St. James’s Park and to the east of Victoria, this is a prime location convenient for iconic landmarks including Buckingham Palace and St. James's Park, Westminster Abbey, the Houses of Parliament and the Tate Britain Gallery. Transport connections are superb, with Victoria Railway Station offering both mainline and underground services, while St. James's Park and Westminster stations also offer underground services.
Victoria Station: 0.4 miles (approximately)
St. James's Park Underground Station: 0.4 miles (approximately)
Buckingham Palace: 0.6 miles (approximately)
Square Footage: 1,077 sq ft
Additional Info
Please note for 2024/25 there was an additional payment of £420.98 for boiler repairs and heating.
Brochures
Web DetailsParticulars- COUNCIL TAXA payment made to your local authority in order to pay for local services like schools, libraries, and refuse collection. The amount you pay depends on the value of the property.Read more about council Tax in our glossary page.
- Band: F
- PARKINGDetails of how and where vehicles can be parked, and any associated costs.Read more about parking in our glossary page.
- Ask agent
- GARDENA property has access to an outdoor space, which could be private or shared.
- Yes
- ACCESSIBILITYHow a property has been adapted to meet the needs of vulnerable or disabled individuals.Read more about accessibility in our glossary page.
- Ask agent
Ashley Gardens, Thirleby Road, Victoria, London, SW1P
Add an important place to see how long it'd take to get there from our property listings.
__mins driving to your place
Get an instant, personalised result:
- Show sellers you’re serious
- Secure viewings faster with agents
- No impact on your credit score
Your mortgage
Notes
Staying secure when looking for property
Ensure you're up to date with our latest advice on how to avoid fraud or scams when looking for property online.
Visit our security centre to find out moreDisclaimer - Property reference WSS250094. The information displayed about this property comprises a property advertisement. Rightmove.co.uk makes no warranty as to the accuracy or completeness of the advertisement or any linked or associated information, and Rightmove has no control over the content. This property advertisement does not constitute property particulars. The information is provided and maintained by Savills, Westminster. Please contact the selling agent or developer directly to obtain any information which may be available under the terms of The Energy Performance of Buildings (Certificates and Inspections) (England and Wales) Regulations 2007 or the Home Report if in relation to a residential property in Scotland.
*This is the average speed from the provider with the fastest broadband package available at this postcode. The average speed displayed is based on the download speeds of at least 50% of customers at peak time (8pm to 10pm). Fibre/cable services at the postcode are subject to availability and may differ between properties within a postcode. Speeds can be affected by a range of technical and environmental factors. The speed at the property may be lower than that listed above. You can check the estimated speed and confirm availability to a property prior to purchasing on the broadband provider's website. Providers may increase charges. The information is provided and maintained by Decision Technologies Limited. **This is indicative only and based on a 2-person household with multiple devices and simultaneous usage. Broadband performance is affected by multiple factors including number of occupants and devices, simultaneous usage, router range etc. For more information speak to your broadband provider.
Map data ©OpenStreetMap contributors.





