Plot for sale
Apple Tree Close, North Wingfield, S42 5HR.
- PROPERTY TYPE
Plot
- BEDROOMS
2
- BATHROOMS
1
- SIZE
Ask agent
Key features
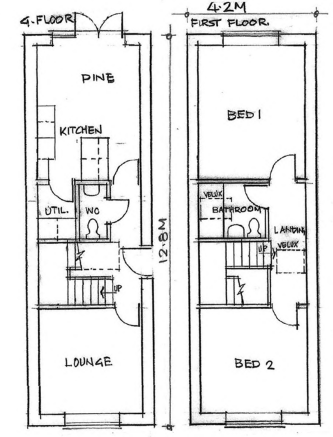
- Building plot approx 226 sqm.
- With planning consent for 2 bed detached property.
- Ground floor living dining kitchen and utility.
- First floor two bedrooms and bathroom.
- Parking space and garden.
- Within easy reach of local amenities.
- Planning Authority North East Derbyshire.
- Planning Ref: 24/00795/FL.
Description
Building plot approx 226 sqm. Apple Tree Close, North Wingfield. With planning consent for 2 bed detached property. Ground floor living dining kitchen and utility, first floor two bedrooms and bathroom, parking space and garden.
SERVICES AND GENERAL INFORMATION
All service connections would be required to be installed as part of the build.
For Broadband speed, please go to checker.ofcom.org.uk/en-gb/broadband-coverage
For Mobile Phone coverage, please go to checker.ofcom.org.uk/en-gb/mobile-coverage
TENURE Freehold
ANTI-MONEY LAUNDERING
Please read - We are required by law to conduct anti-money laundering checks on all those selling or buying a property. Whilst we retain responsibility for ensuring checks and any ongoing monitoring are carried out correctly, the initial checks are carried out on our behalf by Lifetime Legal who will contact you once you have agreed to instruct us in your sale or had an offer accepted on a property you wish to buy. The cost of these checks is £45 (incl. VAT), which covers the cost of obtaining relevant data and any manual checks and monitoring which might be required. This fee will need to be paid by you in advance of us publishing your property (in the case of a vendor) or issuing a memorandum of sale (in the case of a buyer), directly to Lifetime Legal, and is non-refundable.
Disclaimer
All measurements in these details are approximate. None of the fixed appliances or services have been tested and no warranty can be given to their condition. The deeds have not been inspected by the writers of these details. These particulars are produced in good faith with the approval of the vendor but they should not be relied upon as statements or representations of fact and they do not constitute any part of an offer or contract.
Apple Tree Close, North Wingfield, S42 5HR.
NEAREST STATIONS
Distances are straight line measurements from the centre of the postcode- Chesterfield Station4.6 miles
Notes
Disclaimer - Property reference S1384363. The information displayed about this property comprises a property advertisement. Rightmove.co.uk makes no warranty as to the accuracy or completeness of the advertisement or any linked or associated information, and Rightmove has no control over the content. This property advertisement does not constitute property particulars. The information is provided and maintained by Sally Botham Estates, Matlock. Please contact the selling agent or developer directly to obtain any information which may be available under the terms of The Energy Performance of Buildings (Certificates and Inspections) (England and Wales) Regulations 2007 or the Home Report if in relation to a residential property in Scotland.
Map data ©OpenStreetMap contributors.








