
Staplehurst, Kent

- PROPERTY TYPE
Detached
- BEDROOMS
3
- BATHROOMS
2
- SIZE
Ask agent
- TENUREDescribes how you own a property. There are different types of tenure - freehold, leasehold, and commonhold.Read more about tenure in our glossary page.
Freehold
Key features
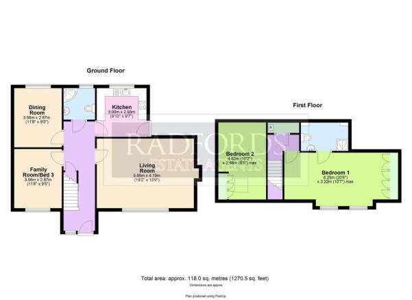
- Hallway
- Living Room
- Dining Room
- Study/Potential 3rd Bedroom
- Well-fitted Shower Room
- Kitchen
- Two Bedrooms
- One Ensuite
- Car Parking For At least 3 Cars
- Courtyard Style Garden To The Rear
Description
A beautifully presented detached chalet style property built in approximately the last 12 years to a high standard. Spacious family living accommodation with plenty of car parking. The property has the benefit of underfloor heating on the ground floor as well as a recently fitted new Valliant boiler. An internal inspection is highly recommended.
The property is set within the popular Wealden village of Staplehurst with its range of local amenities including post office, Sainsburys supermarket, primary school and mainline station providing commuter services to London Charing Cross, Waterloo, London Bridge and Cannon Street (approximately 55 minutes). The County town of Maidstone is approximately 9 miles away providing a wider range of both shopping and leisure facilities. The property falls within the Cranbrook School catchment area.
FRONT DOOR
Leading to:
ENTRANCE HALLWAY
Wood laminate flooring. Leading to:
SPACIOUS HALLWAY
Wood laminate flooring. Window to front with fitted blind. Understairs cupboard.
LIVING ROOM
Spacious. Window to front. Fitted carpeting. Inset wood burning stove.
DINING ROOM
Window to rear with fitted blind. Fitted carpeting.
THIRD BEDROOM/STUDY AREA
Window to front. Fitted carpeting.
MAIN SHOWER ROOM
Window to rear. Fitted shower cubicle. Hand wash basin. WC. Chrome heated towel rail. Tiled walls. Spotlights.
KITCHEN
Ceramic tiled flooring. Window to rear with venetian blind and door opening to garden. Fitted out with base and eye level units finished in cream incorporating a 1½ bowl sink unit. Ceramic hob with extractor hood over. Fitted cooker. Integrated washing machine and fridge. Bosch dishwasher. Spotlights.
STAIRCASE
Leading to:
FIRST FLOOR LANDING
Carpeted. Large cupboard.
BEDROOM 1
Window to front. Fitted carpeting. Radiator. Built-in wardrobe cupboards.
ENSUITE
Shower cubicle. Hand wash basin. WC. Chrome heated towel rail. Large cupboard.
BEDROOM 2
Velux window and blind to front. Fitted carpeting. Radiator. Eaves cupboard. Built-in wardrobe cupboard.
OUTSIDE
The property enjoys and area of front garden with car parking space for atleast 2 cars with garage. Side access and gate opening through to rear courtyard style area. Garden shed. Garage with light and power.
Brochures
Brochure 1- COUNCIL TAXA payment made to your local authority in order to pay for local services like schools, libraries, and refuse collection. The amount you pay depends on the value of the property.Read more about council Tax in our glossary page.
- Ask agent
- PARKINGDetails of how and where vehicles can be parked, and any associated costs.Read more about parking in our glossary page.
- Yes
- GARDENA property has access to an outdoor space, which could be private or shared.
- Yes
- ACCESSIBILITYHow a property has been adapted to meet the needs of vulnerable or disabled individuals.Read more about accessibility in our glossary page.
- Ask agent
Staplehurst, Kent
Add an important place to see how long it'd take to get there from our property listings.
__mins driving to your place
Get an instant, personalised result:
- Show sellers you’re serious
- Secure viewings faster with agents
- No impact on your credit score
About Radfords Estate Agents, Staplehurst
The Estate Office, Crampton House, High Street, Staplehurst, Kent, TN12 0AU



Your mortgage
Notes
Staying secure when looking for property
Ensure you're up to date with our latest advice on how to avoid fraud or scams when looking for property online.
Visit our security centre to find out moreDisclaimer - Property reference S1384682. The information displayed about this property comprises a property advertisement. Rightmove.co.uk makes no warranty as to the accuracy or completeness of the advertisement or any linked or associated information, and Rightmove has no control over the content. This property advertisement does not constitute property particulars. The information is provided and maintained by Radfords Estate Agents, Staplehurst. Please contact the selling agent or developer directly to obtain any information which may be available under the terms of The Energy Performance of Buildings (Certificates and Inspections) (England and Wales) Regulations 2007 or the Home Report if in relation to a residential property in Scotland.
*This is the average speed from the provider with the fastest broadband package available at this postcode. The average speed displayed is based on the download speeds of at least 50% of customers at peak time (8pm to 10pm). Fibre/cable services at the postcode are subject to availability and may differ between properties within a postcode. Speeds can be affected by a range of technical and environmental factors. The speed at the property may be lower than that listed above. You can check the estimated speed and confirm availability to a property prior to purchasing on the broadband provider's website. Providers may increase charges. The information is provided and maintained by Decision Technologies Limited. **This is indicative only and based on a 2-person household with multiple devices and simultaneous usage. Broadband performance is affected by multiple factors including number of occupants and devices, simultaneous usage, router range etc. For more information speak to your broadband provider.
Map data ©OpenStreetMap contributors.





