Takeaway to lease
Ashley Road, Poole, Dorset, BH14
- SIZE AVAILABLE
420 sq ft
39 sq m
- SECTOR
Takeaway to lease
- USE CLASSUse class orders: A5 Hot Food Take away
A5
Lease details
- Lease available date:
- Ask agent
- Lease type:
- Long term
- Furnish type:
- Part furnished
Key features
- Comprises takeaway shop with ancillary at basement
- VAT is NOT applicable to this property
- Available on a new lease with flexible terms to fit your needs
- Available on a new lease with flexible terms to fit your needs Situated in the popular suburb of Parkstone just off the A35
Description
Comprises takeaway shop with ancillary at basement
VAT is NOT applicable to this property
Available on a new lease with flexible terms to fit your needs
Situated in the popular suburb of Parkstone just off the A35 on the northern side of Ashley Road (B3061), the main arterial route into Poole. Nearby occupiers include Waitrose, Domino`s Pizza, KFC, and a variety of independent retailers.
Property Description:
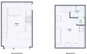
Comprises ground floor takeaway with ancillary accommodation at basement, providing the following accommodation and dimensions:
Ground Floor: Counter & open plan kitchen
Basement: Ancillary, storage & wc
Total GIA: 39 sq m (420 sq ft)
Terms:
Available on a new lease with terms to be agreed by negotiation
Rent: £307.69 per week (PCM: £1,333.33)
Deposit: £4,000 (3 Months)
Rateable Value:
Rateable Value - £4,050 p.a.
Rates Payable - £0*
*Note - Small business rate relief available (subject to terms)
EPC:
The property benefits from a E Rating. Certificate and further details available on request.
Location:
Poole is a coastal town in Dorset, southern England, known for its large natural harbour and sandy beaches. The A350 road is Poole town centre`s main artery, running north along Holes Bay and on to the A35, and as a single carriageway to Bath and Bristol. The property is located on a retail parade with occupiers nearby including Waitrose, Domino`s Pizza, KFC and more.
Brochures
Ashley Road, Poole, Dorset, BH14
NEAREST STATIONS
Distances are straight line measurements from the centre of the postcode- Parkstone Station0.6 miles
- Branksome Station1.0 miles
- Poole Station2.0 miles
Notes
Disclaimer - Property reference 400ashley. The information displayed about this property comprises a property advertisement. Rightmove.co.uk makes no warranty as to the accuracy or completeness of the advertisement or any linked or associated information, and Rightmove has no control over the content. This property advertisement does not constitute property particulars. The information is provided and maintained by Blue Alpine, London. Please contact the selling agent or developer directly to obtain any information which may be available under the terms of The Energy Performance of Buildings (Certificates and Inspections) (England and Wales) Regulations 2007 or the Home Report if in relation to a residential property in Scotland.
Map data ©OpenStreetMap contributors.





