
3 Toledo Road, Southend-on-Sea, Essex, SS1 2DW

- PROPERTY TYPE
Terraced
- BEDROOMS
4
- BATHROOMS
2
- SIZE
Ask agent
- TENUREDescribes how you own a property. There are different types of tenure - freehold, leasehold, and commonhold.Read more about tenure in our glossary page.
Freehold
Key features
- Freehold
- Strictly by appointment with the Auctioneers
Description
RESIDENTIAL INVESTMENT: A VACANT FREEHOLD HOUSE WITH FOUR BEDROOMS AND THREE RECEPTIONS WITH LAWFUL PERMISSION TO USE AS A SIX BEDROOM HMO
A vacant freehold house located close to the High Street, Railway Stations (affording easy access into central London), the Bus Station and the Seafront. Currently the property features include four bedrooms, a fifth bedroom/reception room to the ground floor, two further reception rooms, bathroom, separate w/c, kitchen and large cellar. The roof and guttering is new and was installed in April 2025 and has a certificate of lawfulness to be used as a six bedroom HMO, details can be found on the planning portal using the reference 24/01448/CLP
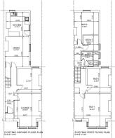
Entrance Hall
Lounge 16'3 x 12'8
Dining Room 11'6 x 11'3
Morning Room 14'5 x 11'5
Kitchen 11'6 x 11'3
Cellar
First Floor:
Bedroom One 17'2 x 16'2
Bedroom Two 11'6 x 11'5
Bedroom Three 11'7 x 10'10
Bedroom Four 7'5 x 7'5
Bathroom and Separate WC
Externally: Rear Garden
The property has an approval from Southend On Sea Council (permission 24/01448/CLP & 24/00928/CLP) to do a L-Shape dormer extension, which would allow the buyer to convert the property into an 8 bedroom 8 ensuite/off-suite HMO. The basement could also offer further development potential.
The current footprint, without a dormer extension, supports a 6 bedroom 6 ensuite HMO layout. The roof and guttering is new and was installed in April 2025.
For further details relating to the current planning granted please visit Southend on Sea City Council planning portal using reference 24/01448/CLP
Please note that this property falls within an area subject to a Selective Licensing Scheme operated by Southend on Sea City Council. Please contact them on or visit their website for further details.
D
Brochures
Legal Documents- COUNCIL TAXA payment made to your local authority in order to pay for local services like schools, libraries, and refuse collection. The amount you pay depends on the value of the property.Read more about council Tax in our glossary page.
- Ask agent
- PARKINGDetails of how and where vehicles can be parked, and any associated costs.Read more about parking in our glossary page.
- Ask agent
- GARDENA property has access to an outdoor space, which could be private or shared.
- Yes
- ACCESSIBILITYHow a property has been adapted to meet the needs of vulnerable or disabled individuals.Read more about accessibility in our glossary page.
- Ask agent
3 Toledo Road, Southend-on-Sea, Essex, SS1 2DW
Add an important place to see how long it'd take to get there from our property listings.
__mins driving to your place
Get an instant, personalised result:
- Show sellers you’re serious
- Secure viewings faster with agents
- No impact on your credit score
Your mortgage
Notes
Staying secure when looking for property
Ensure you're up to date with our latest advice on how to avoid fraud or scams when looking for property online.
Visit our security centre to find out moreDisclaimer - Property reference 301335. The information displayed about this property comprises a property advertisement. Rightmove.co.uk makes no warranty as to the accuracy or completeness of the advertisement or any linked or associated information, and Rightmove has no control over the content. This property advertisement does not constitute property particulars. The information is provided and maintained by Dedman Gray Auctions, Essex. Please contact the selling agent or developer directly to obtain any information which may be available under the terms of The Energy Performance of Buildings (Certificates and Inspections) (England and Wales) Regulations 2007 or the Home Report if in relation to a residential property in Scotland.
Auction Fees: The purchase of this property may include associated fees not listed here, as it is to be sold via auction. To find out more about the fees associated with this property please call Dedman Gray Auctions, Essex on 01702 311010.
*Guide Price: An indication of a seller's minimum expectation at auction and given as a Guide Price or a range of Guide Prices. This is not necessarily the figure a property will sell for and is subject to change prior to the auction.
Reserve Price: Each auction property will be subject to a Reserve Price below which the property cannot be sold at auction. Normally the Reserve Price will be set within the range of Guide Prices or no more than 10% above a single Guide Price.
*This is the average speed from the provider with the fastest broadband package available at this postcode. The average speed displayed is based on the download speeds of at least 50% of customers at peak time (8pm to 10pm). Fibre/cable services at the postcode are subject to availability and may differ between properties within a postcode. Speeds can be affected by a range of technical and environmental factors. The speed at the property may be lower than that listed above. You can check the estimated speed and confirm availability to a property prior to purchasing on the broadband provider's website. Providers may increase charges. The information is provided and maintained by Decision Technologies Limited. **This is indicative only and based on a 2-person household with multiple devices and simultaneous usage. Broadband performance is affected by multiple factors including number of occupants and devices, simultaneous usage, router range etc. For more information speak to your broadband provider.
Map data ©OpenStreetMap contributors.









