
4 bedroom semi-detached house for sale
SELF CONTAINED ANNEX INCLUDED-Dowland Walk, Basildon

- PROPERTY TYPE
Semi-Detached
- BEDROOMS
4
- BATHROOMS
4
- SIZE
Ask agent
- TENUREDescribes how you own a property. There are different types of tenure - freehold, leasehold, and commonhold.Read more about tenure in our glossary page.
Freehold
Key features
- Self-Contained Annexe – A rare bonus feature ideal for extended family, guests, or rental income, complete with kitchen, bathroom, and private garden.
- Four Generously Sized Bedrooms – Perfect for families, each bedroom offers ample space and comfort.
- Extended Living Space – Thoughtfully designed rear extension creates a bright, open-plan hub ideal for modern family living and entertaining.
- Stunning Bi-Folding Doors – Seamlessly connect indoor and outdoor spaces while flooding the lounge with natural light.
- Stylish Open-Plan Kitchen/Diner – Contemporary units, space for range cooker and American fridge/freezer, and French doors to the garden.
- Modern Bathrooms – Includes a sleek main family bathroom, an en-suite shower room, and a separate annexe bathroom.
- Driveway & Side Extension – Previously approved planning permission allows for future expansion and increased value.
- Peaceful Residential Location – Situated on a quiet street, offering a safe and friendly environment for families.
- Council Tax Band D – Enjoy affordable running costs in a beautifully upgraded home.
- Move-In Ready Condition – Lovingly maintained with high-quality finishes throughout—just unpack and enjoy!
Description
From the moment you arrive, the home’s striking kerb appeal and well-maintained exterior make a lasting impression. Step inside to discover a thoughtfully designed layout, where the kitchen seamlessly flows into the dining area and bright, airy lounge—complete with expansive bi-folding doors that open out to the beautifully landscaped garden. Perfect for entertaining, this open-plan space is both stylish and functional. Guide Price; £475,000 - £525,000
Upstairs features three generously sized bedrooms, each offering excellent storage, with the second bedroom benefitting from a sleek en-suite shower room. A modern family bathroom further serves this level with quality fittings and a tasteful finish.
One of the standout features is the detached self-contained annexe located in the rear garden. This well-equipped space comprises an open-plan kitchen/lounge area, a spacious double bedroom, a full bathroom suite, and a private garden—ideal for guests, rental income, or extended family.
Additionally, the property benefits from previously approved planning permission for a large front driveway and side extension—offering excellent scope to increase floor space and long-term value.
Homes of this calibre, offering versatility, style, and development potential, are a rare find in today’s market. Don’t miss your opportunity—contact Aspire Estate Agents Basildon today to arrange your internal viewing.
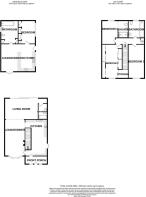
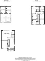
Room Measurements & Key Features:
Ground Floor:
Entrance Hall
Double glazed composite door to front, tiled flooring.
Kitchen – 9'32" x 19'18"
Double glazed French doors to rear, fitted units with roll edge worktops and tiled splashbacks, space for range cooker and American-style fridge/freezer.
Lounge
Bi-folding doors to rear, tiled flooring, radiator—bright and garden-facing.
Dining Room
Double glazed bay window to front, feature fireplace—perfect for formal dining or a snug area.
First Floor:
Bedroom One – 9'62" x 10'55"
Double glazed window to front, fitted mirrored wardrobes, radiator.
Bedroom Two – 8'83" x 10'05"
Double glazed window to rear, fitted wardrobes, radiator, stylish en-suite with shower, wash hand basin, and WC.
Bedroom Three
Double glazed window, radiator.
Family Bathroom
P-shaped bath, low-level WC, heated towel rail, fully tiled.
Annexe:
Open-Plan Kitchen/Lounge
Double glazed window and French doors, modern kitchen with integrated oven and extractor, space for white goods, tiled and laminate flooring.
Double Bedroom & Bathroom Suite
Comfortable, self-contained layout with modern finishes and private outdoor space.
Brochures
SELF CONTAINED ANNEX INCLUDED-Dowland Walk, BasildBrochure- COUNCIL TAXA payment made to your local authority in order to pay for local services like schools, libraries, and refuse collection. The amount you pay depends on the value of the property.Read more about council Tax in our glossary page.
- Ask agent
- PARKINGDetails of how and where vehicles can be parked, and any associated costs.Read more about parking in our glossary page.
- Yes
- GARDENA property has access to an outdoor space, which could be private or shared.
- Yes
- ACCESSIBILITYHow a property has been adapted to meet the needs of vulnerable or disabled individuals.Read more about accessibility in our glossary page.
- Ask agent
SELF CONTAINED ANNEX INCLUDED-Dowland Walk, Basildon
Add an important place to see how long it'd take to get there from our property listings.
__mins driving to your place
Get an instant, personalised result:
- Show sellers you’re serious
- Secure viewings faster with agents
- No impact on your credit score
Your mortgage
Notes
Staying secure when looking for property
Ensure you're up to date with our latest advice on how to avoid fraud or scams when looking for property online.
Visit our security centre to find out moreDisclaimer - Property reference 34032245. The information displayed about this property comprises a property advertisement. Rightmove.co.uk makes no warranty as to the accuracy or completeness of the advertisement or any linked or associated information, and Rightmove has no control over the content. This property advertisement does not constitute property particulars. The information is provided and maintained by Aspire Estate Agents, Benfleet. Please contact the selling agent or developer directly to obtain any information which may be available under the terms of The Energy Performance of Buildings (Certificates and Inspections) (England and Wales) Regulations 2007 or the Home Report if in relation to a residential property in Scotland.
*This is the average speed from the provider with the fastest broadband package available at this postcode. The average speed displayed is based on the download speeds of at least 50% of customers at peak time (8pm to 10pm). Fibre/cable services at the postcode are subject to availability and may differ between properties within a postcode. Speeds can be affected by a range of technical and environmental factors. The speed at the property may be lower than that listed above. You can check the estimated speed and confirm availability to a property prior to purchasing on the broadband provider's website. Providers may increase charges. The information is provided and maintained by Decision Technologies Limited. **This is indicative only and based on a 2-person household with multiple devices and simultaneous usage. Broadband performance is affected by multiple factors including number of occupants and devices, simultaneous usage, router range etc. For more information speak to your broadband provider.
Map data ©OpenStreetMap contributors.





