Land for sale
Culmstock, Cullompton
- PROPERTY TYPE
Land
- SIZE
Ask agent
Key features
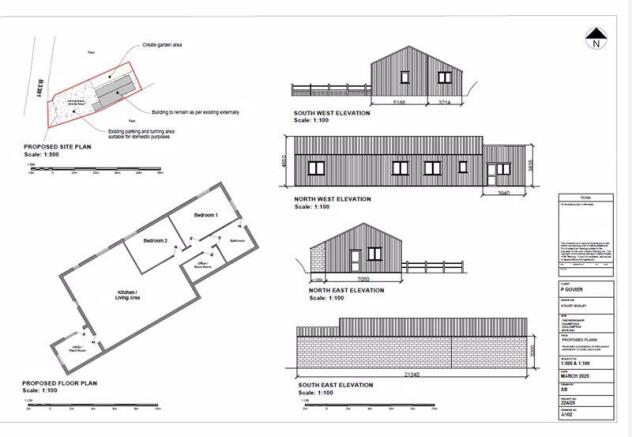
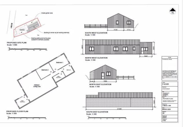
- DETACHED BARN WITH APPROVAL FOR A 2 BEDROOM DWELLING
- GOOD SIZED, LEVEL PLOT WITH NICE VIEWS
- EDGE OF VILLAGE LOCATION
- WATER, ELECTRICITY AND DRAINAGE ALREADY CONNECTED
- LESS THAN A MILE FROM CULMSTOCK
Description
'The Workshop' has already undergone the first phase of work, including: New windows and doors fitted, new roof and guttering, new cladding to the perimeter, new electrics into the building (with small consumer board and plug point), new gate and fence to the perimeter, stoned and compacted yard area, new toilet, treatment tank and soak away, new water supply into the building. There is an existing bore hole and a buyer will just need to put in a water filtration system. There is now a great opportunity for someone to build out 'The Workshop' to their own taste.
The property is accessed via double five bar gates which lead to a large level area, ready to be landscaped into parking and gardens. The plot enjoys nice views over the surrounding countryside.
For full details - input reference 25/00501/PNCOU at
In line with condition 1 of the approved decision notice the conversion should be completed within 3 years of 27th May 2025.
Culmstock is a thriving village with a busy village stores with café and deli, well respected local pub, medieval church, and a playground, football pitch and community pavilion located on nearby Hunter’s hill. There are also excellent local walks, for example to the Elizabethan Beacon that overlooks the town and along the riverside to nearby Uffculme. The property is in the catchment of the well-respected, Ofsted Outstanding-rated Uffculme Secondary School. The village is friendly and welcoming and annually hosts its own fete and flower, craft and vegetable show. The village, although rural, is well connected with junction 26 of the M5 just 5 miles away. Wellington (5.5 miles) offers day to day amenities such as supermarkets, schools and recreational facilities. Mainline train stations can be found at Tiverton (5.5 miles) and Taunton (13 miles), both with fast rail links to Exeter, Bristol, and London (1hour40 from Taunton).
Brochures
Full DetailsCulmstock, Cullompton
NEAREST STATIONS
Distances are straight line measurements from the centre of the postcode- Tiverton Parkway Station3.2 miles
Notes
Disclaimer - Property reference 11955651. The information displayed about this property comprises a property advertisement. Rightmove.co.uk makes no warranty as to the accuracy or completeness of the advertisement or any linked or associated information, and Rightmove has no control over the content. This property advertisement does not constitute property particulars. The information is provided and maintained by Red Deer Country, Williton. Please contact the selling agent or developer directly to obtain any information which may be available under the terms of The Energy Performance of Buildings (Certificates and Inspections) (England and Wales) Regulations 2007 or the Home Report if in relation to a residential property in Scotland.
Map data ©OpenStreetMap contributors.





