
Church Street, Whittington, Lichfield

- PROPERTY TYPE
Detached
- BEDROOMS
4
- BATHROOMS
2
- SIZE
Ask agent
- TENUREDescribes how you own a property. There are different types of tenure - freehold, leasehold, and commonhold.Read more about tenure in our glossary page.
Freehold
Key features
- Bespoke built four bedroom family home
- Secluded spot overlooking greenbelt land to the south
- Spacious living accommodation
- Three double bedrooms plus ground floor single room
- Generous plot with mature landscaped surrounding gardens and storage shed
- Accessed via a shared private driveway with ample parking
- Stunning village location
- Approved planning for single garage
Description
Tucked away in a truly secluded spot at the edge of the village, this residence offers the rare feeling of rural tranquillity while remaining just a short walk from all local amenities. With uninterrupted views over open fields and horse paddocks, it feels a world apart from the rest of the village yet remains wonderfully connected.
Set back from the road and accessed via a private shared driveway, the property enjoys absolute peace and privacy, with virtually no passing traffic or road noise. The large, wraparound gardens envelop the home in greenery and colour, featuring mature trees, flourishing flower beds, manicured lawns, vegetable plots, and a charming patio for al fresco dining — all positioned to take full advantage of the property’s desirable south-facing aspect. There is also parking on the private driveway for several vehicles and granted planning for a single garage to the side of the property.
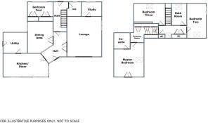
Internally, the home is equally impressive. The light-filled accommodation includes: front and rear entrance hallways; a spacious dual-aspect lounge with patio doors opening onto the garden and countryside beyond; an open-plan kitchen-diner perfect for family life and entertaining; a formal dining area with glazed wooden partitions; a separate utility room; a home office/study; a ground floor guest WC; and a versatile fourth bedroom on the ground floor.
Upstairs, the landing offers generous built-in storage and access to three well-proportioned double bedrooms and a modern family bathroom. The master bedroom is approached via a private dressing area with fitted wardrobes and features an en-suite shower room and a Juliet balcony overlooking the uninterrupted rural views.
This is a rare opportunity to own a truly distinctive home in a remarkable setting, combining the serenity of countryside living with the convenience of village life.
Service to the property include mains gas, electric, water and sewerage.
Situated in the the sought after village of Whittington the property benefits from the local amenities which include shops, public houses, doctors surgery, chemist and Chinese take away plus many local community events held throughout the year. There is excellent local schooling with the area falling into the Whittington Primary School and King Edwards, Lichfield catchment areas.
Commuter benefits include easy access to the A38, M42 and M6 Tolls roll roads as well as direct lines into Birmingham and London from Lichfield city and Trent Valley stations just a short driveaway.
FRONT ENTRANCE HALLWAY:
UPVC entrance door, carpeted flooring, ceiling spot lights, radiator, French doors to the lounge, glazed double doors to the dining area and further doors to the rear hallway and kitchen-diner.
LOUNGE:
15' 7'' x 16' 5'' (4.75m x 5.00m)
Feature fireplace with fitted log burner, carpeted flooring, TV aerial sockets, wall light points, radiator, window to side, door to the study and patio doors to the garden.
KITCHEN-DINER:
20' 6'' x 10' 6'' (6.25m x 3.20m)
Range of matching wall and base units incorporating cabinets, drawers and work surfaces, inset bowl sink and drainer with mono tap, integrated electric oven and 5 ring gas hob with extractor hood, further integrated combi microwave oven, and fridge, tiled flooring, ceiling spot lights, radiator, door to the utility, space for a dining or as it is currently used, as a sitting area, with corner window overlooking the garden and fields.
UTILITY:
10' 9'' x 9' 1'' (3.28m x 2.78m)
Fitted work tops with cabinets beneath, shelving units, space and plumbing for white goods including washing machine, dryer and fridge-freezer, wall mounted gas boiler, tiled flooring, light point and door to the side patio area.
DINING AREA:
11' 4'' x 14' 2'' (3.45m x 4.31m)
Carpeted flooring, ceiling spot lights, radiator, window to the side, glazed wooden partitions and French doors to the front hallway.
STUDY:
8' 8'' x 6' 5'' (2.65m x 1.95m)
Carpeted flooring, radiator, ceiling light point and window to the rear.
REAR ENTRANCE HALLWAY:
Composite entrance door from the rear garden, radiator light point, doors to the guest WC, fourth bedroom and front entrance hallway, staircase to the first floor.
GUEST WC:
Modern fitted suite comprising: low level WC, glass bowl wash hand basin set on glazed work top, ½ height all panelling, vinyl flooring, radiator, light point, window to the rear and space to hang coats.
FOURTH BEDROOM:
11' 4'' x 6' 7'' (3.46m x 2.00m)
Two built in wardrobes, carpeted flooring, radiator, light point and window to the rear. Could also be used a a hobby room or second home office.
FIRST FLOOR LANDING:
Velux skylight to the front, carpeted flooring, large storage cupboard with double doors, airing cupboard, ceiling lights, doors off to three bedrooms and the family bathroom.
BEDROOM ONE:
13' 4'' x 15' 4'' (4.06m x 4.67m)
Accessed via the dressing area which features a range of built in wardrobes, the main bedroom has a Juliet balcony overlooking the fields to the rear, carpeted flooring, ceiling spot lights, radiator, Velux skylight, plus a range of fitted furniture including the dressing table and drawers, plus bed side table units. There is also a door into the en-suite.
EN-SUITE SHOWER ROOM:
Full tiled suite comprising: shower cubicle with mains fitted shower, cabinet wash hand basin, vanity unit with fitted cabinets and low level WC, plus spot lights and radiator with towel rail. There is also loft access hatch.
BEDROOM TWO:
8' 6'' x 15' 7'' (2.60m x 4.75m)
Carpeted flooring, ceiling light point, radiator, window to the side and Velux skylight to the front.
BEDROOM THREE:
14' 2'' x 9' 2'' max (4.33m x 2.80m)
Carpeted flooring, ceiling light points, radiator and Velux skylight to the rear.
FAMILY BATHROOM:
White suite comprising: bath, separate shower cubicle with mains fitted shower, vanity unit incorporating the wash hand basin and cabinets, low level WC, spot lights, radiator, floor and wall tiling plus Velux skylight to the rear. There is also another loft access hatch.
VIEWING:
Please contact us on if you would like to arrange a viewing appointment for this property or require further information.
DISCLAIMER:
These particulars are set up as a general outline only for the guidance of intending purchasers or lessees, and do not constitute part of an offer or contract. The sellers has given permission for all descriptions, dimensions, references to conditions, tenure, service charges and necessary permissions for use, occupation and other details to be used and we have taken them in good faith whether included or not & whilst we believe them to be correct, any intending purchasers or tenants should not rely on them as representations or fact but must satisfy themselves by inspection or otherwise as to the correctness of each of them and have this certified during the conveyancing by their solicitor. No person in the employment of Lovett&Co has any authority to make or give any representation or warranty whatsoever in relation to this property.
Brochures
Property BrochureFull Details- COUNCIL TAXA payment made to your local authority in order to pay for local services like schools, libraries, and refuse collection. The amount you pay depends on the value of the property.Read more about council Tax in our glossary page.
- Band: E
- PARKINGDetails of how and where vehicles can be parked, and any associated costs.Read more about parking in our glossary page.
- Yes
- GARDENA property has access to an outdoor space, which could be private or shared.
- Yes
- ACCESSIBILITYHow a property has been adapted to meet the needs of vulnerable or disabled individuals.Read more about accessibility in our glossary page.
- Ask agent
Church Street, Whittington, Lichfield
Add an important place to see how long it'd take to get there from our property listings.
__mins driving to your place
Get an instant, personalised result:
- Show sellers you’re serious
- Secure viewings faster with agents
- No impact on your credit score
Your mortgage
Notes
Staying secure when looking for property
Ensure you're up to date with our latest advice on how to avoid fraud or scams when looking for property online.
Visit our security centre to find out moreDisclaimer - Property reference 12115035. The information displayed about this property comprises a property advertisement. Rightmove.co.uk makes no warranty as to the accuracy or completeness of the advertisement or any linked or associated information, and Rightmove has no control over the content. This property advertisement does not constitute property particulars. The information is provided and maintained by Lovett&Co. Estate Agents, Lichfield. Please contact the selling agent or developer directly to obtain any information which may be available under the terms of The Energy Performance of Buildings (Certificates and Inspections) (England and Wales) Regulations 2007 or the Home Report if in relation to a residential property in Scotland.
*This is the average speed from the provider with the fastest broadband package available at this postcode. The average speed displayed is based on the download speeds of at least 50% of customers at peak time (8pm to 10pm). Fibre/cable services at the postcode are subject to availability and may differ between properties within a postcode. Speeds can be affected by a range of technical and environmental factors. The speed at the property may be lower than that listed above. You can check the estimated speed and confirm availability to a property prior to purchasing on the broadband provider's website. Providers may increase charges. The information is provided and maintained by Decision Technologies Limited. **This is indicative only and based on a 2-person household with multiple devices and simultaneous usage. Broadband performance is affected by multiple factors including number of occupants and devices, simultaneous usage, router range etc. For more information speak to your broadband provider.
Map data ©OpenStreetMap contributors.





